| MLS # | 886947 |
| 物件の詳細 | 6 寝室, 5 バスルーム, 2 ハーフバス, ガレージ, エアコン, 外装: 0.39 エーカー, 内装: 8500 ft2, 790m2 (DOM): 114 days |
| 建築年 | 1955 |
| 税金(年間) | $25,507 |
| 暖房タイプ | 床/壁暖房 Radiant (Floor/Wall) |
| エアコン | セントラルエアコン Central Air |
| 地下室 | 全面地下室 Full basement |
| LIRR | 0.9 マイル: "Greenvale" |
| 1.2 マイル: "Roslyn" | |
![]() |
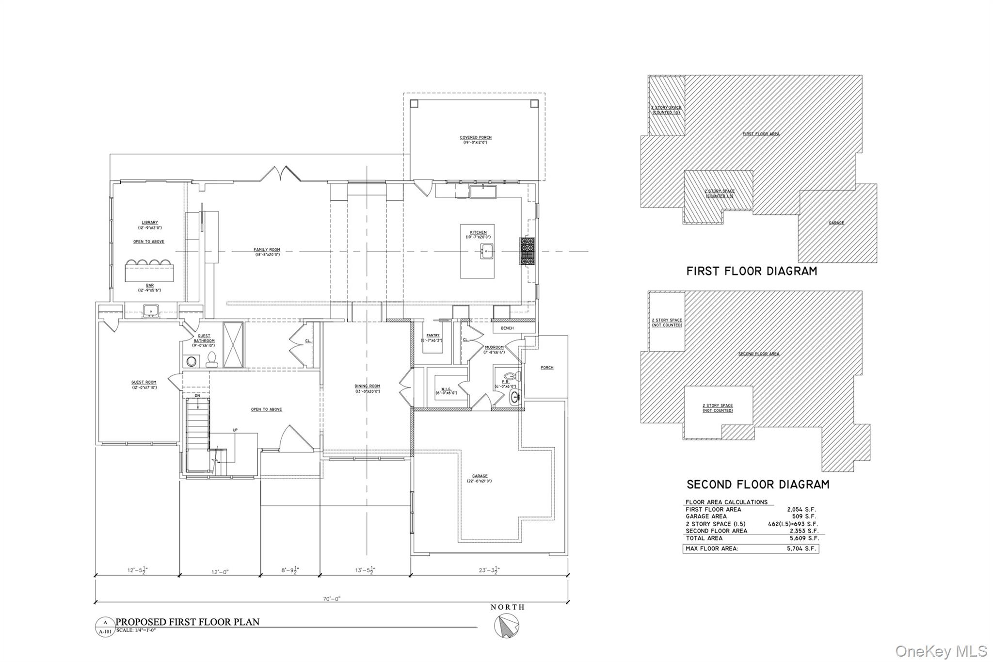
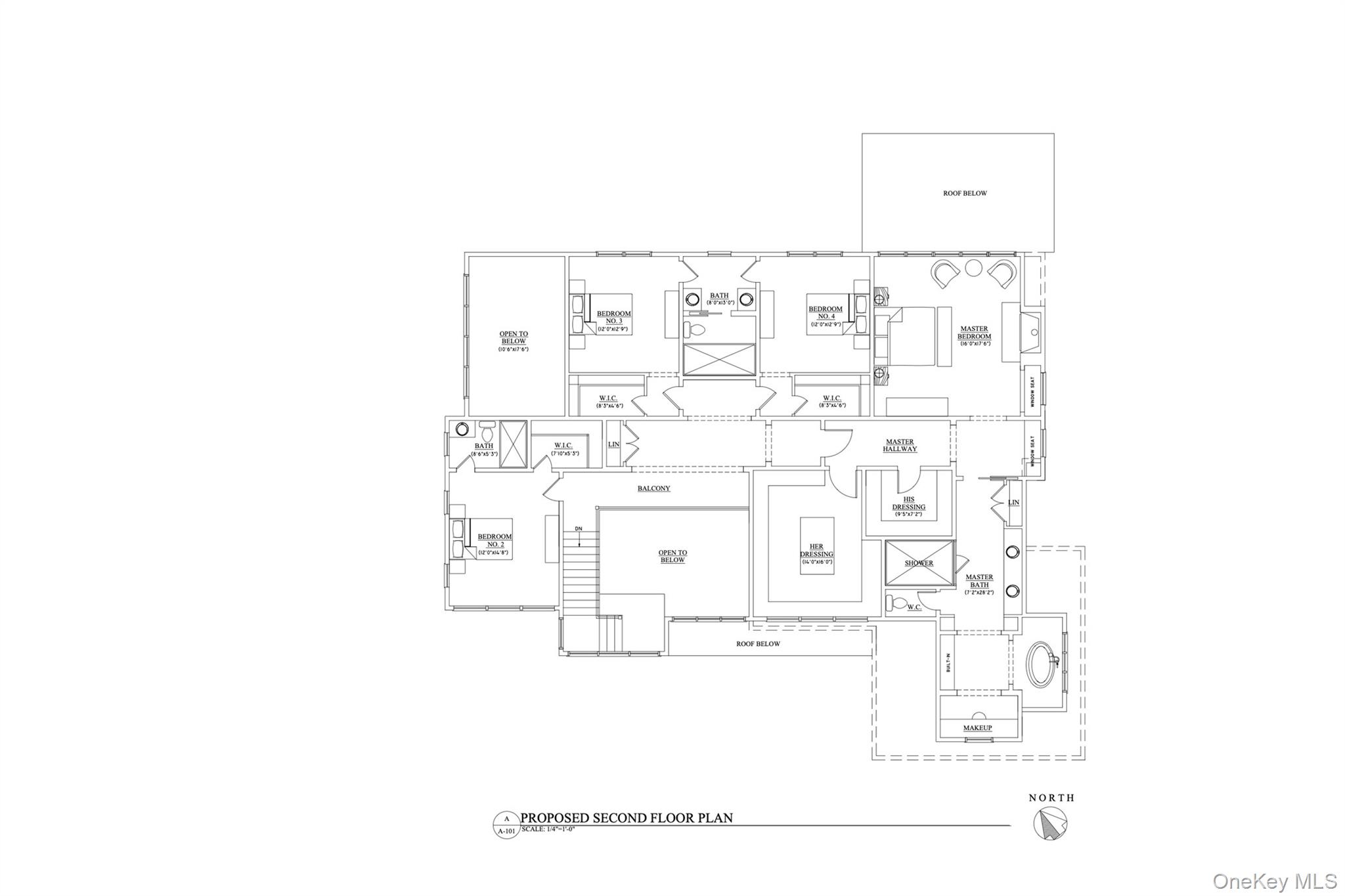
47 Midwood Crossをご紹介します。これは、著名な高級建設業者BuiltByBeerによって建設予定の優れた住宅です。現在、計画段階にあり、この家は、2階にわたって5,700平方フィートの慎重に設計されたリビングスペースをカスタマイズする稀な機会を提供し、さらに下層階に2,800平方フィートのスペースがあります。East Hillsの名門Country Estatesセクションのミッドブロックに位置し、首尾よく新築された物件に囲まれています。提案されているプランには、6つの寝室、5つのフルバス、2つのハーフバスが含まれています。高級なスタイルと専門的な職人技でデザインされたこの家は、完成した下層階と1階に10フィートの高い天井、高品質な木工、デザイナーフィニッシュ、スマートホーム自動化、プロフェッショナルな造園、現代的なハードスケーピングを特徴とします。平坦な土地は、近所で最も人気のあるブロックの1つで屋外エンターテインメントを楽しむための広々としたスペースを提供します。ロズリン学区とイーストヒルズ公園のメンバーシップを楽しんでください。予想居住開始時期:2027年秋。
現状のままで購入することも可能です。詳細についてはお問い合わせください。
Introducing 47 Midwood Cross, an exceptional to-be-built residence by acclaimed luxury builder BuiltByBeer. Currently in the planning phase, this home presents a rare opportunity to customize up to 5,700 square feet of thoughtfully designed living space across two levels with an additional 2,800 square feet on the lower level. Located mid-block in the prestigious Country Estates section of East Hills and surrounded by premier new construction, the proposed plans include 6 bedrooms, 5 full baths, and 2 half baths. Designed with elevated style and expert craftsmanship, the home will feature soaring 10' ft ceilings in the finished lower level and first floor, high-end millwork, designer finishes, smart home automation, professional landscaping, and modern hardscaping. The flat lot offers generous room for outdoor entertaining on one of the neighborhood's most sought after blocks. Enjoy Roslyn School District and East Hills Park Membership. Projected occupancy: Fall 2027.
ALSO AVAILABLE TO PURCHASE AS-IS. INQUIRE FOR DETAILS. © 2025 OneKey™ MLS, LLC







