| ID # | 884960 |
| 物件の詳細 | 外装: 1.59 エーカー (DOM): 103 days |
| 税金(年間) | $2,828 |
![]() |
17 ヴァネッサレーン、スタッツバーグ、NY | ラインベック近くの建築家がデザインした夢の土地
ハドソンバレーの中心に夢の家を建てる希少な機会。
ラインベック村からわずか5マイルの静かな行き止まりの通りに位置するこの1.6エーカーの森林に囲まれた土地は、プライバシーと静けさ、そしてすでに動き出しているビジョンを提供します。
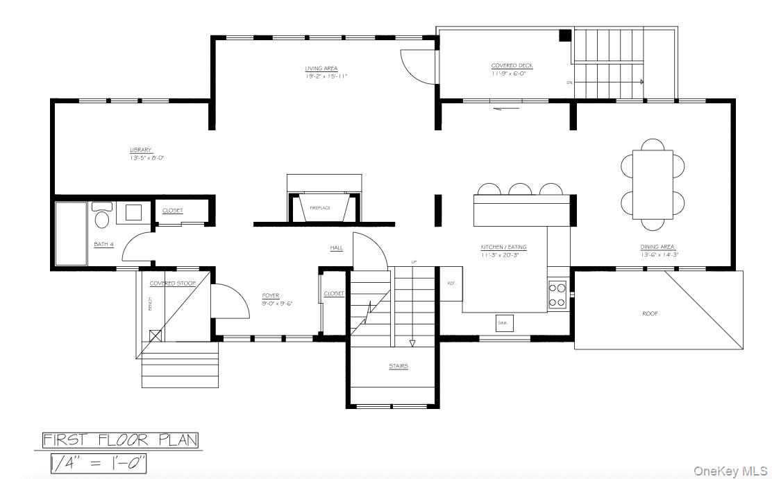
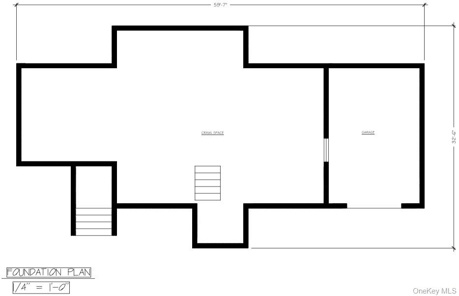
近くの13ヴァネッサレーンにある印象的な住宅の背後にいる建築家 - オーナーによってデザインされたこの建設可能な土地には、フランク・ロイド・ライトのプレーリーとユニゾンがデザインした有機的な建築に触発された図書室と1台の車庫を備えた3ベッドルーム、4バスルームの家のための建築計画が含まれています。洗練されながらもシンプルなデザインは、自然との調和を強調しており、都市生活からの低メンテナンスで高デザインの逃避を求めるバイヤーに最適です。
売主は、バイヤーと提携して真のターンキー体験を創出することにオープンであり、デザインのコラボレーションやビジョンに精通した信頼できる請負業者への紹介を提供します。保健局の承認を受けた浄化槽デザインが整備されており、最終的な町の承認もクロージングまでに完了する予定であり、プロジェクトは自信を持って着手できる状態です。
自然愛好家は、劇的な自然の岩の突出部で強調されたこの土地の穏やかな森林の環境を評価するでしょう。ミルズ・ノリー州立公園やハドソン川まで車で数分とアクセスが容易で、ラインベックまで10分以内で文化、食事、ショップを探索できます。
次のシグネチャープロジェクトを探しているビルダー、Airbnbに最適な可能性を持つ投資家、あるいはカスタムの週末リトリートを夢見る方にとって、17ヴァネッサレーンは可能性、プライバシー、建築の血統を提供します。 *注:家は売主の協力を得て建てられる可能性を示したレンダリングに過ぎず、販売は更地のみです。
17 Vanessa Lane, Staatsburg, NY | Architect-Designed Dream Lot Near Rhinebeck
A rare opportunity to build your dream home in the heart of the Hudson Valley.
Located on a quiet dead-end street just 5 miles from Rhinebeck Village, this 1.6-
acre wooded parcel offers privacy, serenity, and a vision already in motion.
Designed by the Architect - Owner behind the striking residence at nearby 13
Vanessa Lane. This buildable lot includes architectural plans for a 3-bedroom, 4-
bathroom home with library and a one car garage, inspired by Frank Lloyd
Wrights Prairie and Unison designed organic architecture. Sophisticated yet
simple, the design emphasizes harmony with nature, perfect for buyers seeking a
low-maintenance, high-design escape from city life.
The seller is open to partnering with the buyer to create a true turn-key
experience, offering design collaboration and referral to a trusted contractor
familiar with the vision. Board of Health approved septic design is in place and
final town approvals are on track to be completed by closing—allowing your
project to break ground with confidence.
Nature lovers will appreciate the lot’s peaceful wooded setting, highlighted by
dramatic natural rock outcroppings. Enjoy easy access to outdoor adventure just
minutes away at Mills Norrie State Park and the Hudson River, or explore the
culture, dining, and shops of Rhinebeck less than 10 minutes away.
Whether you’re a builder looking for your next signature project, an investor
targeting Airbnb-ready potential, or dreaming of a custom weekend retreat—17
Vanessa Lane delivers possibility, privacy, and architectural pedigree. *note: house is just a rendering of what could be built with sellers help, sale is vacant land only. © 2025 OneKey™ MLS, LLC







