| ID # | RLS20038340 |
| 物件の詳細 | 2 家族, 5 寝室, 2 バスルーム, 1 ハーフバス, 洗濯機, 乾燥機, 内装: 2080 ft2, 193m2 (DOM): 167 days |
| 建築年 | 1930 |
| 税金(年間) | $2,796 |
| バス | 1 分: B15, B35 |
| 3 分: B60, B8 | |
| 10 分: B14 | |
| 地下鉄 | 7 分: L |
| 8 分: 3 | |
| LIRR | 1.3 マイル: "East New York" |
| 2.7 マイル: "Nostrand Avenue" | |
![]() |
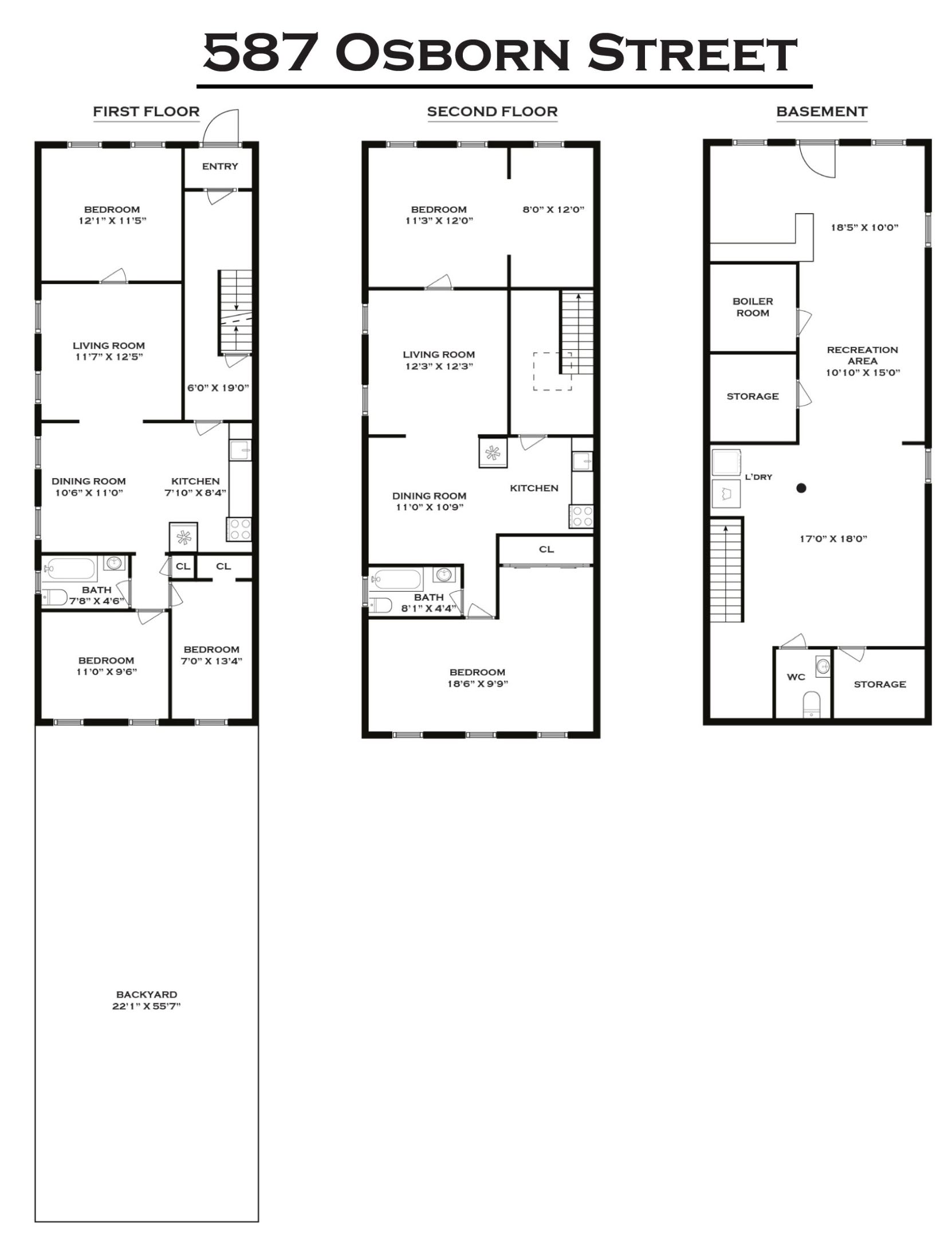
587オズボーンストリートへようこそ。ブルックリンの魅力的で成長を続けるブラウンズビル地区に位置しています。この美しい二世帯用の黄色と赤のレンガのタウンハウスは、あなたの個人的なタッチを加えて夢の家に変える準備が整っています。魅力的な可能性を秘めており、成長中のエリアに住みたい方には理想的な投資です。
この家は2,080平方フィートの広さを持ち、明るい5つのベッドルームと2.5のバスルームがあります。20フィート x 52フィートのサイズで、2階建ての広々としたスペースを提供し、成長する家族や多世代住宅に最適です。1930年に建てられたこの家は、クラシックな魅力を保ちつつ、フルハイトの天井を持つ完全に仕上げられた地下室も備えています。この物件は2つの住宅ユニットで構成されており、賃貸収入や大家族の宿泊に柔軟性を提供します。
外観は明るいレンガのファサードが特徴で、個性を醸し出しています。一方、ブロック内の連棟住宅は招待するような均一性を提供し、この素晴らしい地域のコミュニティ感を高めています。ロケーションは公衆交通機関に近く、マンハッタンへの通勤が容易です。近くの公園やレクリエーションエリアは無限のアウトドア楽しみを保証します。さらに、ジョン・F・ケネディ国際空港、アビエータースポーツ&イベントセンター、または穏やかなロッカウェイビーチへの30分のドライブで多様なレジャーオプションも楽しめます。
内部の写真は、事前に資格を得た買い手のリクエストに応じて提供されます。この有望な物件をあなたの理想の家に変えるチャンスをお見逃しなく。詳細についてお問い合わせいただき、内覧のスケジュールを立てましょう!
Welcome to 587 Osborn Street, located in the charming and burgeoning neighborhood of Brownsville, Brooklyn. This beautiful two-family yellow and red brick townhouse is ready for your personal touch to transform it into your dream home. Offering captivating potential, it is an ideal investment for those looking to settle in an up-and-coming area.
This home spans 2,080 square feet and features five well-lit bedrooms along with two and a half bathrooms. With dimensions of 20 ft x 52 ft, it provides ample space across its two stories, perfect for a growing family or multi-generational living. Built in 1930, the house retains its classic charm and is complemented by a full finished basement with full-height ceilings. The property consists of two residential units, offering flexibility for rental income or extended family accommodation.
The exterior is marked by a bright brick façade that exudes character, while the row houses on the block provide an inviting uniformity, enhancing the sense of community in this great neighborhood. The location offers excellent convenience, with close proximity to public transportation making commuting to Manhattan effortless. Nearby parks and recreation areas ensure endless outdoor enjoyment. Moreover, a quick 30-minute drive will take you to John F. Kennedy International Airport, Aviator Sports & Events Center, or the serene Rockaway Beach, providing a variety of leisure options.
Interior photos are available upon request to pre-qualified buyers. Don't miss the opportunity to transform this promising property into your ideal home. Reach out today for more information and to schedule a viewing!
This information is not verified for authenticity or accuracy and is not guaranteed and may not reflect all real estate activity in the market. ©2025 The Real Estate Board of New York, Inc., All rights reserved.






