| MLS # | 892389 |
| 物件の詳細 | 4 寝室, 2 バスルーム, 1 ハーフバス, 食器洗い機, 洗濯機, ガレージ, エアコン, 外装: 0.46 エーカー, 内装: 2260 ft2, 210m2 (DOM): 102 days |
| 建築年 | 2025 |
| 暖房タイプ | 温風 Hot air |
| エアコン | セントラルエアコン Central Air |
| 地下室 | 全面地下室 Full basement |
| LIRR | 3.7 マイル: "Yaphank" |
| 5.9 マイル: "Medford" | |
![]() |
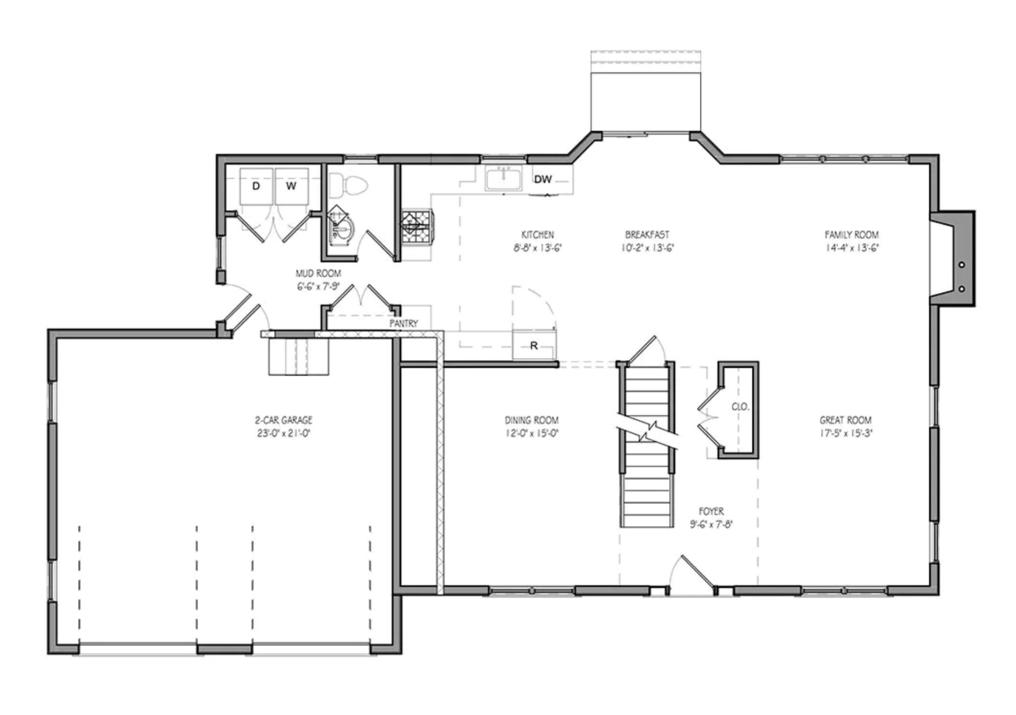
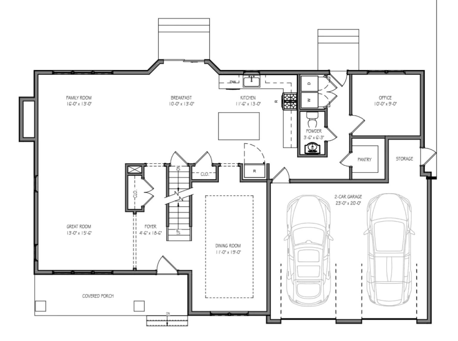
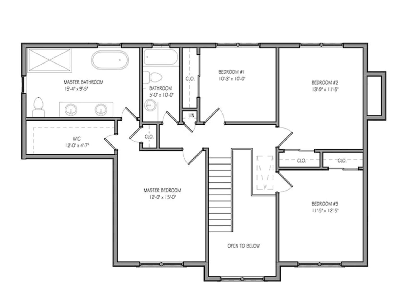
新築コロニアル – 建設予定。4ベッドルーム、2.5バスルーム
夢の家を建てる素晴らしい機会があり、金利は4.99%からスタート!慎重に設計された3つのモデルから選択できます:マティタック、ジェームスポート、そしてジェームスポートプラス。それぞれのモデルは、広々として機能的なレイアウトを高品質な仕上げで提供します。この美しいコロニアルホームは、広々とした4つのベッドルーム、2.5バスルーム、大きめの内部アクセス付きの添付ガレージを備えます。
外装の特徴には、30年保証のある建築用屋根シングル、アスファルトのドライブウェイと歩道、側面窓付きのコンクリート製前ポーチ、メンテナンスフリーのビニールサイディングが含まれます。石のアクセントはリクエストに応じて提供可能です。家にはアルミ製の雨樋とリーダー、前後に外部電気コンセントとホースビブ、6フィートのスライディングガラスドア、前庭と裏庭には種まきされた芝生が含まれます。
内部では、メインレベルに9フィートの天井、2階と地下に8フィートの天井、リビングルーム、ファミリールーム、ダイニングルーム、および2階の廊下にはレッドオークのハードウッドフローリングが使用されています。ダイニングルームは、トレイ天井とクラウンモールディングで引き立てられています。キッチンとバスルームにはセラミックタイルが使用され、ベッドルームには快適な壁から壁までのカーペットが敷かれています。36インチのガス暖炉がメインリビングスペースの居心地の良い中心となります。その他のハイライトには、白いバラスターが付いたオークの手すり、リセス照明(10台の器具)、コロニアルスタイルのモールディングとベースボードを持つインテリアドアの選択肢があります。
便利な設備には、洗濯機と乾燥機のための接続、2つの電話コンセント、2つのケーブルコンセント、ドアオープナーのために配線されたガレージが含まれています。ベンジャミン・ムーアのペイント(2色選択可能)と白いトリムが含まれています。クローゼットの棚はPVCコーティングが施されており、主寝室用のオプショナルなアップグレードパッケージも利用可能です。
仕上げをパーソナライズし、自分のライフスタイルに合わせた家を作るチャンスをお見逃しなく。非常に望ましいエリアにおける希少な新築機会です!
New Construction Colonial – To Be Built. 4 Bedrooms, 2.5 Bathrooms
Incredible opportunity to build your dream home with an interest rate as low as 4.99%! Choose from three thoughtfully designed models: The Mattituck, The Jamesport, and The Jamesport Plus. Each model offers a spacious and functional layout with high-quality finishes throughout. This beautiful Colonial will feature four generously sized bedrooms, two and a half bathrooms, and an oversized attached garage with interior access.
Exterior features include architectural roof shingles with a 30-year guarantee, a blacktop driveway and walkway, a concrete front porch with sidelights, and maintenance-free vinyl siding. Stone accents are available upon request. The home will also include aluminum gutters and leaders, exterior electrical outlets and hose bibs in the front and rear, a 6’ sliding glass door, and seeded front and rear yards.
Inside, the home offers 9-foot ceilings on the main level, 8-foot ceilings on the second floor and basement, and red oak hardwood flooring in the living room, family room, dining room, and upstairs hallway. The dining room is enhanced with a tray ceiling and crown molding. The kitchen and bathrooms will feature ceramic tile, while the bedrooms will have comfortable wall-to-wall carpeting. A 36” gas fireplace provides a cozy centerpiece in the main living space. Additional highlights include oak handrails with white balusters, recessed lighting (10 fixtures), and a choice of interior doors with colonial-style molding and baseboards.
Conveniences include hookups for a washer and dryer, two telephone outlets, two cable outlets, and a garage wired for a door opener. Benjamin Moore paint (two color choices) with white trim is included. Closet shelving is PVC-coated throughout, with optional upgrade packages available for the primary bedroom.
Don’t miss the chance to personalize your finishes and create a home tailored to your lifestyle. A rare new construction opportunity in a highly desirable area! © 2025 OneKey™ MLS, LLC







