| ID # | 891426 |
| 物件の詳細 | 外装: 1.05 エーカー (DOM): 102 days |
| 税金(年間) | $4,981 |
![]() |
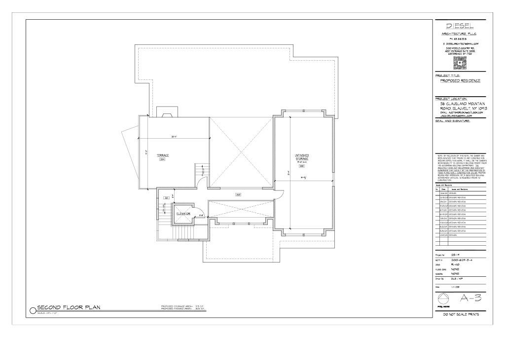
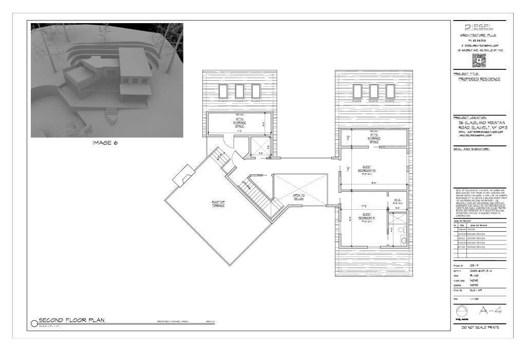
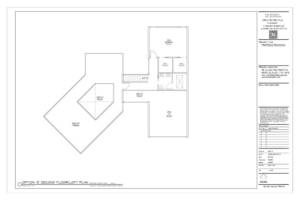
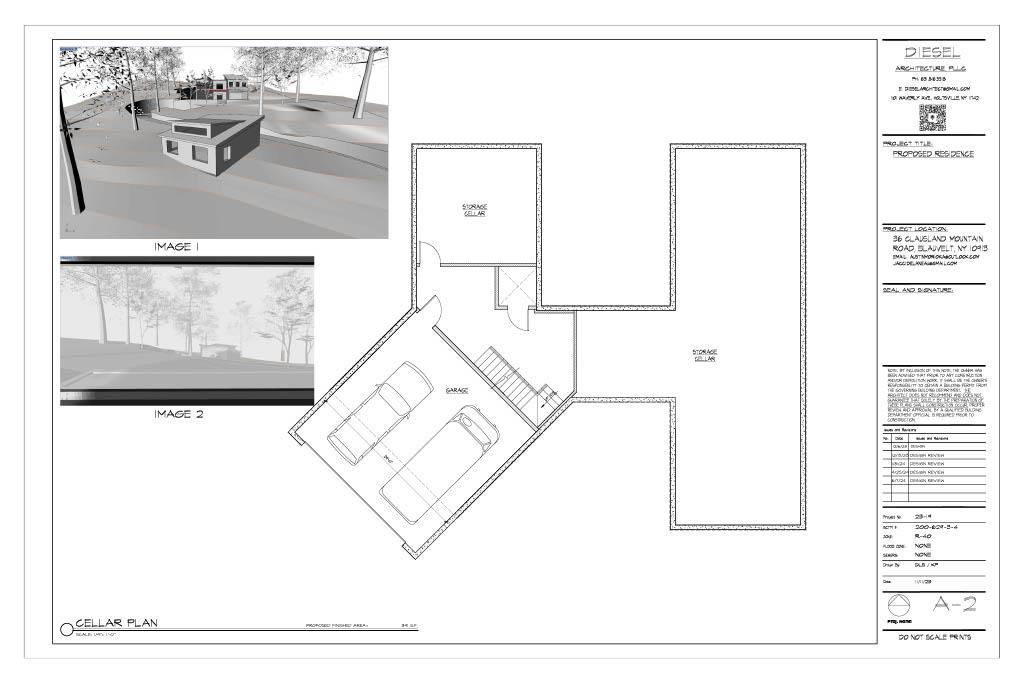
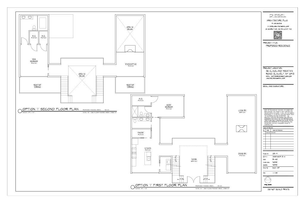
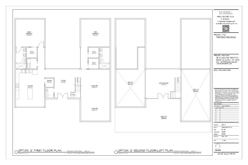
静かで自然に囲まれた場所に位置するこの美しい土地は、理想的な隠れ家を作るための完璧な機会を提供します。主要道路、ショッピング、ダイニングから数分の距離にありながら、プライバシーと静けさを提供するために十分に隠れています。成熟した木々と緑豊かな植物に囲まれ、自然と便利さの調和の取れたブレンドを楽しめるこの物件は、夢の家を建てるために、または将来の開発への投資を考えている方にとって、潜在能力に満ちています。楽園の一片を手に入れるチャンスをお見逃しなく。主屋と付属のゲストハウスの可能性を示すために、間取り図と図面が添付されています。
Nestled in a peaceful, natural setting, this beautiful piece of land offers the perfect opportunity to create your ideal retreat. Located just minutes from major roads, shopping, and dining, yet tucked away enough to provide privacy and tranquility. Surrounded by mature trees and lush greenery, the property offers a harmonious blend of nature and convenience. Whether you're looking to build your dream home or invest in future development, this land is full of potential. Don't miss the chance to own a slice of paradise. Floor Plans and drawing attached to show the possibilities of the main house and attached guest house © 2025 OneKey™ MLS, LLC







