| MLS # | 893903 |
| 物件の詳細 | 4 寝室, 2 バスルーム, 1 ハーフバス, 食器洗い機, 洗濯機, ガレージ, エアコン, 外装: 0.38 エーカー, 内装: 2609 ft2, 242m2 (DOM): 250 days |
| 建築年 | 2025 |
| 燃料の種類 | 天然ガス Gas |
| 暖房タイプ | 温風 Hot air |
| エアコン | セントラルエアコン Central Air |
| 地下室 | 全面地下室 Full basement |
| LIRR | 4.3 マイル: "Port Jefferson" |
| 8.4 マイル: "Stony Brook" | |
![]() |
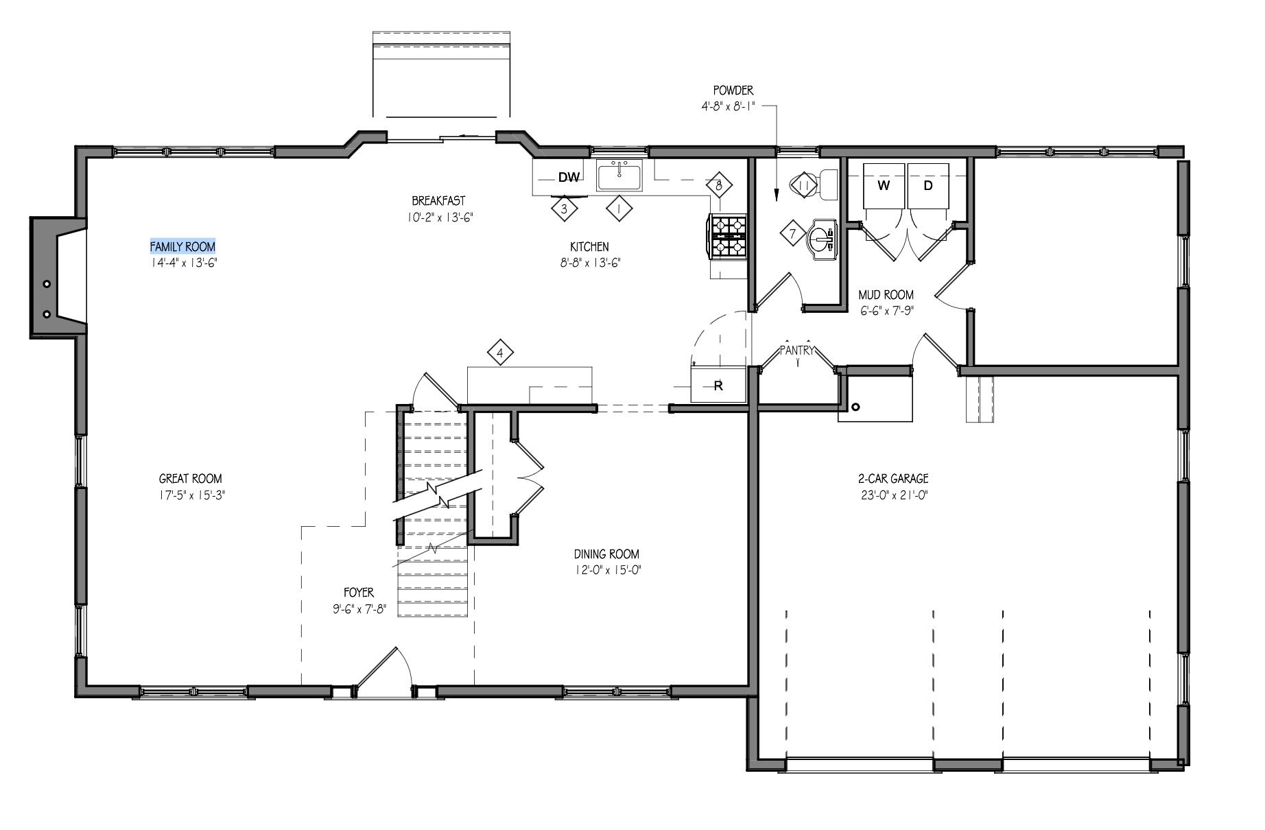
新築コロニアル – 建設予定。4ベッドルーム、2.5バスルーム
夢の家を低金利4.99%で建てる絶好のチャンス!この美しいコロニアルスタイルの家は、広々とした4つのベッドルーム、2.5バスルーム、そして内部アクセスのある大型の付属ガレージを特徴とします。
外観の特徴には、30年保証の建築用屋根シングル、アスファルトのドライブウェイと歩道、サイドライト付きの前ポーチ、メンテナンスフリーのビニールサイディングが含まれています。石のアクセントはリクエストに応じて選べます。また、家にはアルミ製の雨樋やリーダー、前後に外部電気アウトレットとホースビブ、6フィートのスライドガラスドア、芝生を播いた前後の庭も含まれます。
内部では、主階は9フィートの天井、高層階と地下室は8フィートの天井となっており、リビングルーム、ファミリールーム、ダイニングルーム、2階の廊下には赤オークのハードウッドフローリングが使用されています。ダイニングルームにはトレイ天井とクラウンモールディングが施されています。キッチンとバスルームはセラミックタイルが使用され、ベッドルームには快適な壁から壁へのカーペットがあり、ハードウッドフロアへのアップグレードも可能です。36インチのガス暖炉が主な生活空間の心暖まる中心となっています。追加の特徴として、白いバラスター付きのオーク製手すり、埋め込み照明(10器)、コロニアルスタイルのモールディングとベースボードの内部ドアの選択肢があります。
便利な設備として、洗濯機と乾燥機の接続、2つの電話アウトレット、2つのケーブルアウトレット、ドアオープナー用に配線されたガレージがあります。ベンジャミン・ムーアのペイント(2色の選択肢)と白いトリムが含まれています。クローゼットの棚はPVCコーティングされており、主寝室のオプションアップグレードパッケージも利用可能です。
あなたの好みに合わせて仕上げをカスタマイズし、ライフスタイルに合わせた家を作るチャンスをお見逃しなく。非常に望ましいエリアでの珍しい新築の機会です!
New Construction Colonial – To Be Built. 4 Bedrooms, 2.5 Bathrooms
Incredible opportunity to build your dream home with an interest rate as low as 4.99%! This beautiful Colonial will feature four generously sized bedrooms, two and a half bathrooms, and an oversized attached garage with interior access.
Exterior features include architectural roof shingles with a 30-year guarantee, a blacktop driveway and walkway, a front porch with sidelights, and maintenance-free vinyl siding. Stone accents are available upon request. The home will also include aluminum gutters and leaders, exterior electrical outlets and hose bibs in the front and rear, a 6’ sliding glass door, and seeded front and rear yards.
Inside, the home offers 9-foot ceilings on the main level, 8-foot ceilings on the second floor and basement, and red oak hardwood flooring in the living room, family room, dining room, and upstairs hallway. The dining room is enhanced with a tray ceiling and crown molding. The kitchen and bathrooms will feature ceramic tile, while the bedrooms will have comfortable wall-to-wall carpeting with Hardwood Floor upgrade available. A 36” gas fireplace provides a cozy centerpiece in the main living space. Additional highlights include oak handrails with white balusters, recessed lighting (10 fixtures), and a choice of interior doors with colonial-style molding and baseboards.
Conveniences include hookups for a washer and dryer, two telephone outlets, two cable outlets, and a garage wired for a door opener. Benjamin Moore paint (two color choices) with white trim is included. Closet shelving is PVC-coated throughout, with optional upgrade packages available for the primary bedroom.
Don’t miss the chance to personalize your finishes and create a home tailored to your lifestyle. A rare new construction opportunity in a highly desirable area!
This information is not verified for authenticity or accuracy and is not guaranteed and may not reflect all real estate activity in the market. Listing courtesy of Coldwell Banker American Homes © 2026







