| MLS # | 897092 |
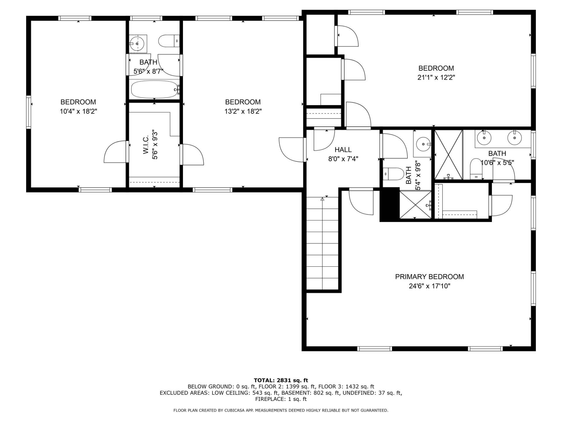
| 物件の詳細 | 4 寝室, 4 バスルーム, 1 ハーフバス, ガレージ, エアコン, 内装: 2800 ft2, 260m2 (DOM): 89 days |
| 建築年 | 1924 |
| 燃料の種類 | オイル暖房 Oil |
| 暖房タイプ | 温水 Hot water |
| エアコン | セントラルエアコン Central Air |
| 地下室 | 部分地下室 Partial |
| ガレージタイプ | 独立型 Detached |
| LIRR | 2.2 マイル: "Westhampton" |
| 5 マイル: "Speonk" | |
![]() |
クォーグ南オフシーズンレンタル
木々に囲まれた道の奥に隠れた、この素敵なシングルスタイルの4ベッドルーム、4.5バスルームは、クォーグのすべての施設からわずかの距離です。1階には、暖炉がある広々とした木の梁のある大部屋、イートインキッチン、ランドリールーム、書斎、1.5バスルームがあります。2階には、ウォークインクローゼットと改装されたバスルームを備えた主寝室、2つのツインベッドルーム、1つのクイーンベッドルーム、2つのゲスト用フルバスルームがあります。外には、離れたガレージ、広々とした裏庭、加熱プールがあります。理想的なオフシーズンの隠れ家です!9月 $15,000、10月 $10,000、冬 $4,500/月、5月 $6,000。9月から5月まで利用可能です。
QUOGUE SOUTH OFF-SEASON RENTAL Hidden away down a leafy driveway, this lovely shingle-style 4 BR, 4.5 BA is just a short distance to everything in Quogue. The first floor features an enormous wood-beamed great room with fireplace; eat-in kitchen; laundry room; den; and 1.5 baths. Upstairs is a primary suite with walk-in closet and renovated bath; two twin bedrooms; one queen bedroom, and 2 full guest baths. Outside is a detached garage, spacious back yard, and heated pool. The ideal off-season getaway! Sept $15k, October $10k, Winter $4500/mo, May $6k. Available September-May. © 2025 OneKey™ MLS, LLC







