| ID # | RLS20042219 |
| 物件の詳細 | 5 寝室, 4 バスルーム, 1 ハーフバス, 食器洗い機, 洗濯機, 乾燥機, 内装: 3003 ft2, 279m2 (DOM): 210 days |
| 建築年 | 1931 |
| 税金(年間) | $7,416 |
| バス | 3 分: B54, B60 |
| 4 分: B38 | |
| 6 分: B52 | |
| 7 分: B47, Q24 | |
| 9 分: B46 | |
| 地下鉄 | 5 分: M |
| 7 分: J | |
| 9 分: Z | |
| LIRR | 1.8 マイル: "East New York" |
| 1.8 マイル: "Nostrand Avenue" | |
![]() |
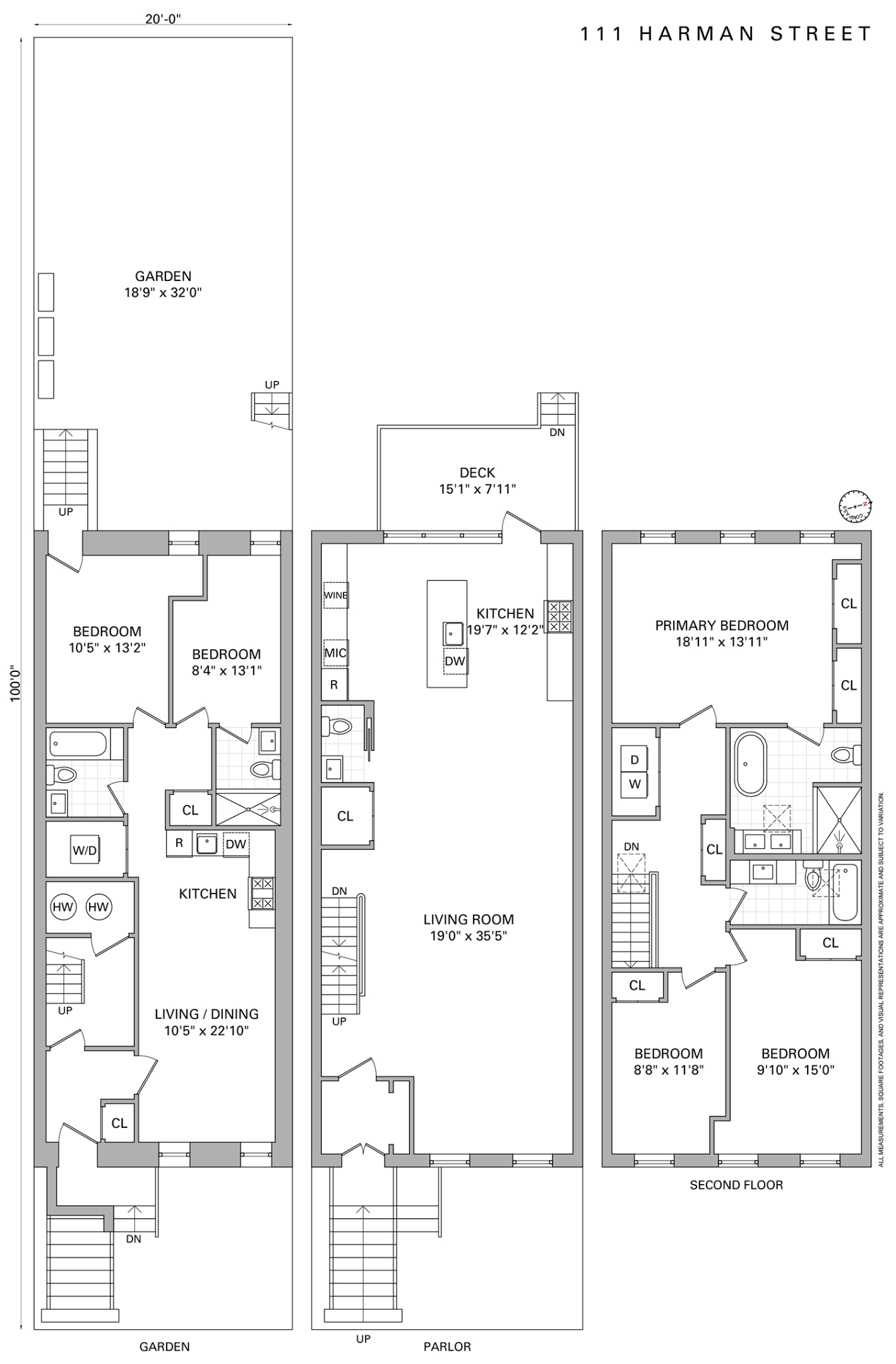
ようこそ、バッシュウィックの中心に位置する配慮された改修が施された二世帯住宅、111ハーマンストリートへ。1931年に建てられたこのエレガントな三階建ての住居は、5つの寝室、4つのフルバスルーム、そしてパウダールームを備え、すべてが高級仕上げと最新技術で装備されています。
高い天井のある3ベッドルームのデュプレックスには、二重ガラスパネルのエントリードアを持つ魅力的なフォイエを通って入ります。大きな東向きの前面窓が広々としたパーラー階を自然光で満たします。幅の広いフローリングのリビングとダイニングエリアは、便利なパウダールームとともに、エンターテインメントに最適なオープンコンセプトです。
シェフのキッチンは、全面ガラスの後壁を通して広々とした裏庭を見渡します。ウォーターフォールクォーツのカウンタートップが中央のキッチンアイランドのファームハウスシンクを囲んでいます。カスタムキャビネットとボッシュの家電製品(統合されたフレンチドア冷蔵庫、統合食器洗い機、ポットフィラー付きの6バーナーコンロ、ワイン冷蔵庫)により、これは料理愛好家にとって夢のようなキッチンです。
上階には、裏庭を見渡す主寝室があり、2つのフルクローゼットで十分な収納を提供しています。スパのような専用バスルームは、天窓から自然光が差し込み、広々とした浸かり浴槽、ウォークインシャワー、浮遊式ダブルバニティを備えており、禅のひとときを楽しむのに最適です。この階には、追加の2つの寝室をサービスする天窓のあるフルバスルームがあり、ユニット内の洗濯機と乾燥機の便利さもあります。
ガーデンレベルの2ベッドルーム、2バスの住居は、フルキッチンとステンレス製の家電が完備されたオープンなリビングとダイニングエリアで、快適さとスタイルを提供します。ユニット内に洗濯機/乾燥機が付いており、このアパートの高級な生活体験を高めており、ゲストスイートまたは収益を生み出すレンタルユニットとして使用できます。
この細心の改修におけるキュレーションされたディテールには、ビルトインサウンドシステムとゾーン式のセントラルエアコンが含まれており、贅沢さと現代的な洗練の感覚を生み出しています。
この活気あふれる地域には、サンライズ/Sunset Bar、タブーレカフェ、ボサノバシビッククラブなど、多くの食事や飲み物のオプションがあります。近隣の公共交通機関には、数ブロック先にあるM線とJ線があります。
Read the English version or choose another language
This information is not verified for authenticity or accuracy and is not guaranteed and may not reflect all real estate activity in the market. ©2025 The Real Estate Board of New York, Inc., All rights reserved.







