| MLS # | 902179 |
| 物件の詳細 | 3 家族, 6 寝室, 4 バスルーム, エアコン, 外装: 0.05 エーカー (DOM): 77 days |
| 建築年 | 1931 |
| 税金(年間) | $2,770 |
| 燃料の種類 | 電気 Electric |
| 暖房タイプ | 電気 Electric |
| エアコン | 壁掛けエアコン Wall Unit AC |
| バス | 1 分: B54 |
| 2 分: B38, B60 | |
| 7 分: B52 | |
| 8 分: B47, Q24 | |
| 9 分: B46 | |
| 10 分: B13 | |
| 地下鉄 | 4 分: M |
| 8 分: J | |
| LIRR | 1.8 マイル: "East New York" |
| 1.8 マイル: "Nostrand Avenue" | |
![]() |
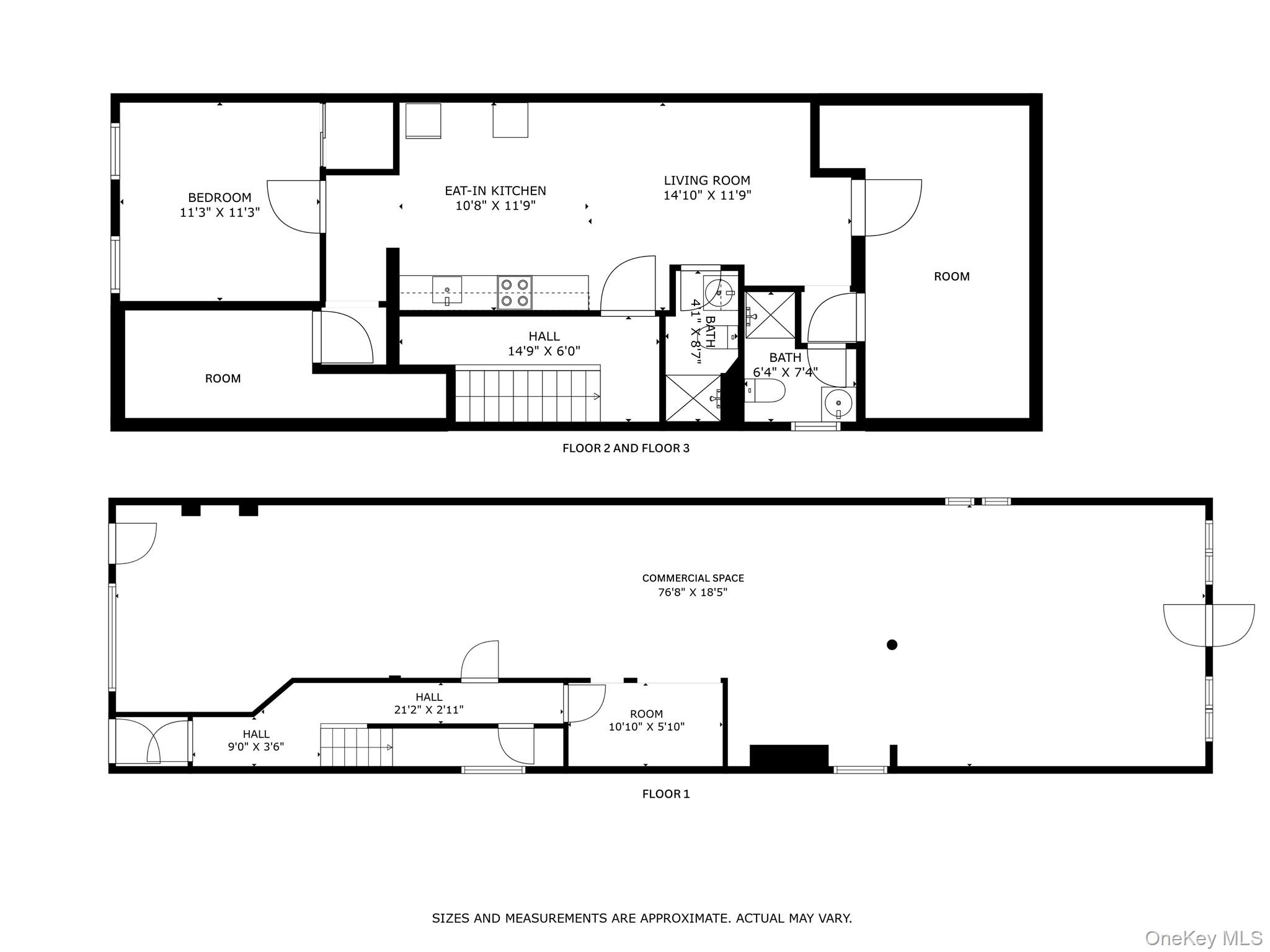
混合用途の2世帯住宅と空き商業スペースがあるブッシュウィックの物件!
ブッシュウィックの中心部でチャンス到来!この混合用途の2世帯住宅と店舗のビルには、各3ベッドルームと2バスルームの広々としたアパートが2つあります。クラシックなボックススタイルの間取りはプライバシーを確保し、各ベッドルームには他の部屋を通らずにアクセスできます。このビルの最も魅力的な点は、すぐに収入を得られる空き商業スペースがあることです。現時点でどちらのユニットもリース契約がないため、すぐに改装、賃貸、または自分で使用する柔軟性があります。物件には未完成の地下室も含まれており、収納や将来の利用に最適です。
近隣には地元のショップ、レストラン、公共交通機関があり、ニッカボッカー・アベニューとセントラル・アベニューのMトレインの地下鉄駅からわずか2ブロック、忙しいマートル・アベニューからは1ブロックの距離に位置しており、強い人通りとアクセスのしやすさが保証されます。この物件は、価値を創出しようとしている投資家やエンドユーザーに最適な、非常に望ましいブルックリンのロケーションです。
建物:19.67 x 55 ft
敷地:19.67 x 100 ft
ゾーニング:R6
FAR:1.27;最大FAR:2.43
税金:$2,770/年
無限の可能性 — あなたのビジョンを持ち、229セントラル・アベニューを次の投資または家にしましょう!
素晴らしい投資機会!
*免責事項:提供される情報は信頼できると見なされますが、保証はされておらず、独自に確認されるべきです。
Mixed-Use 2-Family with Vacant Commercial Space in Bushwick!
Opportunity knocks in prime Bushwick! This mixed-use 2-family plus store building offers two
spacious apartments, each with a 3-bedroom box layouts and 2 bathrooms. The classic box-style floor plan ensures privacy, with each bedroom accessed without walking through another. The most desirable aspect of this building must be the vacant commercial space allowing the new owner to start earning income immediately. Neither unit currently has a lease, giving you the flexibility to renovate, rent, or occupy immediately. The property also includes an unfinished basement — perfect for storage or potential future use.
Located in a vibrant neighborhood near local shops, restaurants, and public transportation, it is just 2 blocks from Knickerbocker Ave and Central Ave M train subway stations, only 1 block from busy Myrtle Ave, ensuring strong foot traffic and easy accessibility. This property is ideal for investors or end-users looking to create value in a highly desirable Brooklyn location.
Building: 19.67 x 55 ft
Lot: 19.67 x 100 ft
Zoning: R6
FAR: 1.27; Max FAR: 2.43
Taxes: $2,770/Yr
Endless potential — bring your vision and make 229 Central Ave your next investment or home!
Great Investment Opportunity!
*Disclaimer: All Information provided is deemed reliable but is not guaranteed and should be independently verified. © 2025 OneKey™ MLS, LLC






