| ID # | RLS20043216 |
| 物件の詳細 | The Lausanne 1 寝室, 1 バスルーム, 内装: 531 ft2, 49m2 (DOM): 78 days |
| 建築年 | 1977 |
| 管理費 | $729 |
| 税金(年間) | $7,824 |
| 地下鉄 | 7 分: 7 |
| 8 分: 4, 5, 6 | |
| 9 分: E, M | |
![]() |
最近1万ドルの価格下落!! 売主はやる気満々です。フルサービスのミッドタウンイーストビルにあるエレガントな1ベッドルームコンドミニアム。非常に低い管理費!! 今日の内覧をご希望の方はご連絡ください!!
ラウザンヌへようこそ、333 E. 45th St. #16A
優れた設備を備えた現代的な都市生活を提供する、入念に管理されたフルサービスコンドミニアムです。
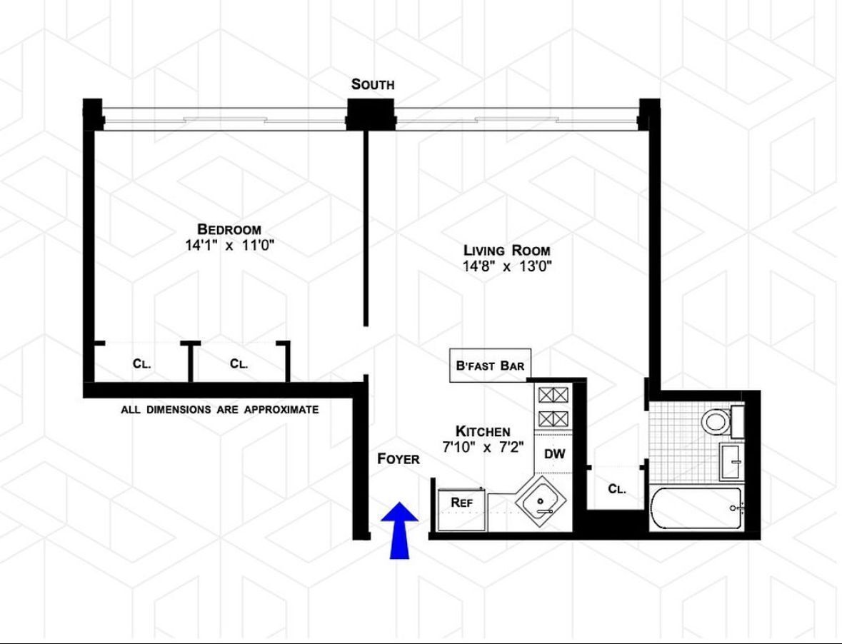
南向きの16階に位置する1ベッドルームのホームには以下の特徴があります:
料理とエンターテイメントに最適なアイランド付きの現代的なオープンキッチン
豊富な自然光が入る広々としたリビングとダイニングエリア
最大の収納スペースを確保する深いクローゼットのある大きなベッドルーム
ビルのハイライト:
フルタイムのドアマンと親しみやすい常駐スーパーバイザー
管理の行き届いた低い共益費
仕事やリラックスのための2階のジムとラウンジ
自然光の入る更新された洗濯設備
ペットフレンドリー(オーナー1人につき1匹)
敷地内のガレージと便利な回り道
イーストリバー、エンパイアステートビル、クライスラービル、そしてザ・サミットのパノラマビューを楽しめるルーフトップデッキ
最高のミッドタウンイーストのロケーション:
国連からすぐ、そして4、5、6、7、S線へのアクセスがあるグランドセントラル駅までの短い徒歩圏内。歴史的な名所、高層ビル、チューダーシティグリーンズやイーストリバーエスプラネードの公園、多様なダイニングオプションが共存するミッドタウンイーストの活気あるエネルギーを楽しめます。
このコンドは初めての家、投資物件、またはピエ・ア・テールとして理想的で、マンハッタンの最も象徴的な地区の一つでスタイルと便利さを提供します。
あなたのプライベートショーイングを今日スケジュールしてください!
Recent $10,000 price drop!! Motivated Seller. Elegant 1-Bedroom Condo in Full-Service Midtown East Building. Extremely low monthlies!! Contact me to view today!!
Welcome to The Lausanne, 333 E. 45th St. #16A
A meticulously maintained full-service condominium offering modern city living with exceptional amenities.
This south-facing 16th-floor 1-bedroom home features:
A modern open kitchen with island, perfect for cooking and entertaining
Spacious living and dining area with abundant natural light
Large bedroom with deep closets for maximum storage
Building Highlights:
Full-time doorman and friendly live-in superintendent
Low common charges with well-managed amenities
Second-floor gym and lounge for work or relaxation
Updated laundry facilities with natural light
Pet-friendly (one pet per owner)
On-site garage and convenient wrap-around driveway
Rooftop deck with panoramic views of the East River, Empire State Building, Chrysler Building, and The Summit
Prime Midtown East Location:
Steps from the United Nations, and a short walk to Grand Central Terminal with access to the 4, 5, 6, 7, and S subway lines, Metro-North, and multiple bus routes. Enjoy the vibrant energy of Midtown East with its mix of historic landmarks, towering skyscrapers, parks like Tudor City Greens and the East River Esplanade, and a diverse array of dining options from classic delis to fine dining.
This condo is ideal as a first home, investment property, or pied-à-terre, offering both style and convenience in one of Manhattan’s most iconic neighborhoods.
Schedule your private showing today!
This information is not verified for authenticity or accuracy and is not guaranteed and may not reflect all real estate activity in the market. ©2025 The Real Estate Board of New York, Inc., All rights reserved.







