| MLS # | 868765 |
| 物件の詳細 | 4 寝室, 2 バスルーム, 1 ハーフバス, ガレージ, エアコン, 内装: 3500 ft2, 325m2 (DOM): 73 days |
| 建築年 | 2025 |
| 税金(年間) | $4,128 |
| 燃料の種類 | 天然ガス Gas |
| 暖房タイプ | 床/壁暖房 Radiant (Floor/Wall) |
| エアコン | セントラルエアコン Central Air |
| LIRR | 1.4 マイル: "Bay Shore" |
| 3.2 マイル: "Islip" | |
![]() |
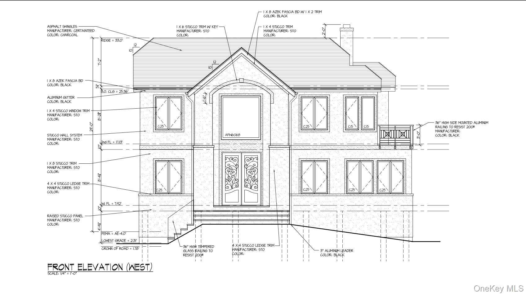
これは土地のみの販売リストです。写真にあるプランは、私が作成し、1年前にブライトウォーターズ村で承認を得たものです。これらのプランを使用して同じ家を建てることも、自分の仕様に完全に合わせた家を作ることもできます。紹介をご希望の場合は、建築家とビルダーをご紹介できます。また、現金で支払わない場合は、あなたの建築資金を提供できるモーゲージ融資者もいます。どちらを希望されるかお知らせください。これは間違いなく現在のMLSで最も見落とされている物件です。3,000平方フィートの家を建てる計画がある場合、すぐに数十万ドルのエクイティが得られます。これは、完璧な立地での一生に一度の取引です。頑張ってください。お読みいただきありがとうございます。
This is a Land Only listing. The plans in the photos are my plans that I created and got approved through the Village of Brightwaters 1 year ago. You can have them and build that same house, or you can create your own build exactly to your specifications. I have an architect and a builder if you would like a referral. I also have a mortgage lender that can finance your build if you are not paying cash. Simply let me know which you would prefer. This is undoubtedly the most overlooked property on the MLS today. If you plan to build a 3,000 square foot home, you will have a few hundred thousand in equity available to you immediately. This literally the deal of a lifetime in the perfect location. Good luck. Thank you for reading. © 2025 OneKey™ MLS, LLC







