| ID # | RLS20044044 |
| 物件の詳細 | 1 寝室, 1 バスルーム, 食器洗い機, ガレージ, 内装: 581 ft2, 54m2 (DOM): 89 days |
| 建築年 | 2016 |
| 管理費 | $439 |
| 税金(年間) | $288 |
| バス | 1 分: B44 |
| 4 分: B12 | |
| 5 分: B44+ | |
| 6 分: B49 | |
| 8 分: B35, B43 | |
| 地下鉄 | 4 分: 2, 5 |
| LIRR | 1.4 マイル: "Nostrand Avenue" |
| 2.3 マイル: "Atlantic Terminal" | |
![]() |
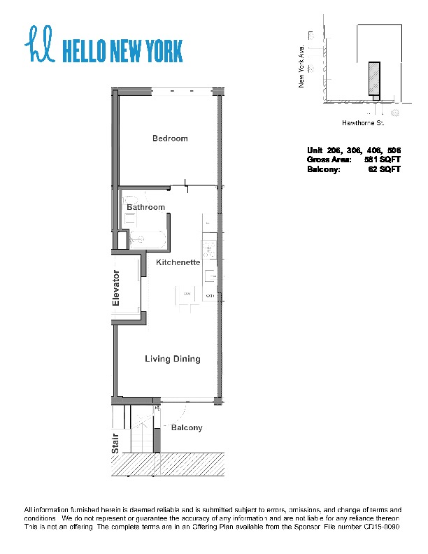
この素晴らしい1ベッドルーム1バスルームの家は、プライベートキー付きのエレベーターを備え、階への直接アクセスを提供する贅沢な生活体験を提供します。プロスペクトレフツガーデンの中心にある現代的でエレガントな居住空間です。中に入ると、床から天井までの窓があり、自然光が家を満たし、周囲の都市景観が驚くほど美しいのを発見できます。ボッシュとブロンバーグの家電、カエザーストーンのカウンター、ブレックファーストバーを備えたオープンキッチンは、シェフの夢であり、料理やゲストのエンターテイメントに最適です。
北欧風のバスルームでリラックスしてくつろぎ、浸かれるバスタブ、雨季シャワー、コーラーのボウルシンク付きのカララホワイト大理石バニティカウンター、便利なインユニットの洗濯機/乾燥機を完備しています。居住空間にはコンクリートの床、中央暖房、防音窓、中央空調が備わっており、年間を通じて快適さが確保されています。外にはプライベートテラスがあり、屋外での食事やリラクゼーションを楽しめます。また、建物のアメニティにはバイク置き場、パッケージルーム、ビデオインターフォン、ビデオセキュリティ、アクティブライフスタイルにぴったりなジムも完備されています。さらに、駐車場は賃貸可能(利用可能な場合)。
活気ある地域に便利に位置するこの家は、ブルックリンが提供するすべてへのアクセスが容易です。固定資産税の減免、暖房、空調が低い月額料金に含まれており、贅沢な都市生活を体験するチャンスです。この洗練された都市の隠れ家をあなた自身のものにする機会をお見逃しなく。
This exquisite 1BR 1BA home offers a luxurious living experience with a private keyed elevator, providing direct access to your floor. A modern and elegant residence in the heart of Prospect Lefferts Gardens. Step inside to discover a thoughtfully designed space featuring floor-to-ceiling windows that flood the home with natural light and offer stunning views of the surrounding cityscape. The open kitchen, equipped with Bosch and Blomberg appliances, Caesarstone counters, and a breakfast bar, is a chef’s dream, perfect for culinary creations and entertaining guests.
Relax and unwind in the Scandinavian-inspired bathroom, complete with soaking tubs, rainfall shower, Carrara white marble vanity counters with Kohler vessel sinks, and in-unit washer/dryer for added convenience. The residence boasts concrete floors, central heating, soundproof windows, and central AC, ensuring comfort throughout the year. Outside, a private terrace beckons for al fresco dining and relaxation, while the building amenities include a bike storage, package room, video intercom, video security, and even a gym for an active lifestyle. Additionally, on-site parking for rent (when available).
Conveniently located in a vibrant neighborhood, this home offers easy access to all that Brooklyn has to offer. With property tax abatement, heat, and AC included in low monthlies, this is an opportunity to experience luxurious city living at its finest. Don’t miss the chance to make this sophisticated urban retreat your own.
This information is not verified for authenticity or accuracy and is not guaranteed and may not reflect all real estate activity in the market. ©2025 The Real Estate Board of New York, Inc., All rights reserved.







