| ID # | 905702 |
| 物件の詳細 | 外装: 0.29 エーカー (DOM): 68 days |
| 税金(年間) | $6,350 |
![]() |
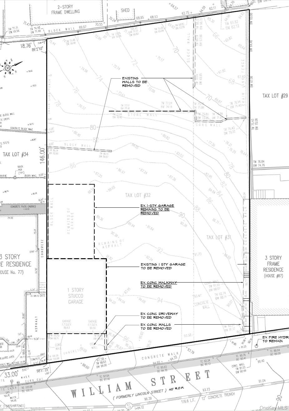
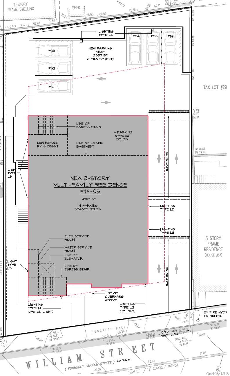
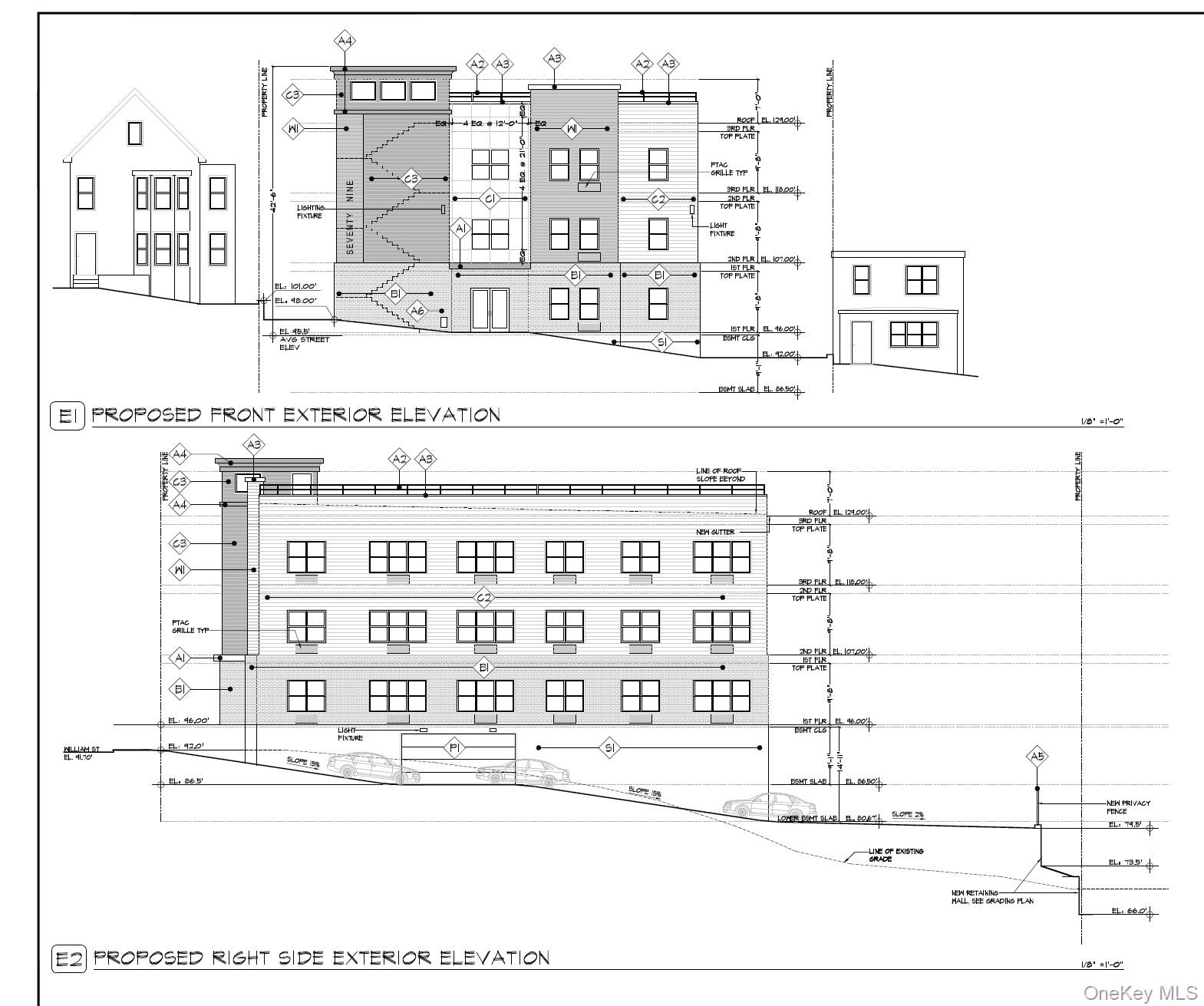
裏側に緩やかな傾斜のある平坦な敷地。計画委員会によって承認されたサイトプラン。1ベッドルームのアパートが15戸。駐車スペースは20台 - 14台は内部。3階建てのエレベーター付きビル。ノダインヒルの静かな行き止まりの通り。ヨンカースの素晴らしいプロジェクトです!
Flat lot with gentle slop to the rear. Site plan approved by Planning board. 15 one bed apts,. 20 parking spaces-14 interior. 3 Story elevator building.
Quiet dead end Street in Nodine Hill. Nice project in Yonkers! © 2025 OneKey™ MLS, LLC







