| MLS # | 906437 |
| 建築年 | 1900 |
| 税金(年間) | $66,565 |
| 燃料の種類 | 天然ガス Gas |
| 地下室 | 部分地下室 Partial |
| バス | 0 分: B63 |
| 1 分: B65 | |
| 2 分: B57, B61 | |
| 3 分: B103, B41, B45, B62, B67 | |
| 4 分: B25, B26, B38, B52 | |
| 7 分: B54 | |
| 地下鉄 | 3 分: A, C, G |
| 4 分: 2, 3 | |
| 5 分: F | |
| 6 分: R, 4, 5 | |
| 7 分: B, Q | |
| LIRR | 0.7 マイル: "Atlantic Terminal" |
| 2.2 マイル: "Nostrand Avenue" | |
![]() |
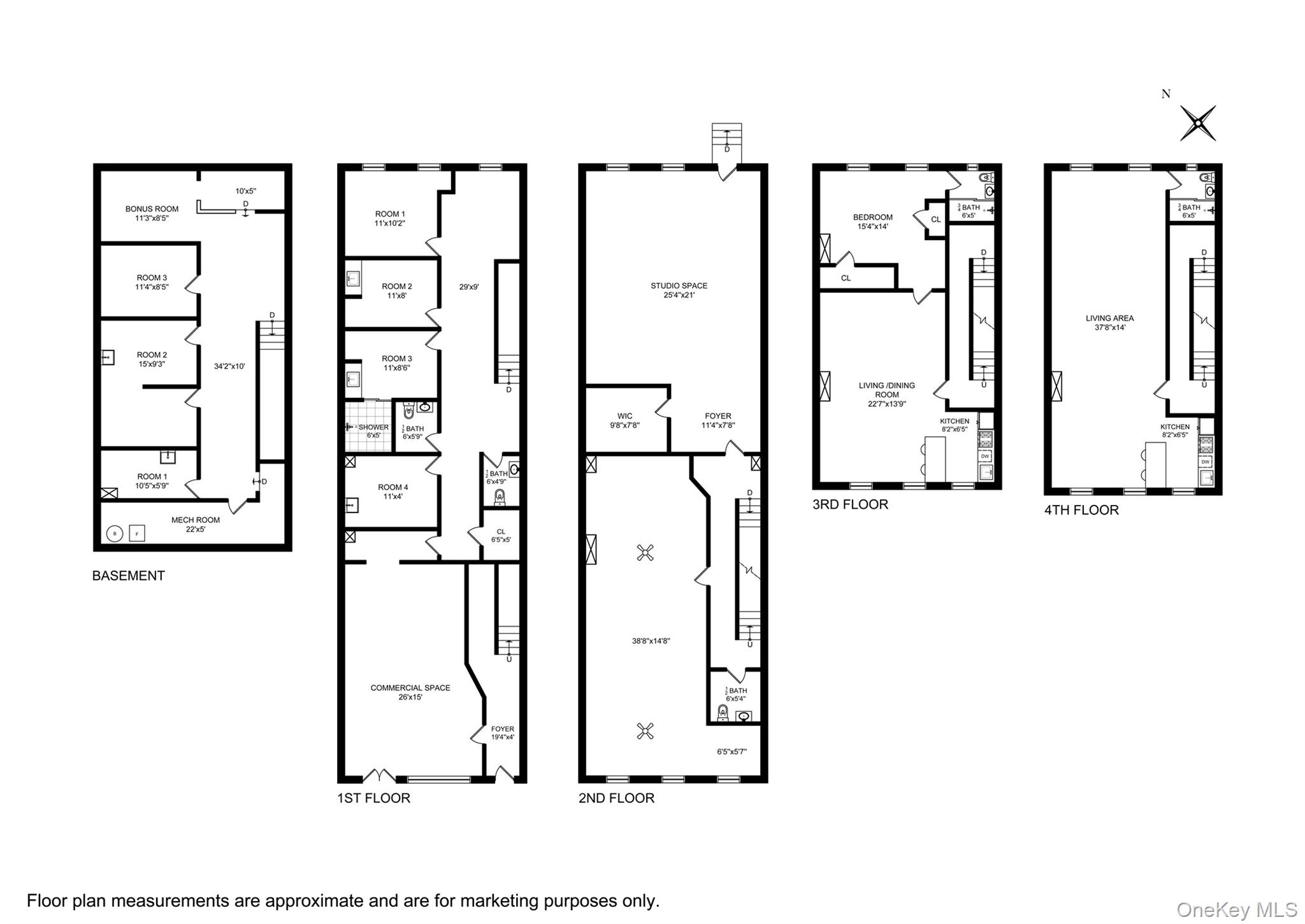
この複合用途のタウンハウスはボーラムヒルの中心に位置し、4階建て+地下室で、ブルックリンで最も人気のある地域の一つに投資する絶好の機会を提供します。予想純営業収入は$186,950で、賃貸調整や再開発による大きな上昇が期待できます。
1階:小売 1,879平方フィート(空き)+ 地下
2階:2つの商業ユニット(占有)
3階:1ベッドルーム、1バスアパート
4階:1ベッドルーム、1バスアパート
優れた立地:多くの交通 + 可視性
高い天井
ハードウッドフロア
むき出しのレンガの壁
新しいバスルーム(3.5バス)
非常に良好な状態
公共交通機関
賑やかな小売
質の高い学校、支援サービス、無限の機会
This mixed-use Townhouse is Located in the heart of Boerum Hill, 4-story + basement offers a prime opportunity to invest in one of Brooklyn’s most sought-after neighborhoods. With a projected Net Operating Income of $186,950 and significant upside through lease adjustments or redevelopment.
First Floor: Retail 1,879 sf (vacant) + Basement
Second Floor: 2 commercial units (occupied)
Third Floor: 1 BR, 1 Bath Apt
Fourth Floor: 1 BR, 1 Bath Apt
Excellent location: high traffic + visibility
High Ceilings
Hardwood Floors
Exposed Brick walls
New Baths (3.5 baths)
Very good condition
Public transit
Bustling retail
Quality Schools, Support Services, Endless Opportunities
This information is not verified for authenticity or accuracy and is not guaranteed and may not reflect all real estate activity in the market. Listing courtesy of A&B Realty II Corp © 2026







