| ID # | RLS20035245 |
| 物件の詳細 | スタジオアパート, 内装: 1482 ft2, 138m2 (DOM): 117 days |
| 建築年 | 1957 |
| 管理費 | $1,429 |
| 税金(年間) | $17,844 |
| 地下鉄 | 5 分: 7 |
| 6 分: 4, 5, 6 | |
| 9 分: S | |
![]() |
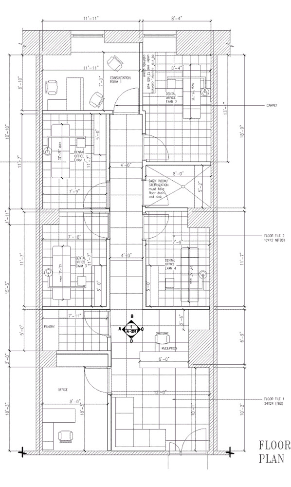
完全装備、即入居可能なオフィス(ミッドタウンイースト)– 家具付きまたは無家具で販売
即使用可能な8室のターンキー医療オフィス。このスペースは、すべての必須医療機器と完全なオフィス用品が揃った完全な家具付きです。内部は清潔で、考え抜かれたデザインが施され、快適性と効率性が最適化されており、患者ケアや日常業務に最適です。
レイアウトとインフラは、商業オフィス、歯科医院、クリニック、ウェルネスセンター、ミッション、または大使館など、さまざまな用途に適応するための容易な転換を可能にします。
プロパティのハイライト
8室のターンキースイート
受付・待機エリア
2つの個室オフィス
4つの診察室
滅菌室/パントリー・ファイルルーム
シンクとキャビネット付きの配管
便利用のためのトイレ
完全なADA遵守のためのハンディキャップアクセス
ビルの特徴
フルタイムのドアマンおよび有人ロビー
24/7の安全アクセス
エレベーター付きビル
中央空調
ハンディキャップアクセス
商業コンド
立地の利点
グランドセントラル駅、LIRR、メトロノース、地下鉄
NYU病院、ベルビュー、国連、サージケア
バス: M15、M100、M102、M103
理想的な用途
医療・歯科医院
精神科
ラボ・診断
クリニック
鍼灸・ウェルネス
商業オフィス
大使館及びミッション
Fully Built-Out, Move-In Ready Office in Midtown East – Sold Furnished or Unfurnished
Turnkey, 8-room medical office ready for immediate use. This space comes fully furnished with all essential medical equipment and complete office supplies. The interiors are clean, thoughtfully designed, and optimized for both comfort and efficiency, making it ideal for patient care and daily operations.
The layout and infrastructure also allow for easy conversion to suit a variety of uses, including commercial office, dental practice, clinic, wellness center, missions, or embassies.
Property Highlights
8room turnkey suite
Reception & waiting area
Two private offices
Four exam rooms
Sterilization/pantry & file room
Plumbing with Sink and Cabinets
Bathrooms on floor for convenience
Handicap accessible for full ADA compliance
Building Features
Fulltime doorman & attended lobby
24/7 secure access
Elevator building
Central air conditioning
Handicap Accessible
Commercial Condo
Location Advantages
Grand Central Station, LIRR, Metro North, Subways
NYU Hospitals, Bellevue, UN, Surgicare
Bus: M15, M100, M102, M103
Ideal For
Medical/ Dental practices
Psychiatry
Labs & diagnostics
Clinics
Acupuncture/ wellness
Commercial offices
Embassies and Missions
This information is not verified for authenticity or accuracy and is not guaranteed and may not reflect all real estate activity in the market. ©2025 The Real Estate Board of New York, Inc., All rights reserved.







