| MLS # | 907234 |
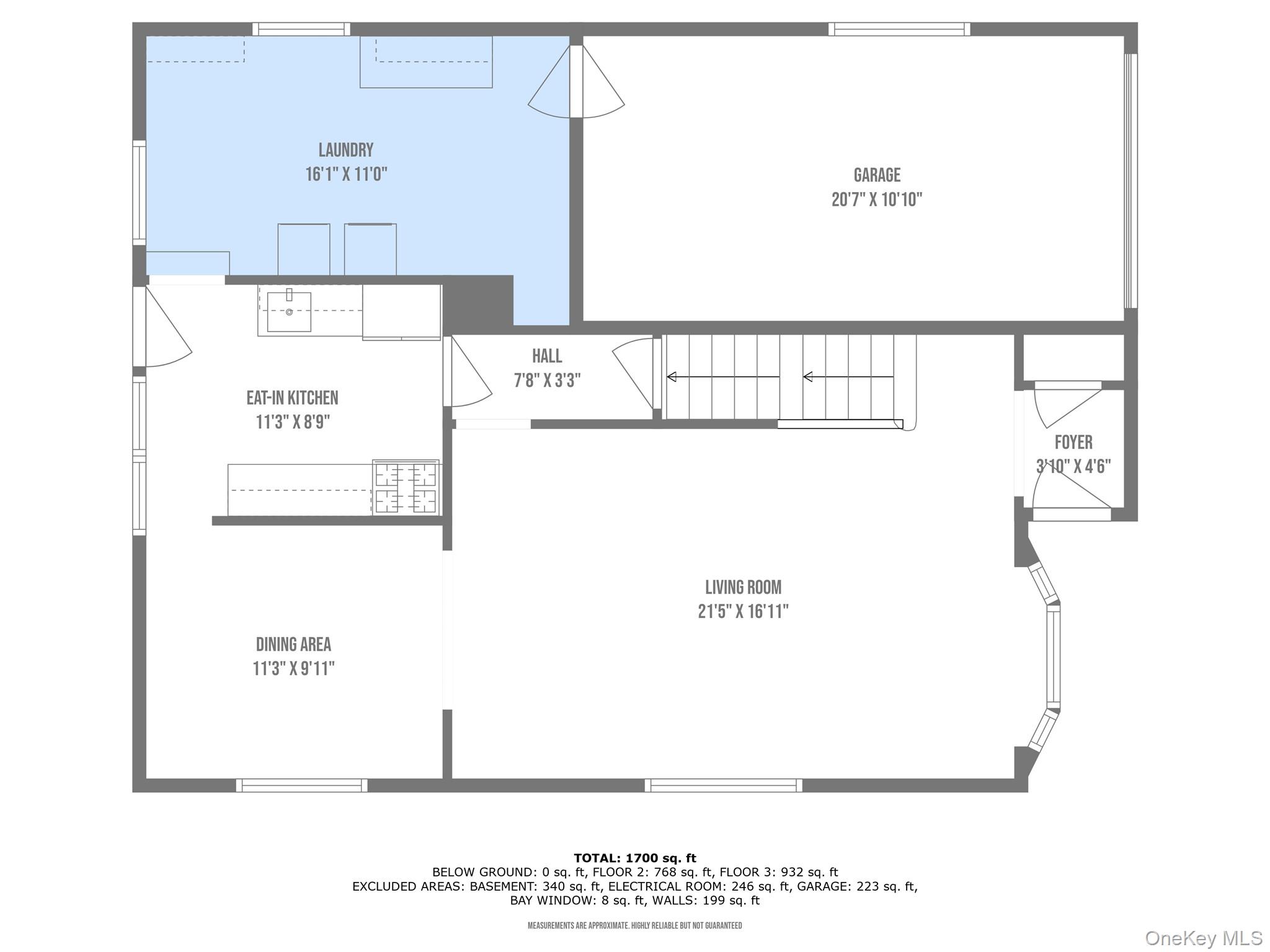
| 物件の詳細 | 4 寝室, 1 バスルーム, 洗濯機, 乾燥機, ガレージ, 53 X 104, 内装: 1772 ft2, 165m2 (DOM): 61 days |
| 建築年 | 1947 |
| 税金(年間) | $13,355 |
| 燃料の種類 | 天然ガス Gas |
| 地下室 | 全面地下室 Full basement |
| LIRR | 0.8 マイル: "Westbury" |
| 1.7 マイル: "Carle Place" | |
![]() |
この魅力的で広々とした4ベッドルームのコロニアルスタイルの家へようこそ!この家は、4つの十分な大きさのベッドルームと1つのフルバスを備え、広々としたリビングスペースを提供します。収納、趣味、または将来的な仕上げに最適なフルベースメントの便利さをお楽しみください。その他のハイライトには、ガス暖房、1台用のガレージ、そして完全に囲まれた裏庭が含まれています。屋外の集まり、ペット、または遊びに最適です。ショッピング、学校、公共交通機関から数分の場所にあり、この家はクラシックなスタイルと日常の便利さを兼ね備えています。この素晴らしい機会をお見逃しなく—今日、ツアーの予約をしましょう!税金にはビレッジ税が含まれています。
Welcome to this charming and spacious 4-bedroom Colonial-style home! Featuring generous living space, this home offers 4 well-sized bedrooms and 1 full bath. Enjoy the convenience of a full basement perfect for storage, hobbies, or future finishing. Additional highlights include gas heating, a 1-car garage, and a fully fenced backyard—perfect for outdoor gatherings, pets, or play. Located just minutes from shopping, schools, and public transportation, this home combines classic style with everyday convenience. Don’t miss this incredible opportunity—schedule your tour today! Taxes include Village tax. © 2025 OneKey™ MLS, LLC







