| ID # | RLS20045657 |
| 物件の詳細 | 2 寝室, 1 バスルーム, 洗濯機, 乾燥機 (DOM): 60 days |
| 建築年 | 1899 |
| バス | 1 分: B15 |
| 2 分: B26, B43 | |
| 4 分: B52 | |
| 6 分: B25 | |
| 10 分: B38, B44, B46 | |
| 地下鉄 | 7 分: C |
| LIRR | 0.6 マイル: "Nostrand Avenue" |
| 1.9 マイル: "Atlantic Terminal" | |
![]() |
即入居可能!
色とりどりのタウンハウスが並ぶ中、476Aジェファーソンアベニューのガーデンレジデンスは満足させることでしょう!
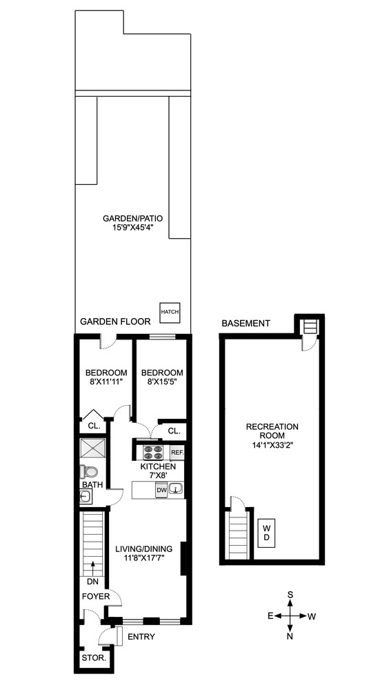
アパートに入ると、200平方フィート以上のリビングルームは北向きの窓が2つあるおかげで明るく保たれています。オープンキッチンにはステンレス製の冷蔵庫、食器洗い機、電子レンジ、フルサイズのオーブンがあります。グラナイト製の朝食バーは、料理、エンターテイメント、カジュアルなダイニングに十分なスペースを提供します。ここにはリビングルームの2つのレイアウトが示されています。
両方のベッドルームにはクイーンサイズのベッドを置くことができ、家具を置くためのスペースもあります。また、両方の部屋には衣類や収納用の大きなクローゼットも完備されています。フルバスルームは白いサブウェイタイルで飾られ、シャワースタンドがあります。
第二のベッドルームのドアを通ると、共用の庭が広がっています。木々に囲まれたこの場所にはパティオ家具、テーブル、椅子が揃っており、都会の喧騒からの心地よい息抜きとなります。
階下には300平方フィート以上の利用可能なスペースがあるレクリエーションルームがあり、室内洗濯機と乾燥機が設置されています。玄関の下には収納スペースがあり、セントラルヒートとエアコン、輝くハードウッドフロア、再現照明が全体に施されています。犬は承認により受け入れ可能です。
キングストン-スループのC線は5ブロック先にあり、マンハッタンへの移動はとても楽です。ピーチズ、サラギーナ、ブルックリン・ベソはすべて素晴らしい食事を提供しており、ルイス通りのすぐ近くにあります。食料品店は4ブロック先にあり、フルトンにはブリンクフィットネスがあります。
Available for immediately move-in!
In a row of colorful townhouses, the garden residence at 476A Jefferson Avenue is sure to please!
Entering the apartment, the 200+ sq/ft living room is nicely lit thanks to a pair of north-facing windows. The open kitchen features stainless steel refrigerator, dishwasher and microwave as well as a full-sized oven. The granite breakfast bar provides plenty of space for cooking, entertaining and casual dining. Shown here are two layouts for the living room.
Both bedrooms can accommodate a queen-sized bed with room for furniture. They also both hold large closets for clothing and storage. The full bath is adorned with white subway tiles and a stall shower.
Through the door of the second bedroom, the shared garden is a breath of fresh air. Surrounded by trees and outfitted with patio furniture, table and chairs, it is a welcoming vacation from the hustle of The City.
Downstairs, the rec room offers over 300 sq/ft of useable space and houses an in-unit washer dryer. There is storage beneath the stoop, central Heat & A/C, gleaming hardwood floors and recessed lighting throughout the space. Dogs are accepted on approval.
The Kingston-Throop C-train is five blocks away making travel into Manhattan a breeze. Peaches, Saraghina and Brooklyn Beso all serve incredible food and are all around the corner on Lewis. The grocery store is four blocks away and there is a Blink Fitness on Fulton.
This information is not verified for authenticity or accuracy and is not guaranteed and may not reflect all real estate activity in the market. ©2025 The Real Estate Board of New York, Inc., All rights reserved.







