| ID # | RLS20045756 |
| 物件の詳細 | 5 寝室, 3 バスルーム, 1 ハーフバス, 食器洗い機, 内装: 3400 ft2, 316m2 (DOM): 59 days |
| 建築年 | 1905 |
| バス | 0 分: B44, B45 |
| 3 分: B43, B44+ | |
| 6 分: B49 | |
| 7 分: B65 | |
| 地下鉄 | 4 分: 3 |
| 6 分: 2, 5 | |
| LIRR | 0.5 マイル: "Nostrand Avenue" |
| 1.7 マイル: "Atlantic Terminal" | |
![]() |
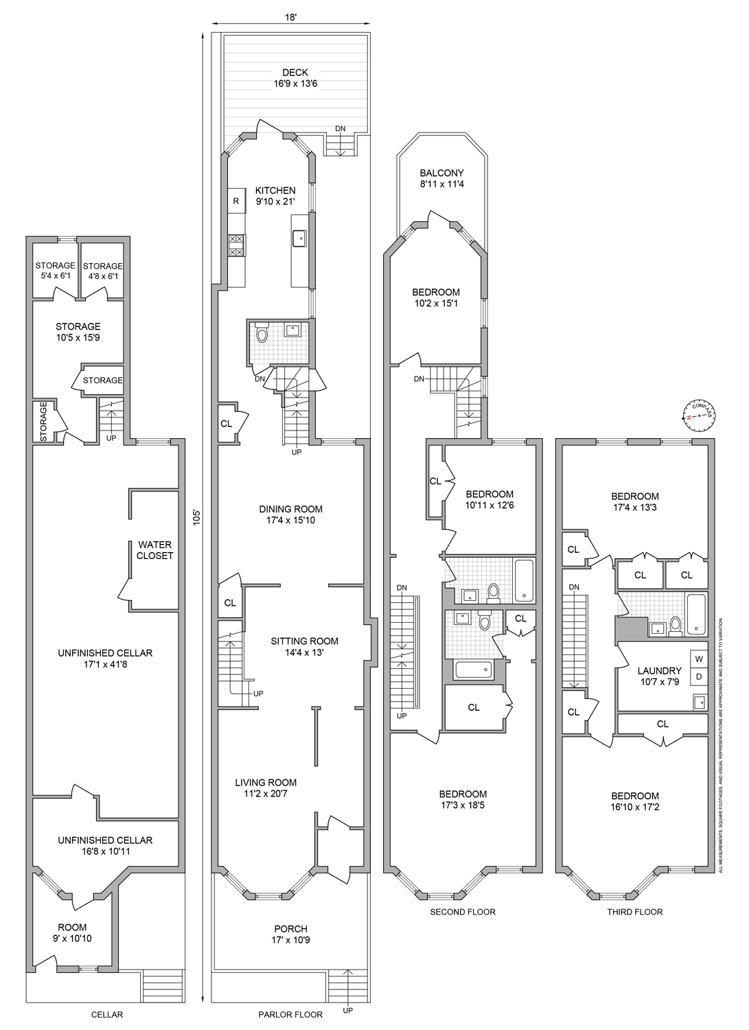
259 ニューヨークアベニューは、クROWN ハイツの最も美しい、歴史的なブロックの一つに位置する息をのむようなルネッサンスリバイバルスタイルのタウンハウスです。この威厳ある石灰岩の邸宅は、3階とフルベースメントにわたって4,000平方フィート以上の広さを誇り、歴史的な荘厳さと現代的な洗練を見事に融合させています。元々は二世帯住宅として建てられましたが、現在は広々とした一戸建て住宅として構成され、楽しんでいます。建築的な遺産を尊重しつつ入念に更新されたこの家は、複雑なモールディング、高い天井、輝くハードウッドフロアを備え、現代的なアップグレード、包括的には近代化された電気システムと中央空調によって優雅に補完されています。
快適さとエレガンスを兼ね備えたこの家には、5つの寝室、3.5のバスルーム、書斎、複数の陽光が差し込むリビングエリアがあります。特大の窓は自然光を室内にふんだんに取り込み、全体にわたる絶妙なディテールを引き立てています。印象的な壮大な階段は目を引く焦点となり、家の時代を超えた魅力を増しています。この特別な邸宅は、古典的なエレガンスと現代的な利便性の完璧なバランスを提供します。
家の中心はシェフ用のキッチンで、高品質なLGの家電、クォーツのカウンタートップ、カスタムキャビネット、デザイナー照明で装備された料理の夢です。ここからバックヤードデッキに出られ、エンターテイメントや屋外でのリラックスに最適な場所です。
2階には、2つのクローゼット、専用バスルーム、装飾的な暖炉を備えた贅沢な主寝室があります。この階にはさらに2つのキングサイズの寝室があります。3階はさらに柔軟性を提供し、追加の2つの寝室、フルバスルーム、大きなランドリールームを完備して、究極の便利さを実現しています。フルベースメントは十分なストレージと直接のストリートアクセスを提供し、家の実用性を高めています。このプロパティは、元のキャラクターを保ちながら、思慮深い更新が施されています。
クROWN ハイツの中心に位置するこの家は、プロスペクトパークやブルックリン植物園の豊かな緑から、近隣の発展する飲食や文化シーンまで、ブルックリンの魅力を玄関先で体験できます。ノストランドアベニューの3番線、プレジデントストリートの2番線および5番線へのアクセスが容易で、近くのバス路線やシティバイクステーションも揃っているため、通勤も楽々です。
259 New York Avenue is a breathtaking Renaissance Revival townhouse set on one of Crown Heights’ most picturesque, landmarked blocks. This stately limestone residence spans over 4,000 square feet across three stories and a full basement, seamlessly marrying historic grandeur with modern refinement. Originally built as a two-family home, it is currently configured and enjoyed as a spacious single-family residence. Meticulously updated with respect for its architectural legacy, the home showcases intricate moldings, soaring ceilings, and gleaming hardwood floors—elegantly complemented by contemporary upgrades, including a modernized electrical system and central air conditioning.
Designed for both comfort and elegance, the home offers five bedrooms, three and a half bathrooms, a study, and multiple sunlit living areas. Oversized windows flood the interiors with natural light, highlighting the exquisite details throughout. A striking grand staircase serves as a breathtaking focal point, adding to the home’s timeless charm. This extraordinary residence is a perfect balance of classic elegance and contemporary convenience.
The heart of the home is the chef’s kitchen, a culinary dream outfitted with high-end LG appliances, quartz countertops, custom cabinetry, and designer lighting. From here, pop out onto a backyard deck—an ideal setting for entertaining or unwinding in the open air.
The second floor is anchored by the luxurious primary suite, featuring two closets, an en-suite bath, and a decorative fireplace. Two additional king-sized bedrooms complete this level. The third floor offers even more flexibility, with two additional bedrooms, a full bathroom, and a spacious laundry room for ultimate convenience. A full basement provides ample storage and direct street access, enhancing the home’s practicality. The property has undergone thoughtful updates while preserving its original character.
Located in the heart of Crown Heights, this home offers the best of Brooklyn at your doorstep—from the lush greenery of Prospect Park and the Brooklyn Botanic Garden to the neighborhood’s thriving dining and cultural scene. Commuting is effortless with easy access to the 3 train at Nostrand Avenue, the 2 and 5 trains at President Street, as well as nearby bus routes and Citi Bike stations.
This information is not verified for authenticity or accuracy and is not guaranteed and may not reflect all real estate activity in the market. ©2025 The Real Estate Board of New York, Inc., All rights reserved.







