| ID # | 906319 |
| 物件の詳細 | 3 寝室, 2 バスルーム, 1 ハーフバス, 食器洗い機, 洗濯機, 乾燥機, 外装: 0.05 エーカー, 内装: 1700 ft2, 158m2 (DOM): 58 days |
| 建築年 | 1950 |
| 税金(年間) | $6,751 |
| 燃料の種類 | 天然ガス Gas |
| 地下室 | 全面地下室 Full basement |
![]() |
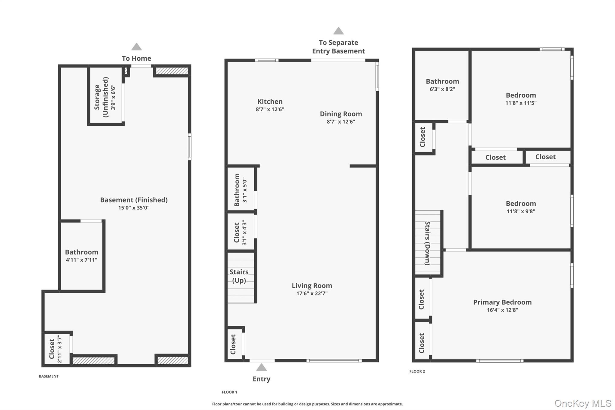
ブロンクスの魅力的なスロッグスネック地区に位置するこの3ベッドルームの半独立住宅は、本当に引っ越し可能な状態です。 foyerに入ると、豪華なビニールフローリング、埋め込み照明、天井モールディングを特徴とする更新されたオープンフロアプランがお出迎えします。 リビングルームの窓からは、家全体に豊富な自然光が差し込むことができます。 グラナイトカウンター、ステンレス鋼製の家電、広々としたTrexデッキへのスライディングガラスドアを備えた更新されたイートインキッチンを楽しんでください。 フェンスで囲まれた裏庭では、家族や友人とともにBBQや時間を楽しめる、地上プール付きです。 1階にはパウダールームと新しい洗濯機/乾燥機コンボユニットを備えたランドリーエリアがあります。 2階には、夫婦のクローゼットを備えた広々とした主寝室があります。 さらに2つの広々としたベッドルームには、十分なクローゼットの収納があります。 更新された2階の廊下のバスルームもあります。 完全なバスルームと裏庭へのウォークアウトアクセスを備えた仕上げ済みの下層レベルにもさらにスペースがあります。 駐車場には2つのプライベート駐車スペースがあります。 公共交通機関や主要高速道路へのアクセスも良好です。 立地と更新内容は無比です。
Located in the desirable Throggs Neck neighborhood in the Bronx, this 3-bedroom semi-attached home is truly move-in ready. As you enter the foyer you are greeted by an updated and open floor plan featuring luxury vinyl flooring, recessed lighting, and crown molding. The windows in the living room allow for ample natural light to stream throughout this home. Enjoy the updated eat-in-kitchen appointed with granite counters, stainless-steel appliances, and sliding glass doors to the spacious Trex deck. Enjoy BBQ's and time with family and friends in your fenced in backyard with above ground pool. A powder room and laundry area with new washer/dryer combo unit complete the 1st floor. Upstairs you will find a spacious primary bedroom with his and her's closets. 2 more spacious bedrooms with ample closet storage. Updated 2nd floor hall bathroom. More space is found in the finished lower level with full bathroom and walk-out access to the backyard. 2 private parking spaces in the driveway. Easy access to public transportation and major highways. The location and updates are unmatched. © 2025 OneKey™ MLS, LLC






