| ID # | RLS20046443 |
| 物件の詳細 | 165 Charles 4 寝室, 4 バスルーム, 1 ハーフバス, 洗濯機, 乾燥機, 内装: 3411 ft2, 317m2 (DOM): 57 days |
| 建築年 | 2005 |
| 管理費 | $9,651 |
| 税金(年間) | $49,308 |
| 地下鉄 | 7 分: 1 |
| 10 分: A, C, E, B, D, F, M | |
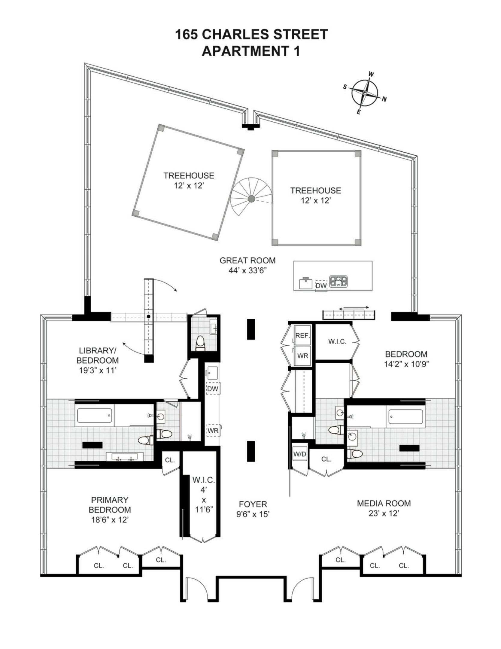
![]() |
165チャールズストリートにあるアーバンツリーハウス
ラグジュアリーな生活を大胆に再構築したアーバンツリーハウスは、常識を打ち破る広々とした楽しい家です。ニューヨーク市のNo Architectureによって設計・建築され、わずか5年前に完成したこの珍しいウエストビレッジの住居は、市場の他のどの物件とも異なります。
チーフアーキテクトのアンドリュー・ハイドは、このレイアウトを「マトリックスプラン」と表現しています。中央のハブ周りに部屋が円形に配置され、必要に応じて開閉できるという仕組みで、夜は寝室や寝室スペース、日中はオフィスやラウンジとして利用できます。この革新的な構成は柔軟性とつながりを促進し、現代的でありながら深く人間的な共同生活のスタイルを呼び込んでいます。
約3,500平方フィートの広さを誇るこの住居には、3つのベッドルーム、4つ半のバスルーム、ファミリールーム、2つのキッチン、そして高い天井のダブルハイトリビングルームが含まれています。ここでは、22フィートの高さのボリュームを跨ぐ彫刻的な木製の「ツリーハウス」があり、2つのウィング、螺旋階段、そして空中に吊るされたネット状の座席が備えられており、集まったり遊んだり夢を見たりするための機能的でありながら whimsical な中心となっています。床から天井までのガラスがハドソン川とハドソン川エスプラナードの直接の眺めを提供し、開放感と驚きを高めます。
評判のリチャード・マイヤー設計のコンドミニアム、165チャールズストリートでの生活は、シームレスで控えめです。住人はフルタイムのドアマン、住み込みの管理人およびジム、プール、シアタールームなどの厳選されたアメニティを享受します。
このオファーには、大型のストレージユニット、プライベートワインセラー、隣接する700平方フィートのスタジオアパートメントの選択肢があり、ゲストスイート、スタッフの宿舎、または近くのホームオフィスとして理想的です。
The Urban Treehouse at 165 Charles Street
A bold reimagining of luxury living, the Urban Treehouse at 165 Charles is an expansive and playful home that defies convention. Designed and built by No Architecture of New York City and completed just five years ago, this rare West Village residence is unlike anything else on the market.
Chief Architect Andrew Heid describes the layout as a "matrix plan": a circular flow of rooms around a central hub that can be opened or closed at will-bedrooms and sleeping quarters at night, or offices and lounges during the day. This innovative configuration fosters both flexibility and connection, inviting a communal style of living that feels at once modern and deeply human.
Spanning nearly 3,500 square feet, the residence encompasses three bedrooms, four and a half baths, a family room, two kitchens, and a soaring double-height living room. Here, a sculptural wooden "treehouse" spans the 22-foot-high volume, complete with two wings, a spiral stair, and netted seating suspended in air-a whimsical yet functional centerpiece designed for gathering, playing, and dreaming. Floor-to-ceiling glass offers direct views of the Hudson River and the Hudson River Esplanade, amplifying the sense of openness and wonder.
Life at 165 Charles Street, the celebrated Richard Meier-designed condominium, is seamless and discreet. Residents enjoy a full-time doorman, live-in superintendent, and an array of curated amenities including a gym, pool, and screening room.
Completing this offering are options for a large storage unit, a private wine cellar, and an adjacent 700-square-foot studio apartment-ideal as a guest suite, staff quarters, or a nearby home office.
This information is not verified for authenticity or accuracy and is not guaranteed and may not reflect all real estate activity in the market. ©2025 The Real Estate Board of New York, Inc., All rights reserved.







