| ID # | 908163 |
| 物件の詳細 | スタジオアパート, 食器洗い機, 洗濯機, ガレージ, エアコン, 内装: 500 ft2, 46m2 (DOM): 54 days |
| 建築年 | 1966 |
| 管理費 | $869 |
| 燃料の種類 | 天然ガス Gas |
| エアコン | セントラルエアコン Central Air |
![]() |
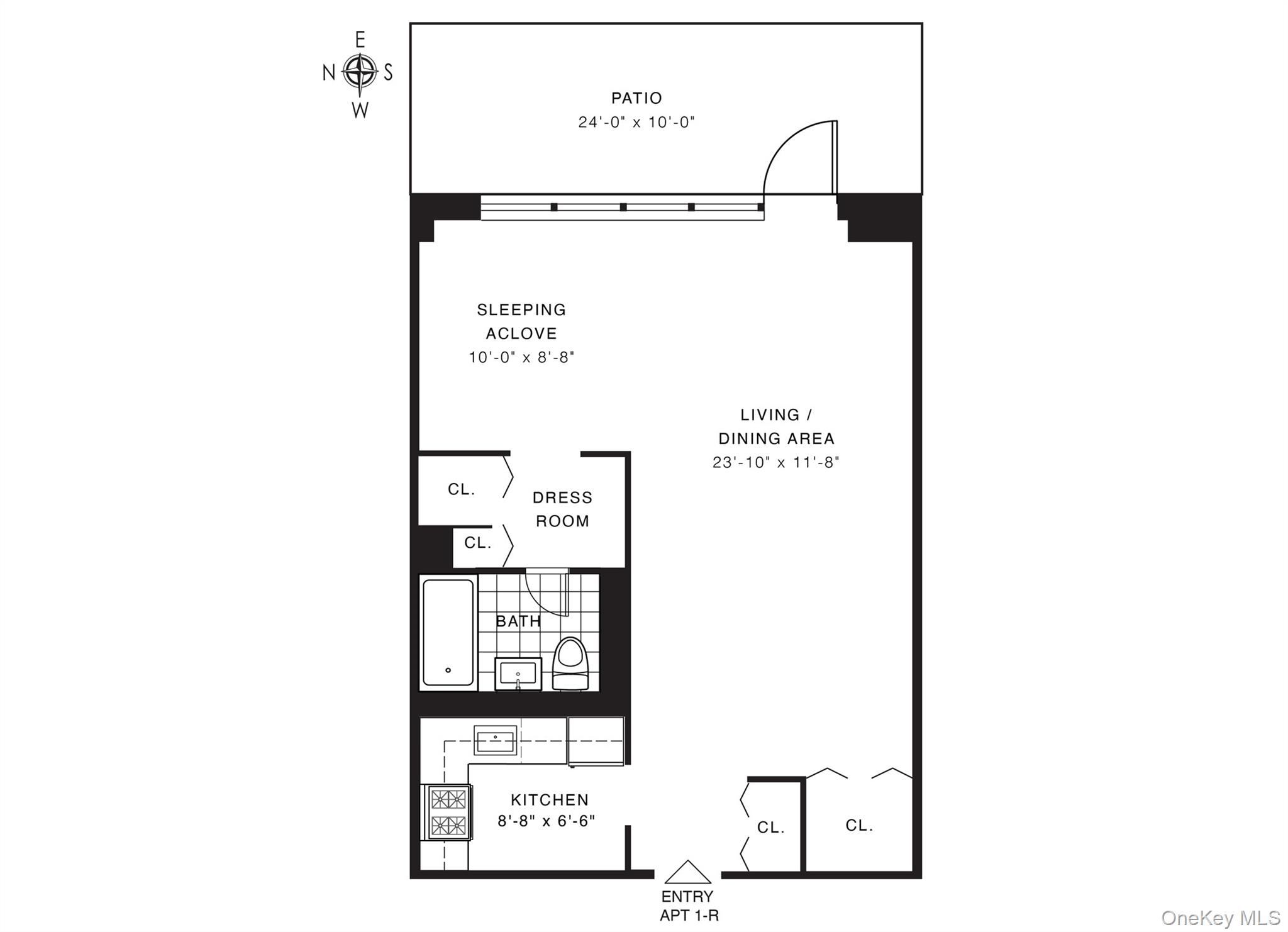
美しさは内外ともに!リバーポイントタワーの珍しい特大アコーブスタジオには、プライベートアウトドアパティオがあります。この素晴らしい完全改装済みのRラインは、特に高い天井、広々としたリビングルーム、独立したキッチン、ゆったりとした寝室用アコーブ、ドレッシングエリア、各所に大きなクローゼット、10フィート x 24フィートのプライベートアウトドアパティオ( retractable awningと東向きの窓の壁を含むオープンビュー付き)を備えています。リバーデールのスパイテンデュイビル地区に位置するリバーポイントタワーは、フルサービスの高級共同住宅で、100%共同所有です。非常に低い管理費には、 gas、電気、暖房、水道、中央空調、ケーブルテレビ、インターネットサービス、季節プール、24時間ドアマン、24時間コンシェルジュ、屋外遊び場、コミュニティルームが含まれています。フィットネスルームは少額の年間料金で利用可能で、コミュニティルームはパーティーや特別イベント用にレンタルできます。ショッピング、メトロノース、マンハッタンの東側、西側、ウォールストリートへのエクスプレスバス、地下鉄の1番線とA線へのローカルバス、ヘンリー・ハドソン・パークウェイ、ニューヨーク州スルーウェイへのアクセスも簡単です。月々の管理費は$868.90です。現在、追加の月額料金が2つあります:$129.06のアセスメント(6/26終了)と$51.78のモーゲージチャージ(6/29終了)。
Beautiful INSIDE and OUT! Rare extra-large alcove studio at River Point Towers with a PRIVATE OUTDOOR PATIO. This amazing, fully renovated sun-drenched R-line includes extra high ceilings, spacious living room, separate kitchen, a roomy sleeping alcove, dressing area, large closets throughout, a 10' x 24' private outdoor patio with retractable awning and a wall of east-facing windows with open views. Located in the Spuyten Duyvil section of Riverdale, River Point Towers is a full-service luxury co-op, 100% co-op owned. Exceptionally low maintenance includes gas, electricity, heat, water, central air conditioning, cable TV, Internet service, seasonal pool, 24-hr doorman, 24-hr concierge, outdoor playground and community room. The fitness room is available for a small annual fee and the community room can be rented for parties and special events. Easy access to shopping, Metro North, express buses to Manhattan’s east side, west side and Wall Street, local buses to the no. 1 and A subways, Henry Hudson Pkwy and NYS Thru-way. The low monthly maintenance is $868.90. There are currently 2 additional monthly charges: $129.06 Assessment, ending 6/26 and $51.78 Mort Chg, ending 6/29. © 2025 OneKey™ MLS, LLC







