| ID # | RLS20047160 |
| 物件の詳細 | 3 寝室, 2 バスルーム, 1 ハーフバス, 食器洗い機, 内装: 2000 ft2, 186m2 (DOM): 203 days |
| 建築年 | 1929 |
| 管理費 | $467 |
| 税金(年間) | $4,236 |
| バス | 1 分: B49 |
| 2 分: B44+, B45 | |
| 3 分: B44 | |
| 4 分: B48, B65 | |
| 9 分: B43 | |
| 10 分: B25 | |
| 地下鉄 | 5 分: S |
| 6 分: 3, 2, 4, 5 | |
| 10 分: A, C | |
| LIRR | 0.4 マイル: "Nostrand Avenue" |
| 1.4 マイル: "Atlantic Terminal" | |
![]() |
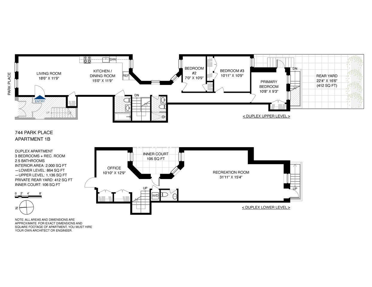
面積2000平方フィートのアパートメント1Bは、3つの寝室、2.5のバスルーム、裏庭、オフィス、そして広々としたレクリエーションルームを備えた二階建ての物件です。このスタイリッシュなアパートのメインフロアには、オープンプランのリビングダイニングエリアがあり、豪華なシェフのキッチンへとスムーズに流れています。これは、多くのコンドミニアムに典型的な小さなキッチンではありません。こちらのキッチンは、十分なカンブリアクォーツのカウンタートップ、豊富な収納用キャビネット、そして完全に統合された冷蔵庫、誘導加熱器、適切に換気されたレンジフードを含む最先端のベラッツォーニの家電を誇ります。広めのダイニングエリアには、大きなダイニングテーブルを置くスペースがあります。*写真は仕上げの代表例です。実際のレイアウトは異なる場合があります。*
3つのほどよいサイズの寝室と、ウォークインシャワーがあるバスルーム1つ、深い浸かり用バスタブがあるバスルーム1つの合計2つの美しいフルバスルームがあります。スパのような仕上げは、イタリアンマーブルの床と壁のタイル、シックなテラゾ風の床材を含みます。美しいプライベート裏庭は、メインフロアと下の階の両方からアクセス可能です。屋外での食事やリラックスできるオアシスです。
スタイリッシュなモダンな階段は、オフィス、30フィートの長さのレクリエーションルーム、ハーフバス、洗濯機/乾燥機、106平方フィートのプライベート屋外コートヤードに続いています。室内スペースは、大きな窓がいくつもあるため、予想以上に明るいです。アパートの追加のハイライトには、マルチゾーンの暖房・冷房、デザイナーズライティングがあり、すべてエレガントなブラッシュドホワイトオークのエンジニアリングフローリングによって引き立てられています。
共通の管理費と税金は低く、月額わずか820ドルです。これは、同様のサイズのユニットのコストの半分以下です。
744パークプレイスは、3ベッドルームおよび4ベッドルームの住居を備えた8ユニットのブティックコンドミニアムビルです。非常に低い月額管理費を誇ります。彫刻された石のディテールでアクセントを付けたエレガントなレンガの外観を持つこの建物は、現代的なスタイルで徹底的かつ贅沢に更新され、あなたが求めていたシックで快適な生活体験を提供します。
活気あるクラウンハイツに位置するこのコンドミニアムは、フランクリンアベニューのさまざまなレストランやショップまでわずか1ブロックの距離です。2/3/4/5およびS線に近く、ブルックリン植物園、公共図書館、グランドアーミー広場のグリーンマーケット、プロスペクトパークに便利です。
完全な提供条件は、744パークLLCのスポンサーから入手可能な提供計画に記載されています。ファイルCD230318。
Measuring 2000 sq. ft, Apartment 1B is a duplex with 3 bedrooms, 2.5 baths, a backyard, an office, and a huge rec room. On the main floor of this stylish apartment, an open-plan living and dining area flows seamlessly into a well-appointed chef’s kitchen. This is not the tiny kitchen typical of many condos. This one boasts ample Cambria quartz countertops, abundant cabinetry for storage, and top-of-the-line Bertazzoni appliances, including a fully integrated fridge, induction stove, and a properly vented range hood. The generously-sized dining area has room for a large dining table. * Photos are representative of finishes only. Actual layout may vary.*
There are three nicely sized bedrooms and two gorgeous full baths, one with a walk-in shower, one with a deep soaking tub. Spa-like finishes include Italian marble floor and wall tiles and chic terrazzo-like flooring. The gorgeous, private backyard can be accessed from both the main floor and lower level. It is your oasis for alfresco dining and relaxing.
A chic modern staircase leads down to an office, a 30-foot-long rec room, a half bath, a washer/dryer, and a 106 sq. ft private outdoor courtyard. The interior space is far brighter than you would expect due to multiple large windows. Additional highlights of the apartment include multi-zoned heating and cooling and designer lighting, all complemented by elegant brushed white oak engineered flooring.
The combined common charges and taxes are LOW! Only $820/month. That’s less than half the cost of most similarly-sized units.
744 Park Place is an 8-unit boutique condo building featuring 3- and 4-bedroom residences with extremely low monthly charges. With its elegant brick façade accented by carved stone details, the building has been thoroughly and luxuriously updated in a modern style to create the chic and comfortable living experience you’ve been searching for.
Located in vibrant Crown Heights, this condo places you just a block away from the various restaurants and shops on Franklin Avenue. It’s close to the 2/3/4/5 and S trains and convenient to the Brooklyn Botanic Garden, the Public Library, Grand Army Plaza Greenmarket, and Prospect Park.
The complete offering terms are in an offering plan available from the sponsor 744 Park LLC. File CD230318
This information is not verified for authenticity or accuracy and is not guaranteed and may not reflect all real estate activity in the market. © 2026 The Real Estate Board of New York, Inc., All rights reserved.







