| ID # | RLS20047726 |
| 物件の詳細 | 3 寝室, 3 バスルーム, 1 ハーフバス, 内装: 2902 ft2, 270m2 (DOM): 267 days |
| 建築年 | 2008 |
| 管理費 | $7,922 |
| 税金(年間) | $101,556 |
| 地下鉄 | 3 分: 1, A, C, E |
| 5 分: R, W | |
| 7 分: 6, N, Q | |
| 8 分: J, Z | |
| 9 分: B, D, F, M | |
![]() |
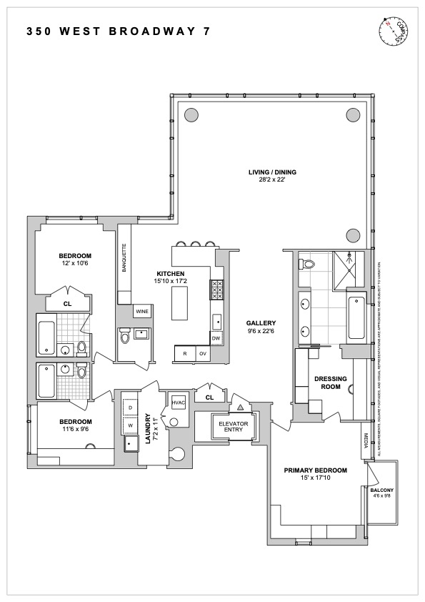
このフルフロアの三居室、三・五バスルームのロフトは、2020年に改装され、ブティックソーホーの建物内でプライバシー、空間の広さ、慎重に考慮されたデザインを提供します。プライベートエレベーターから直接入ると、コーナーグレートルームへと続く正式なエントリーギャラリーがあります。10フィートの天井と大型の窓からは、ウェストブロードウェイとミッドタウンのスカイライン、エンパイア・ステート・ビルを含む広大な景色が楽しめます。
隣接するシェフズキッチンは、Miele、サブゼロの冷蔵庫とワイン冷蔵庫、フランケのシンクなど、最高級の家電を備え、大きなセンターアイランドを基盤にカスタムビルトのバンクエットが付いています。
家の他の部分から分かれているプライマリースイートには、プライベートテラスと広いドレッシングエリアがあります。専用バスルームには、ダブルバニティ、床暖房、浸かるためのバスタブ、ガラスで囲まれたシャワーが備わっています。
追加の二つの寝室にはそれぞれ床暖房のある専用バスルームがあります。一つは現在ホームオフィスとして配置されています。
その他の特徴には、全体に組み込まれたLutron照明と自動シェード、メインホールからのパウダールーム、Whirlpool製の洗濯機と乾燥機を備えた専用のランドリールーム、そして権利書付きの収納があります。
Moed de ArmasとShannon(外装)、William T. Georgis(内装)によって設計され、RFR Holdingによって開発されたこの7ユニットのブティックコンドミニアムは、洗練された都市生活へのコミットメントを反映しています。アメニティには、24時間有人のロビー、フィットネスセンター、著名な現代アーティストの作品を特徴とするキュレーションされた共用スペースが含まれます。ソーホーキャストアイアン歴史地区に位置し、周辺にはギャラリー、デザインスタジオ、地域の特性に欠かせないレストランがあります。
This full-floor, three-bedroom, three-and-a-half-bathroom loft, renovated in 2020, offers privacy, volume, and carefully considered design within a boutique SoHo building. Enter directly from the private elevator into a formal entry gallery that leads to a corner great room. 10-foot ceilings and oversized windows provide expansive views over West Broadway and the Midtown skyline, including the Empire State Building.
Adjacently positioned, the chef’s kitchen features top-of-the-line appliances including Miele, a Sub-Zero refrigerator and wine fridge, and a Franke sink, anchored by a large center island and complete with a custom built-in banquette.
Separated from the rest of the home, the primary suite includes a private terrace and a large dressing area. The en-suite bath is appointed with a double vanity, radiant heating floors, soaking tub, and glass-enclosed shower.
The two additional bedrooms each feature en-suite bathrooms with heated floors; one currently configured as a home office.
Additional features include integrated Lutron lighting and automated shades throughout, a powder room off the main hallway, a dedicated laundry room with Whirlpool washer and dryer, and deeded storage.
Designed by Moed de Armas and Shannon (exterior) and William T. Georgis (interior), and developed by RFR Holding, the seven-unit boutique condominium reflects a commitment to refined urban living. Amenities include a 24-hour attended lobby, a fitness center, and curated common spaces featuring work by noted contemporary artists. Located within the SoHo Cast Iron Historic District, the building is surrounded by galleries, design studios, and restaurants integral to the neighborhood’s character.
This information is not verified for authenticity or accuracy and is not guaranteed and may not reflect all real estate activity in the market. © 2026 The Real Estate Board of New York, Inc., All rights reserved.







