| ID # | 11572873 |
| 物件の詳細 | 1 寝室, 2 バスルーム, エアコン, 内装: 1400 ft2, 130m2 (DOM): 51 days |
| 管理費 | $546 |
| 税金(年間) | $12,912 |
| English Webpage | |
| バス | 1 分: B61 |
| 8 分: B57 | |
| LIRR | 1.8 マイル: "Atlantic Terminal" |
| 3.2 マイル: "Nostrand Avenue" | |
![]() |
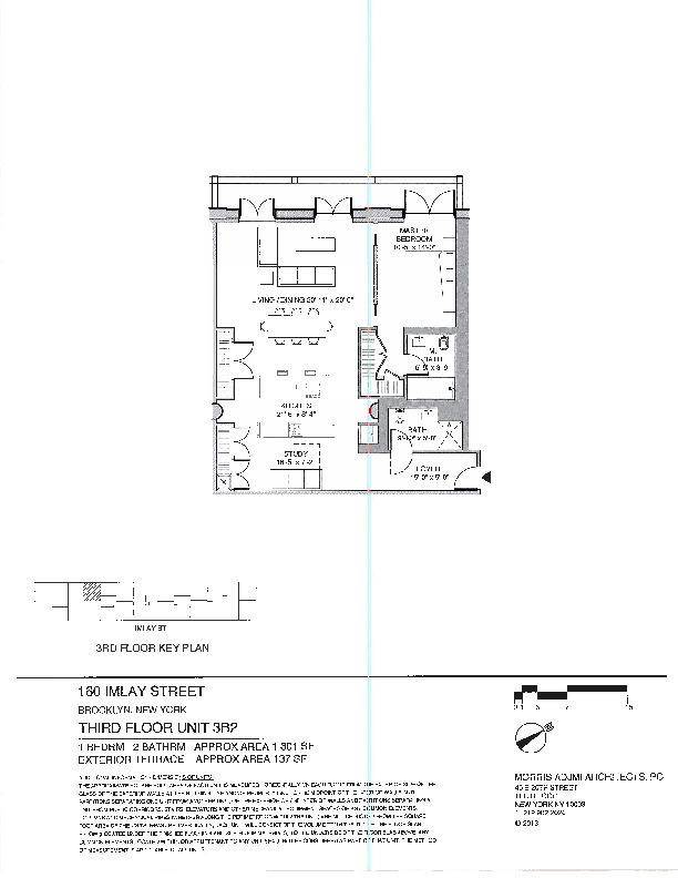
SHOWING ON TUESDAYS AND THURSDAYS BY APPOINTMENT ONLY 1400+SF Open Western Views, Sunsets , City, Harbor and Statue of Liberty! Tenant in Place until october. Waterfront living at the historic New York Dock Building in Red Hook. Built in 1910, this was the first reinforced steel and concrete building in the United States. The classic loft spaces endow these exceptional units with grand proportions, soaring 12'+ ceilings, and stunning views of the Manhattan Skyline, Harbor, and Brooklyn. Come explore this stunningly beautiful loft with open views from the Statue of Liberty to lower Manhattan. Enter the sun-soaked, West-facing living space with 12-foot concrete ceilings and an epic Red Hook view. A perfect balance of industrial and refined, the spacious, flexible floor plan offers a king-sized bedroom, additional study, and two luxurious full baths. As seen in all the images of the loft. Overlooking the working waterfront and 180 degrees of portside New York, you'll feel worlds away from the crush of the city. Red Hook's unique atmosphere permeates this historic loft conversion; from the polished concrete entry to the massive insulated windows, the former New York Dock Company warehouse preserves the spirit of Brooklyn's bustling seaport while adding first-class amenities and comfort. A discreet entryway leads to a row of closets awaiting your customization: kick off your shoes, stow your bags, and enter your breathtaking home. The elegant kitchen features matte white lacquer cabinetry, Miele appliances, and marble waterfall countertops. Every detail has a designer's touch: the magnetic faucet, pull-out recycling bin, and slide-away range hood make a workhorse kitchen into a work of art. The wide oak floors, tall pocket doors, and cast hardware give the home a solid, rooted feel. Like the living space, the primary bedroom has a 12 foot window wall with a Manhattan Skyline view. Two full, spa-like baths offer a retreat from the outside world. Luxury finishes like stone tiles, Porcelanosa fixtures, custom vanities, and multi-function shower systems feel like a European hotel. Need a workspace or guest room? The study is tucked away behind a giant concrete column, and it's easy to add a bit more privacy if you prefer. With a full-sized washer and dryer, insulated windows, central air, and heat, your comfort is assured. Building amenities include onsite super, desk staff, a gorgeous lobby-level gym, roof deck and sauna ! Schedule a showing today!







