| MLS # | 912578 |
| 物件の詳細 | 2 寝室, 1 バスルーム, エアコン, 外装: 0.23 エーカー, 内装: 1859 ft2, 173m2 (DOM): 49 days |
| 建築年 | 1939 |
| 燃料の種類 | 天然ガス Gas |
| エアコン | 壁掛けエアコン Wall Unit AC |
| LIRR | 1.7 マイル: "Amityville" |
| 2 マイル: "Copiague" | |
![]() |
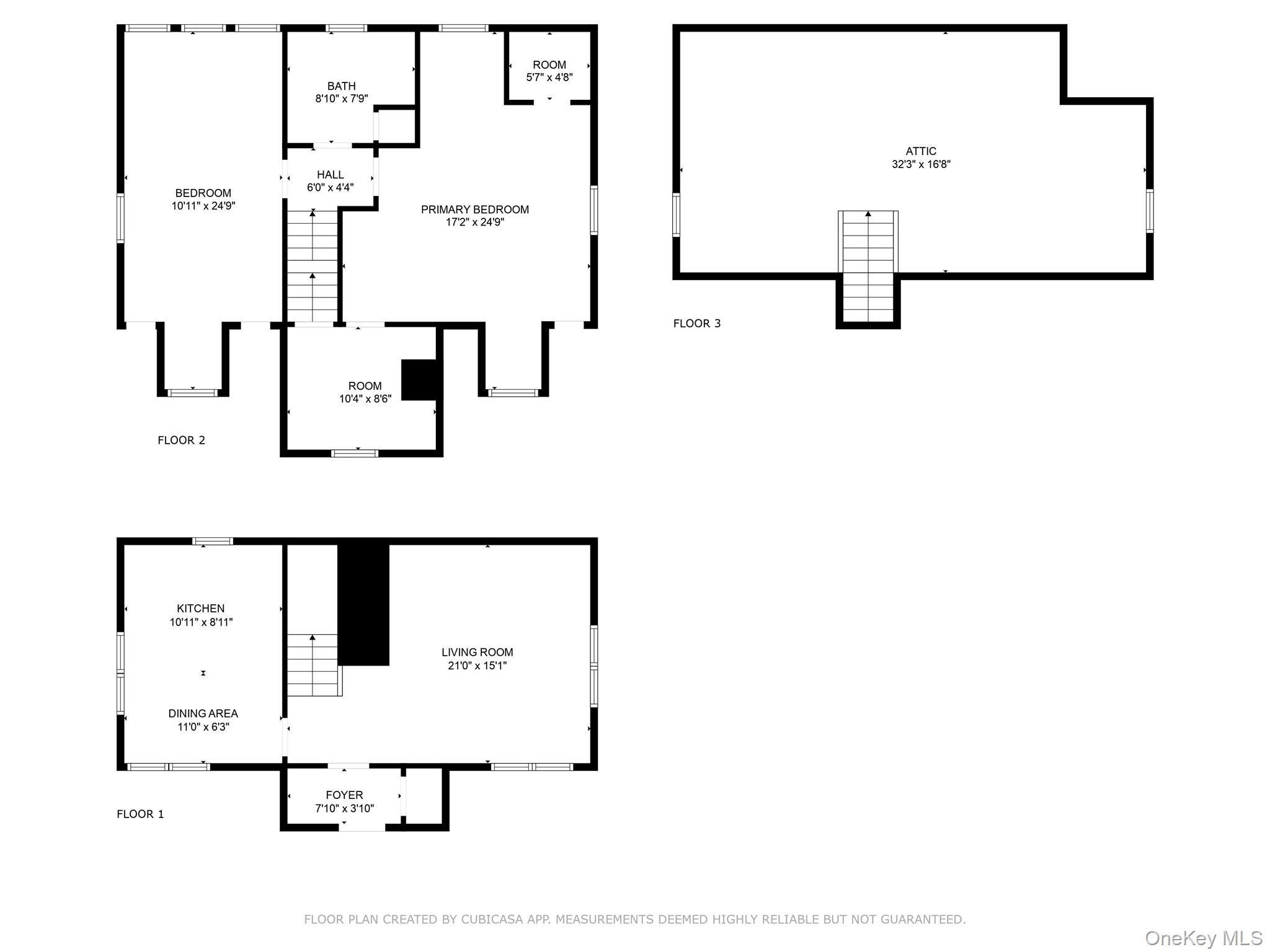
現在入居可能。ノースアミティビルで2ベッドルームの賃貸物件。クローゼットスペースのあるエントリーフォイヤーがあります。壁に鏡のあるリビングルーム。前庭の眺めが楽しめるキッチンがあります。2階にはタイル張りのフルバスルーム、十分なクローゼットスペースのある2つのベッドルーム、収納に最適なロフト式小屋があり、全体にハードウッドフローリングが施されています。屋外でのエンターテイメントに便利な裏庭エリアと、ドライブウェイに2台分のオフストリート駐車場があります。入居者が入る際にステンレス製の家電が設置されます。アパートにはベッドルームにウィンドウエアコンがあります。小さな猫1匹と犬1匹がペット料金で許可されています。賃貸にはすべての光熱費とケーブルが含まれています。
Available now. Two bedroom for rent in North Amityville. Features entry foyer with closet space. Living room with mirror on wall. Eat in kitchen with view of front yard. Upstairs you will find one full bathroom with tile, two bedrooms with ample closet space & a walk up attic perfect for storage, hardwood flooring throughout, a backyard area for outdoor entertaining, off street parking for two cars in driveway. Stainless steel appliances will be installed upon a tenant taking occupancy. Apartment has window AC in bedrooms. One small cat & dog is permitted with pet fee. Rental includes all utilities as well as cable. © 2025 OneKey™ MLS, LLC







