| ID # | RLS20043853 |
| 物件の詳細 | 6 寝室, 5 バスルーム, 1 ハーフバス, 洗濯機, 乾燥機, ガレージ, 内装: 4257 ft2, 395m2 (DOM): 222 days |
| 税金(年間) | $30,180 |
| バス | 2 分: B25 |
| 7 分: B103, B26, B38, B52, B67, B69 | |
| 8 分: B41 | |
| 10 分: B54, B57, B62 | |
| 地下鉄 | 4 分: A, C, 2, 3 |
| 8 分: F | |
| 9 分: R | |
| LIRR | 1.5 マイル: "Atlantic Terminal" |
| 2.9 マイル: "Nostrand Avenue" | |
![]() |
歴史的優雅と考慮された革新が出会う場所、24ミダッグストリート
24ミダッグストリートへようこそ。ブルックリンハイツの中心にある完全に修復された連邦様式の家です。1790年から1829年の間に建てられたこの角地の物件は、歴史的保存と現代的デザインを融合させる入念な2年間の変革を経ました。プライバシー、駐車場、時代を超えた特徴を提供し、ミダッグストリートとウィローストリートの角に位置し、プロムナード、ブルックリンブリッジパークまでの散策やマンハッタンへの通勤も容易です。
この物件には、幅24フィート、4階建てのメインハウスと、別の裏方の馬車小屋が含まれています。穏やかな中庭で結ばれ、プライベート駐車、カーブカット、EV充電器を備えています。これはこの歴史的地区では珍しい事例です。
メインレジデンス
メインハウスは、約3,357平方フィートの面積を持ち、4レベルにわたって4つの寝室、4.5のバスルーム、2つのオフィス、音楽室、プレイルームがあります。162平方フィートのガーデンレベルの拡張は、元のテラスを置き換え、キッチン、ダイニング、リビングスペース間にオープンフローを生み出しました。
ニューヨークの階段による魅力的なカスタム階段が、彫刻的な中心作品として機能しています。バスルームはアーチ型のトランジション、手作りのタイル、スパのような仕上げを特徴としています。元のシェルは保存されていますが、構造は完全にオーバーホールされました:ジョイストを補強し、壁を補強し、鋼材の梁、屋根の梁、そして中庭への鋼のポーチが取り付けられています。
キッチン
カスタムキャビネット、ジェンエア冷蔵庫、ミーレの誘導加熱コンロ、ボッシュオーブン、ABCストーンのドラマティックなカラカッタビオラ大理石を備えたシェフに相応しいスペースです。大きな調理アイランドとウォークインパントリーがあり、エンターテイメントに最適です。
地下
かつては利用できなかった地下室は、コンクリートスラブとマイクロトッピング仕上げの完全に生活可能な空間となり、ジム、メディアルーム、または収納に理想的です。
快適さと技術の融合
新しい7ゾーンHVACシステムは、Google Nestサーモスタットと統合され、リモートまたは音声制御が可能です。目立たないスプリットシステムは、両方の住居にサービスを提供し、屋外ユニットは中庭に隠されています。ERV(エネルギー回収換気)システムが一年中新鮮な空気を循環させます。密閉膜が漏れを減少させ、外部はすべて木材で構成されており、熱のブレークを防ぎます。
建築的完全性
すべてのメインハウスの窓は、エネルギー効率を向上させながら家の美学を保持するために高品質のダブルハング木製モデルに交換されました。改修中にウィローストリートの歩道の一部が再構築されました。
中庭と職人技
再舗装されたレベルな中庭は、ドライブウェイアクセスのある穏やかな屋外スペースとして機能します。百年古い写真に触発された手作りのアラスカンクリアシーダー製のゲートが、建築的な連続性を確保しています。新しい線形およびポイントドレインが市の下水道に接続され、基礎を保護します。
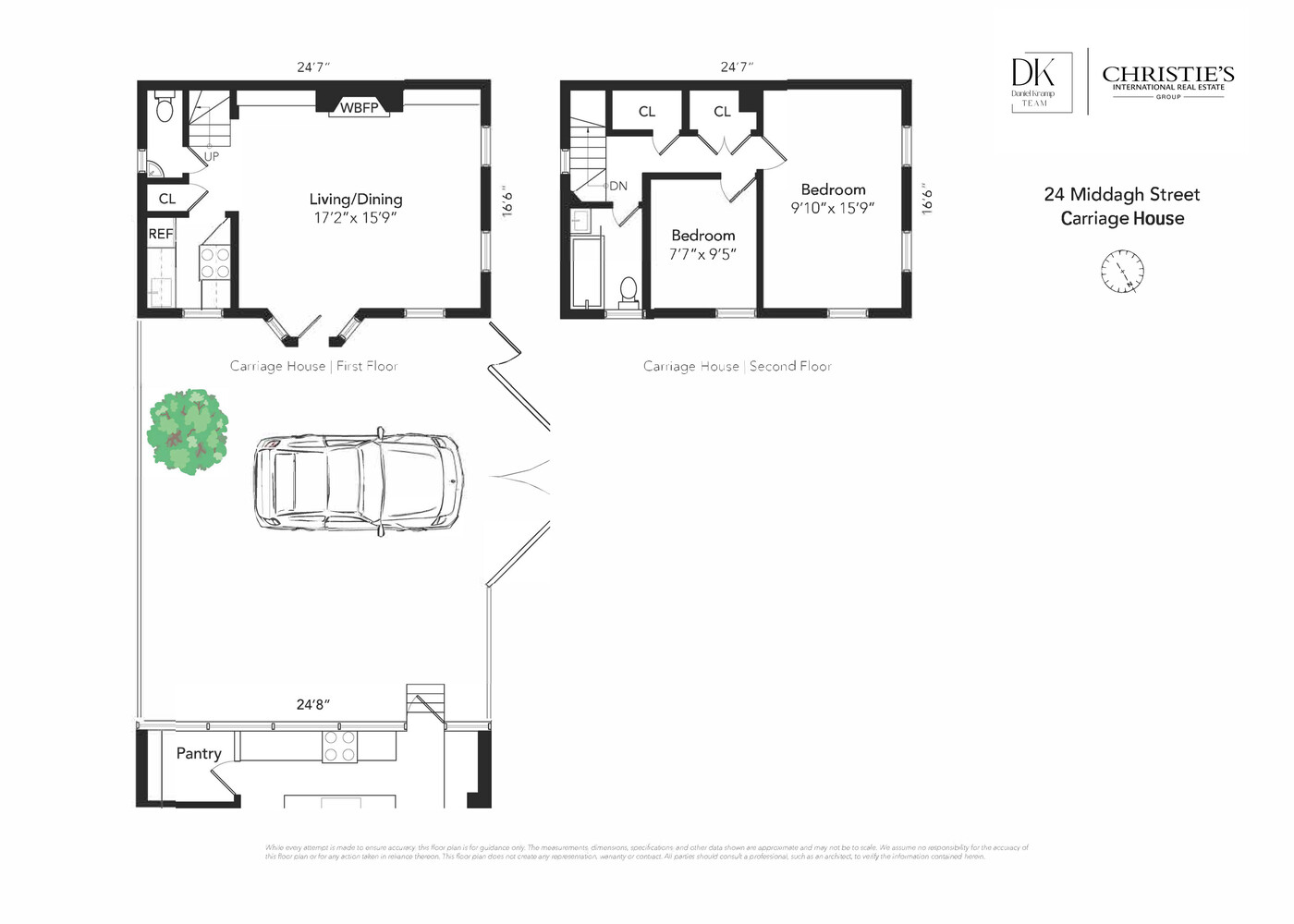
馬車小屋
900平方フィートの馬車小屋には、2つの寝室、1.5のバスルーム、薪ストーブ、独自のスプリットHVACがあり、ゲスト、スタジオ、またはオフィスに最適です。
24ミダッグストリートは単なる住居ではなく、注意と目的をもって復活させられたブルックリンハイツのランドマークです。幅24フィート、2つの異なる住居、プライベート駐車場、そして歴史と革新の希少な融合を持つこの物件は、現在の都市で最も魅力的な提供物の一つです。
Historic Elegance Meets Thoughtful Innovation at 24 Middagh Street
Welcome to 24 Middagh Street, a masterfully restored Federal-style home in the heart of Brooklyn Heights. Built between 1790 and 1829, this corner property underwent a meticulous two-year transformation, blending historic preservation with modern design. Offering privacy, parking, and timeless character, it sits at the corner of Middagh and Willow Street-just a stroll from the Promenade, Brooklyn Bridge Park, and an easy Manhattan commute.
The property includes a 24-foot-wide, four-story main house and a separate rear carriage house, joined by a tranquil courtyard with private parking, a curb cut, and EV charger-rare in this landmarked neighborhood.
The Main Residence
Spanning approx. 3,357 square feet across four levels, the main house features 4 bedrooms, 4.5 bathrooms, two offices, a music room, and a playroom. A 162-sq-ft garden-level extension replaced a former terrace, creating an open flow between the kitchen, dining, and living spaces.
A striking custom staircase by New York Stairs serves as a sculptural centerpiece. Bathrooms feature arched transitions, handmade tile, and spa-like finishes. The original shell was preserved, but the structure was fully overhauled: sistered joists, reinforced walls, steel beams, new roof beams, and a steel portico to the courtyard.
The Kitchen
A chef-worthy space with custom cabinetry, JennAir refrigerator, Miele induction cooktop, Bosch oven, and dramatic Calacatta Viola marble from ABC Stone. A large prep island and walk-in pantry make it perfect for entertaining.
The Basement
The previously unusable cellar is now a fully habitable basement with a concrete slab and micro-topping finish-ideal for a gym, media room, or storage.
Comfort Meets Technology
A new seven-zone HVAC system integrates with Google Nest thermostats for remote or voice control. Discreet split systems serve both dwellings, with outdoor units hidden in the courtyard. An ERV (Energy Recovery Ventilation) system circulates fresh air year-round. Airtight membranes reduce leakage, and the exterior remains all wood to prevent thermal breaks.
Architectural Integrity
All main house windows were replaced with high-quality double-hung wood models for energy efficiency while maintaining the home's aesthetic. A section of the Willow Street sidewalk was rebuilt during the renovation.
Courtyard & Craftsmanship
The repaved, leveled courtyard functions as a serene outdoor space with driveway access. A handcrafted Alaskan Clear Cedar gate, inspired by century-old photos, ensures architectural continuity. New linear and point drains, tied into the city sewer, protect the foundation.
The Carriage House
The 900-sq-ft carriage house offers 2 bedrooms, 1.5 bathrooms, a wood-burning fireplace, and its own split HVAC-perfect for guests, a studio, or office.
24 Middagh Street is more than a home-it's a Brooklyn Heights landmark, revived with care and purpose. With 24 feet of width, two distinct dwellings, private parking, and a rare blend of history and innovation, it's one of the most compelling offerings in the city today.
This information is not verified for authenticity or accuracy and is not guaranteed and may not reflect all real estate activity in the market. © 2026 The Real Estate Board of New York, Inc., All rights reserved.







