| ID # | RLS20048727 |
| 物件の詳細 | 3 寝室, 2 バスルーム, 2 ハーフバス, 洗濯機, 乾燥機, 内装: 3248 ft2, 302m2 (DOM): 47 days |
| 建築年 | 1930 |
| 地下鉄 | 4 分: B, C |
| 7 分: 1 | |
| 8 分: 2, 3 | |
![]() |
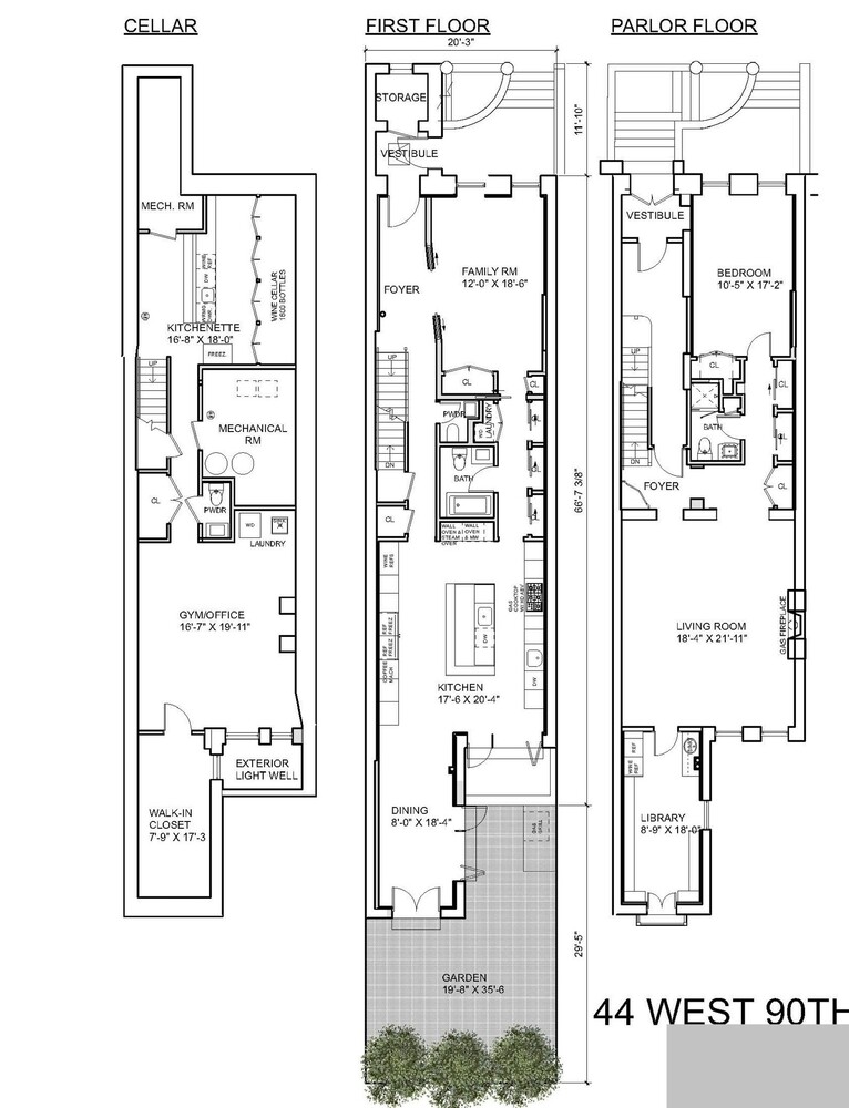
44 West 90th Streetのトリプレックスへようこそ。ファーストフロアガーデン、パーラー、セルラーフロアを含んでいます。
この家は、広々とした日当たりの良い改装されたキッチンを特徴としており、特大のアイランド、Mieleの家電、Scavoliniのキャビネット、4つのオーブン、対流式電子レンジ、s/o、6つのバーナーのクックトップ、2台の食器洗い機、2台の冷蔵庫、2つの冷凍引き出し、そしてサブゼロのワイン冷蔵庫を備えています。キッチンの天井高は11フィート1インチで、美しく装飾された引き出し式の金属とガラスのパティオドアがあり、南向きのアウトドアガーデンに通じています。これはエンターテイメントに最適です。モーションセンサー式のセキュリティシステムおよびガスと電気の両方に接続された組み込みのLynx BBQシステムが備わった、緑豊かな生垣のある造園ガーデンがあります。寝室、フルバスルーム、ハーフバスルーム、豊富なクローゼット、SONOSサウンドシステムに接続された組み込みスピーカーがあります。
パーラーフロア&ライブラリー:広々とした南向きのリビングルームは、装飾的なガス暖炉、組み込みスピーカー、組み込みの鏡付きSeura TVを備えた12フィートのコファー天井を特徴としています。エレガントなデザインは高い天井と洗練された仕上げを誇り、リラックスやエンターテイメントに最適な空間を作り出しています。ライブラリーにはリーベルクのワインクーラーがあるバトラーパントリーとジュリエットバルコニーがあります。前面には大きな寝室があり、十分なクローゼットがあり、現代的なHVACコントロール、バスルームを含む暖房式床、Lefroy Brooksのハードウェアが施されています。
セルラー:階段を下ると、最大1,600本のボトルを収容できるフルフィニッシュのワインセラーがあり、ワインパーティー用のキッチンアイランドがあります。また、デン/寝室、十分な収納、フル洗濯機/W&D、シンク、ハーフバスルームもあります。このレベルはセキュリティシステムと高能力の給湯器が装備されています。
この見事な20フィート幅のルネッサンスリバイバルタウンハウスは、1900年代初頭に建築家セオドア・F・トンプソンによって美しく設計されました。セントラルパークウエスト歴史地区内に位置し、丁寧に改装され、現代的な設備を持ちながら歴史的な魅力を保持しています。
この多世帯タウンハウスに住み、所有する素晴らしい機会です。優れた収入が得られ、将来的に一戸建てに改装する可能性もあります。この家は法的に5ユニットの構造で、賃貸安定化の継続には影響を受けません。詳細についてはお気軽にお問い合わせください!
このリスティングに関連する料金は以下の通りです:
-申請料 $20
-初月の家賃
-1か月の保証金
-テナント保険必須
-電気、ガスは通常通り使用に基づく。Wi-Fi/ケーブルは選択したサービスによります。
Welcome to the Triplex at 44 West 90th Street encompassing the First Floor Garden, Parlor and Cellar Floors.
This home features an expansive sun-filled, renovated kitchen with an oversized island; Miele appliances, Scavolini cabinets, four ovens; convection microwave, s/o, a six-burner cooktop, two dishwasher, two refrigerator, two freezer drawers, and a sub-zero wine fridge. The ceiling height in the kitchen is 11' 1 and houses beautifully appointed retractable metal and glass patio doors which lead to the south facing outdoor garden, perfect for entertaining. Outfitted with a motion detector security system and a built-in Lynx BBQ system, hooked up for both gas and electric, lush green-hedged landscaped garden. There is a bedroom, full bathroom and half bathroom, abundance of closets and built-in speakers connected to a SONOS sound system.
Parlor Floor & Library: The spacious south facing living room features coffered 12' ceilings, a decorative gas fireplace, built-in speakers and a built- in mirrored Seura TV. The elegant design showcases high ceilings and refined finishes, making it an ideal space for relaxation and entertainment. The library has a butler's pantry with Liebherr wine coolers and a Juliette balcony. Large bedroom on the front side, with ample closets, features modern HVAC controls, heated floors including in the bathroom which are appointed with Lefroy Brooks hardware.
Cellar: A staircase leads down to the fully finished wine cellar, housing up to 1,600 bottles with a kitchen island for hosting wine parties. There is also a den/bedroom significant storage, full laundry W/D and sink, and a half bath. . Enjoy heated floors throughout This level is equipped with a security system and high-capacity water heaters.
This exquisite 20-foot wide Renaissance Revival townhouse, beautifully designed by architect Theodore F. Thomson in the early 1900s. Nestled is within the Central Park West Historic District, meticulously renovated and boasts modern amenities while retaining its historic charm.
Incredible opportunity to live in and own this multi-family townhouse with excellent income and potential to convert to a single- family home in the future. The house is a legal 5 unit structure not subject to continued rent stabilization. Please reach out to inquire on further details!
Fees associated with this listing include:
-Application fee $20
-1st months rent
-1 month security deposit
- tenant insurance required
-electric , gas based upon usage as usual. Wifi/Cable depends on the service chosen.
This information is not verified for authenticity or accuracy and is not guaranteed and may not reflect all real estate activity in the market. ©2025 The Real Estate Board of New York, Inc., All rights reserved.





