| MLS # | 913322 |
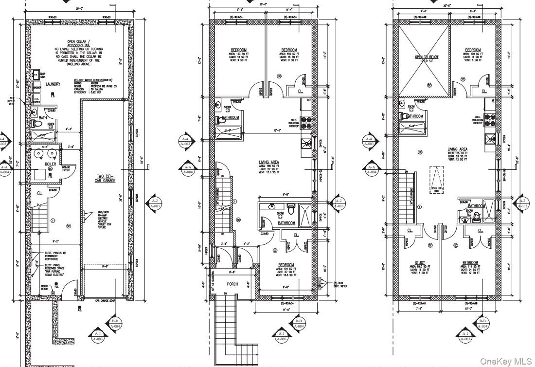
| 物件の詳細 | 2 家族, 6 寝室, 4 バスルーム, ガレージ, エアコン, 外装: 0.06 エーカー (DOM): 47 days |
| 建築年 | 2025 |
| 税金(年間) | $8,000 |
| 暖房タイプ | 温風 Hot air |
| エアコン | セントラルエアコン Central Air |
| 地下室 | 全面地下室 Full basement |
| バス | 3 分: Q25 |
| LIRR | 2.5 マイル: "Flushing Main Street" |
| 2.6 マイル: "Murray Hill" | |
![]() |
コロンビアポイントのプライムオポチュニティ — 新築のすべてレンガ造りの3.5階建て二世帯住宅です。この家は、20x52の建物サイズに6つの寝室と5つのバスルームを備え、ストリートレベルには9フィートの仕上げ済みの地下室と、8フィートの高い立ち上がり式の仕上げ済み屋根裏があります。プライベートドライブウェイ、オーバーサイズのガレージ、ハードウッドフロア、セントラルエアコン、3つの電気メーターを備え、高級素材と現代的な実用性を考慮して設計されています。投資や居住用として完璧です。必見です!
Prime Opportunity in College Point — Brand-new, all-brick 3.5-story two-family home. This house offers 6 bedrooms and 5 bathrooms across a 20x52 Building Size, a street-level 9-Ft finished basement, and a finished, tall, stand-up 8-foot attic. private driveway, oversized garage, Hardwood Floor, central A/C, three electric meters, the home is thoughtfully designed with high-end materials and modern practicality. Perfect for investment and owner-occupied, A must-see! © 2025 OneKey™ MLS, LLC







