| ID # | RLS20048879 |
| 物件の詳細 | 6 寝室, 6 バスルーム, 1 ハーフバス, 内装: 3100 ft2, 288m2 (DOM): 55 days |
| 建築年 | 1910 |
| 税金(年間) | $15,012 |
| 地下鉄 | 5 分: A, B, C, D, 2, 3 |
![]() |
ようこそお帰りなさい!
賃貸も可能で、家賃は13,500ドルです。
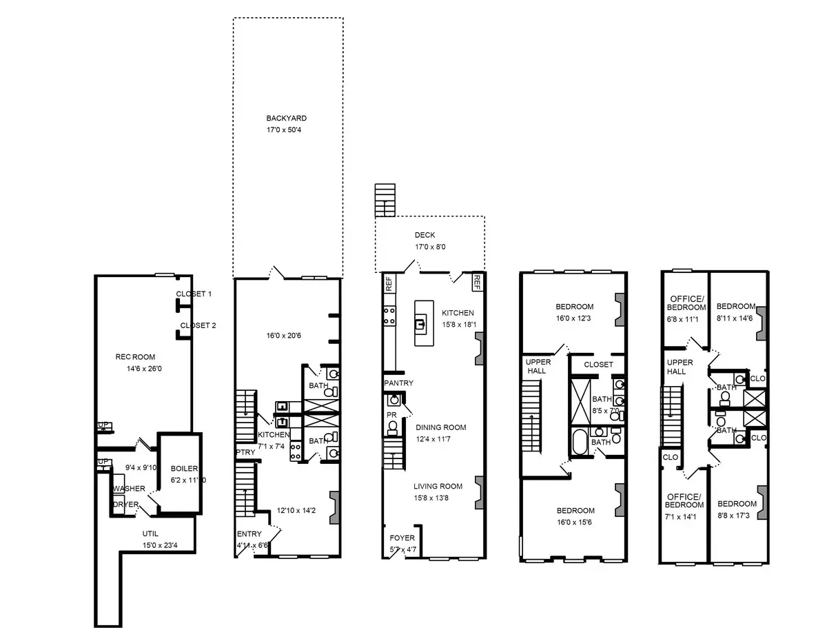
216 West 123rd Streetは、合法的な二世帯住宅で、6つの寝室とホームオフィス、6.5のバスルームを備えた住居です。
この家は一戸建てとしても使用できますし、収入を生むユニットを持つオーナートリプレックスとしても使用可能です。目立った特徴は、オリジナルの暖炉、むき出しのレンガ、アーチ型のオリジナルの入り口、オリジナルのポケットシャッター、広大な床面積、そして広々としたデッキと美しい庭です。
パーラー階に入ると、大きなリビングルームとダイニングエリアがあり、エンターテインメントに最適で、6口のヴァイキングレンジ、大量の収納、あらゆるニーズに対応するためのカウンタースペースを備えた巨大でリノベーション済みのシェフのキッチンがあります。この階にはまた、ハーフバスルーム、スタッカブルの洗濯機/乾燥機、広いエンターテインメントデッキおよびプライベートなアウトドアオアシスへのアクセスもあります!
216 West 123rd Streetは中心に位置し、すべての必需品のショッピングや最高の近所の飲食店に簡単にアクセスできます。ホールフーズ、リドル、CVS、ブリンクフィットネスなどがあり、フレデリック・ダグラス・ブールバードの角にはさまざまな注目の飲食オプションがあります。また、エクスプレスとローカルの電車からも数歩の距離です。この立地は本当に便利です!
Welcome Home!
Also available for rent for $12,950
216 West 123rd Street, a legal two-family, is a six-bedroom + home office, 6.5 bathroom residence.
The house can be used as a single-family or as an owner triplex with an income-producing unit. Notable features include original fireplaces, exposed brick, an arched original entryway, original pocket shutters, extensive square footage, and a spacious deck and beautiful garden.
As you enter the parlor level, you will find a large living room and dining area, ideal for entertaining, and a huge and renovated chef’s kitchen complete with a 6-burner Viking range, abundant storage, and counter space for all your needs. Also on this floor is a half bathroom, a stackable washer/dryer, and access to the large entertaining deck and your private outdoor oasis! .
216 West 123rd Street is centrally located, with easy access to all essential shopping and the best neighborhood eateries. Whole Foods, Lidl, CVS, Blink Fitness, to name a few, and around the corner from Frederick Douglass Blvd, which has an array of notable dining options. You are also steps from the express and local trains; It really doesn’t get more convenient than this location!
This information is not verified for authenticity or accuracy and is not guaranteed and may not reflect all real estate activity in the market. ©2025 The Real Estate Board of New York, Inc., All rights reserved.







