| ID # | 910789 |
| 物件の詳細 | 3 家族, ガレージ, エアコン, 外装: 0.07 エーカー (DOM): 44 days |
| 建築年 | 1965 |
| 税金(年間) | $8,580 |
| エアコン | 壁掛けエアコン Wall Unit AC |
![]() |
A/Oの表示はもうありません。
ウッドローンにある満室のマルチファミリーハウス。
ユニット1 - 3ベッド
ユニット2 - 3ベッド
ユニット3 - 1ベッド
正味営業収益 $29,976/年。
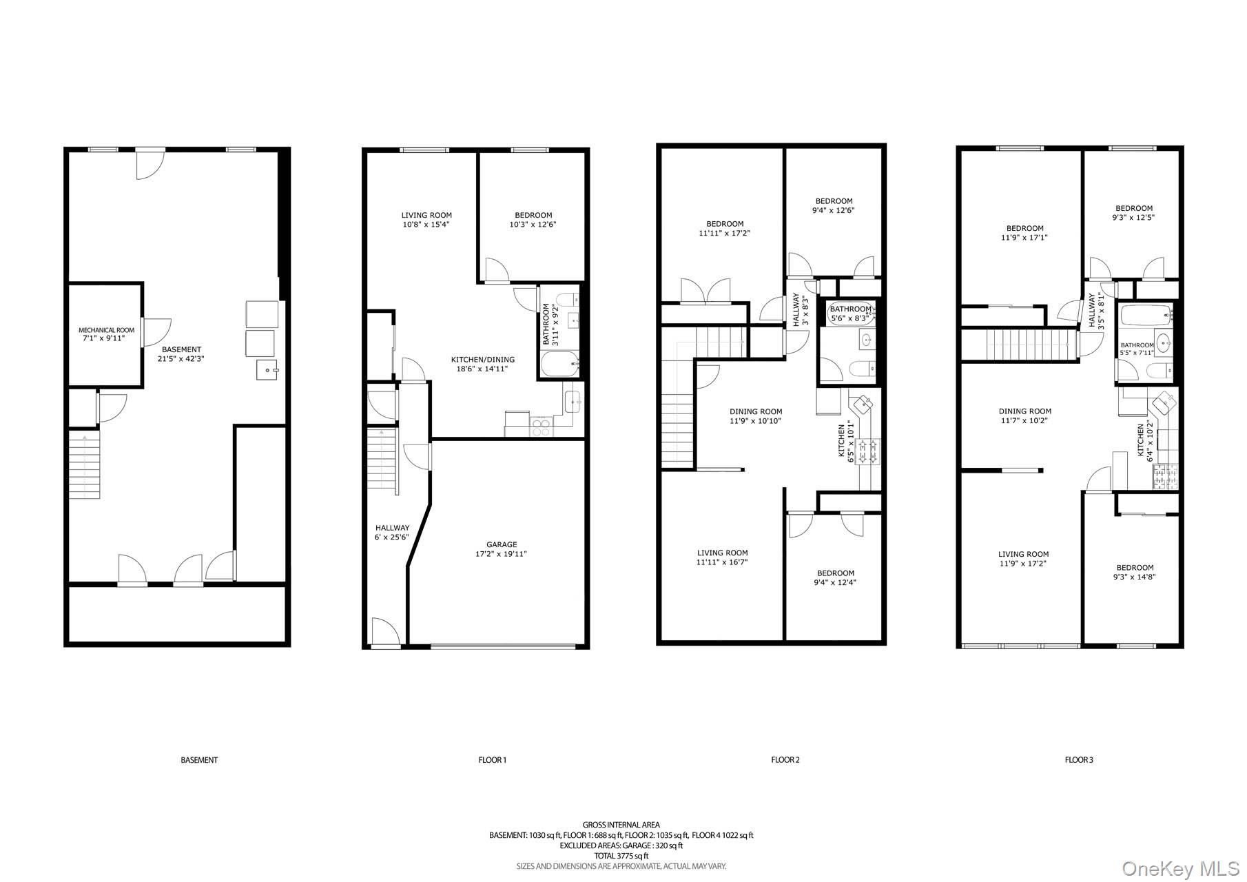
この物件には、更新された3つのユニットがあります。1階にはガレージへのアクセスがある1ベッド1バスのアパート、2階には広々とした3ベッド1バスのアパート、最上階にはもう一つの3ベッド1バスのアパートがあります。
各ユニットは広々とした部屋のサイズ、素晴らしい自然光、現代的な仕上げを提供しています。1つのユニットに住みながら他のユニットを貸し出すことを考えている方や、完全な所得を生む投資物件を求めている方にとって、これはブロンクスで最も望ましい地域の1つでの素晴らしい機会です。
交通機関やショッピング、ウッドローンが提供するすべてに近接しています。
A/O no more showings.
Fully occupied multifamily house in Woodlawn.
Unit 1 - 3 bed
Unit 2 - 3 Bed
Unit 3 - 1 Bed
Net operating income $29,976/year.
This property features three updated units: a 1-bedroom, 1-bath apartment on the first floor with access to the garage, a spacious 3-bedroom, 1-bath apartment on the second floor; and another 3-bedroom, 1-bath apartment on the top floor.
Each unit offers generous room sizes, great natural light, and modern finishes. Whether you're looking to live in one unit and rent out the others or seeking a fully income-producing investment property, this is a fantastic opportunity in one of the Bronx’s most desirable neighborhoods.
Close to transportation, shopping, and all that Woodlawn has to offer. © 2025 OneKey™ MLS, LLC







