| ID # | RLS20050603 |
| 物件の詳細 | 4 寝室, 3 バスルーム, 食器洗い機 (DOM): 53 days |
| 建築年 | 1922 |
| 管理費 | $6,096 |
| 地下鉄 | 4 分: 4, 5, 6, 7, S |
| 9 分: B, D, F, M, N, Q, R, W | |
![]() |
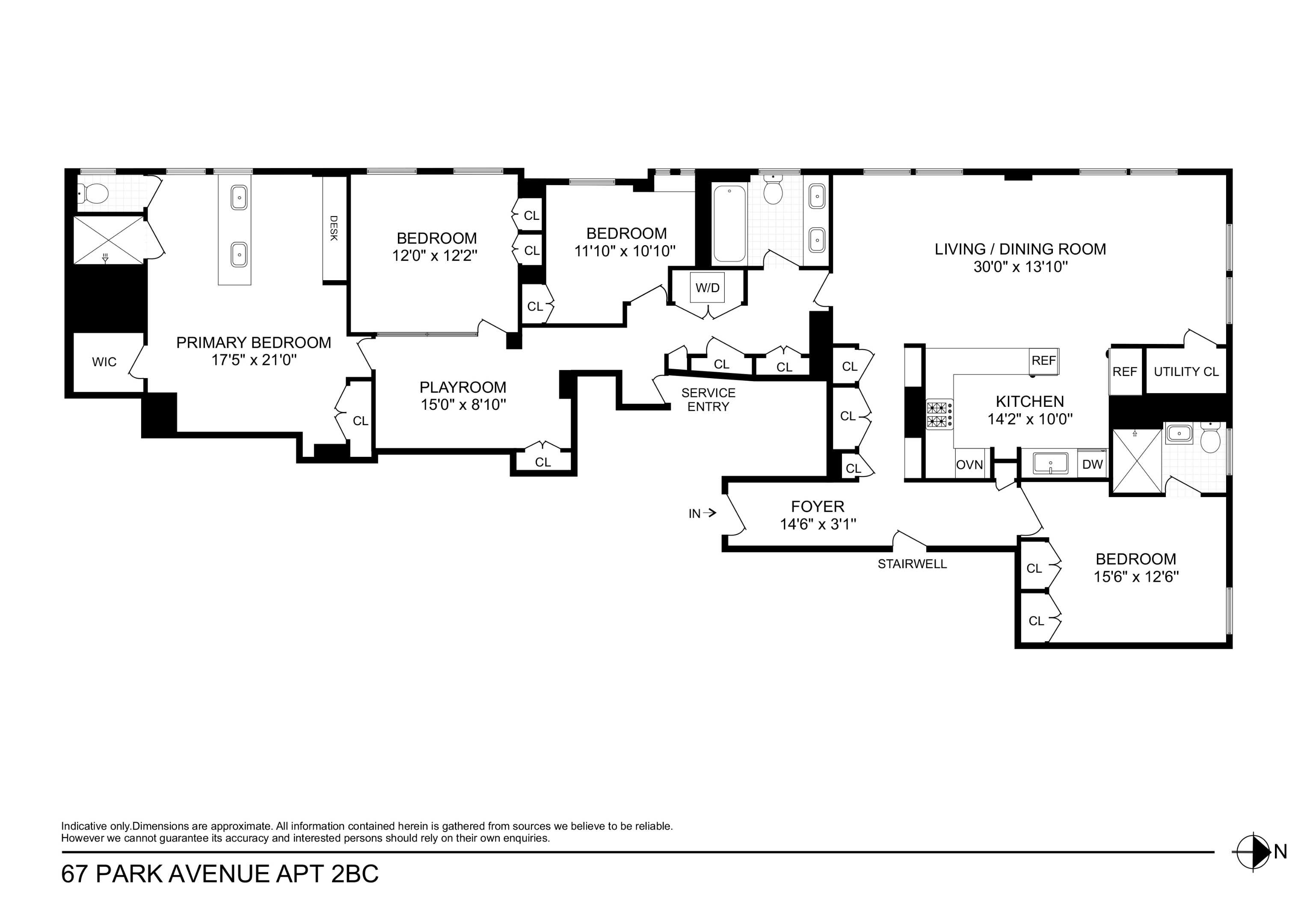
この印象的な家を最初に見てください。新たに素晴らしいデザインのパークアベニューの4ベッドルーム、3フルバスルームの家です!この日当たりの良い角部屋は完全に改装されています。このXXXミントモダンで広々とした4ベッドルームのプレウォー住宅は高い天井と南西に面した日当たりの良い角部屋です。美しい広々としたオープンキッチンには、換気されたウルフのレンジとオーブン、ミーレのコンベクションオーブンと電子レンジ、ミーレの食器洗浄機、サブゼロの冷蔵庫、2つのサブゼロの冷蔵および冷凍引き出し、そして豊富な収納スペースを持つエルネストメダのキャビネットがあります。デザイナーキッチンには、グルメ料理やエンターテイメントに最適な広いオープンカウンターが含まれています。30フィートの長さのリビングルームとダイニングルームはエンターテイメントに最適です。三つの美しい改装されたバスルームには窓があり、良い光を取り入れています。大理石のマスターバスルームには、ジャイコの大型天井雨シャワー付きの独立した大きなシャワースタンドがあります。かつての浴槽はホームオフィスに改装され、柔軟で機能的なスペースを提供しています。この高級で緻密な改装には、新しい4ゾーン三菱中央空調システム、ボッシュの洗濯機と乾燥機、5インチのホワイトオークのフローリング、全体に取り付けられたドルンブラハトの器具、全体にLED照明、ビルトインスピーカー、リモートコントロール式のシェードが含まれています。カスタムミルワーク、ビルトインおよび収納スペースが整った素晴らしいクローゼットがあります。マスターの横には、動く薪ストーブの暖炉がある座るエリアがあります。67パークアベニューはフルサービスの素晴らしいプレウォー建物で、常勤のドアマン、エレベーターの運転手、自転車収納を提供しています。ペットは許可されており、ピエ・ア・テールも許可されています。トレンディなパークアベニューサウスのレストランは数ブロックの距離にあり、バイロンパークやグランドセントラル駅(4/5/6/S/7)での素晴らしいショッピングや交通機関も便利です。
月々の評価額は$1,632.28です。この評価は2025年末まで続き、外壁プロジェクトのためのものです。
Be the first to see this impressive home. New incredibly designed Park Avenue 4 bedroom, 3 full bathroom home! This SUN-SPLASHED corner apartment has been completely gut renovated. This XXX MINT MODERN and SPACIOUS 4 Bedroom prewar home is a corner apartment with High Ceilings and Sunny South and West Exposures. A gorgeous large, airy and open kitchen includes a Wolf range and oven which is vented out, a Miele convection and microwave, a Miele dishwasher as well as a Subzero Refrigerator plus 2 Subzero fridge and freezer drawers and Ernestomeda cabinetry with abundant storage. The designer kitchen includes large open counter spaces perfect for gourmet cooking and entertaining. The 30 foot long living room and dining room are perfect for entertaining. Three gorgeous renovated bathrooms have windows allowing nice light. The marble master includes a separate large shower stall with a Jaico over sized ceiling rainshower. The former soaking tub has been converted into a home office, offering a flexible and functional space. This high end meticulous renovation includes a new 4 zone Mitsubishi central air conditioning system, a Bosch washer dryer, 5 inch white oak floors, Dornbracht fixtures throughout and LED lighting throughout plus built in speakers and remote controlled shades. Incredible closets with custom millwork, built ins and storage space throughout. Off the master is a sitting area with a working wood burning fireplace. 67 Park Avenue is wonderful prewar full service building which offers a full time doorman, elevator man and bike storage. Pets are allowed and pied a terres are permitted. Trendy Park Avenue South restaurants are within a few blocks, as is Bryant Park, great shopping and transportation at Grand Central Station (4/5/6/S/7).
There is an assessment of $1,632.28/mo. This assessment ends at the end of 2025. It is for the façade project.
This information is not verified for authenticity or accuracy and is not guaranteed and may not reflect all real estate activity in the market. ©2025 The Real Estate Board of New York, Inc., All rights reserved.







