| ID # | RLS20051397 |
| 物件の詳細 | 1 寝室, 1 バスルーム, 食器洗い機, 洗濯機, 乾燥機, 内装: 700 ft2, 65m2 (DOM): 60 days |
| 建築年 | 1899 |
| 管理費 | $573 |
| 税金(年間) | $9,312 |
| バス | 1 分: B25 |
| 5 分: B67, B69 | |
| 9 分: B103, B26, B38, B52, B62 | |
| 10 分: B41, B57 | |
| 地下鉄 | 5 分: A, C, F |
| 8 分: 2, 3 | |
| LIRR | 1.6 マイル: "Atlantic Terminal" |
| 2.8 マイル: "Nostrand Avenue" | |
![]() |
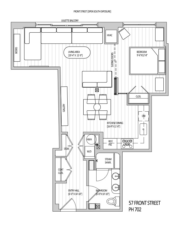
DUMBOの中心に位置する建築の宝石、この全面改装されたコンドミニアムロフトは、スタイルと快適さの両方を兼ね備えた家に生まれ変わりました。690平方フィートのPH 702は、57フロントストリートにあり、大きな南向きの窓の壁によって支えられた明るく広々としたレイアウトを提供し、温かい自然光が室内を包み込み、洗練された仕上げと現代的なデザインを際立たせています。
著名な建築事務所dMADによって改装されたこの家は、オープンで空気のような感覚を保ちながら、適切な寝室を作るカスタム製のスチールとガラスの仕切りを特徴としています。幅広のオークのフローリングと天井、そして集中空調、スマートスイッチ、LED照明、電動シェードを含む統合スマートホーム技術がロフトの洗練された現代的な感覚を高めています。
グルメキッチンにはソープストーンのカウンター、サブゼロの冷蔵庫、ボッシュの家電が揃い、スパのようなバスルームにはダブルバニティ、シート付きのシャワー、スチームユニット、レフロイ・ブルックスの設備が備わっています。その他のハイライトとして、ユニット内の洗濯機/乾燥機、WiFi対応の温水器、大きな収納ケージが含まれます。
57フロントストリートは、パートタイムのドアマン、わずか1フロア上にある造園された屋上テラス、フィットネスセンター、自転車収納を備えたブティックコンドミニアムです。DUMBOの中心に完璧に位置し、ウォーターフロント、象徴的なブルックリンブリッジパーク、近隣で最も評価の高い飲食店やショッピングスポットからすぐの場所にあります。細心のリノベーションとプライムロケーションを持つPH 702は、ブルックリンで最も活気に満ち、求められる地区の一つにあるターンキーの住まいです。
An architectural gem in the heart of DUMBO, this gut-renovated condo loft has been transformed into a home of both style and comfort. At 690 sq ft, PH 702 at 57 Front Street offers a sunny, spacious layout anchored by a wall of oversized, south-facing windows, bathing the interiors in warm, natural light, highlighting its refined finishes and modern design.
Renovated by renowned architecture firm dMAD, this home features a custom steel-and-glass partition that creates a proper bedroom while preserving its open, airy feel. Wide-plank oak floors and ceilings, and integrated smart-home technology– including central air, smart switching, LED lighting, and electric shades– enhance the loft’s sophisticated, contemporary feel.
The gourmet kitchen boasts soapstone counters, a Sub-Zero refrigerator, and Bosch appliances, while the spa-like bath features a double vanity, stall shower with seat, steam unit, and Lefroy Brooks fixtures. Additional highlights include an in-unit washer/dryer, WiFi-enabled hot water heater, and a large storage cage.
57 Front Street is a boutique condominium with a part-time doorman, landscaped roof terrace just one floor up, fitness center, and bike storage. Perfectly located in the heart of DUMBO, the building is moments from the waterfront, iconic Brooklyn Bridge Park, and the neighborhood’s most celebrated dining and shopping. With its meticulous renovation and prime location, PH 702 is a turnkey residence in one of Brooklyn’s most vibrant and sought-after neighborhoods.
This information is not verified for authenticity or accuracy and is not guaranteed and may not reflect all real estate activity in the market. ©2025 The Real Estate Board of New York, Inc., All rights reserved.







