| ID # | RLS20051875 |
| 物件の詳細 | 1 寝室, 1 バスルーム (DOM): 128 days |
| 建築年 | 1941 |
| 地下鉄 | 3 分: 1 |
| 4 分: C, E | |
| 5 分: A, B, D, F, M | |
| 9 分: R, W | |
| 10 分: 6 | |
![]() |
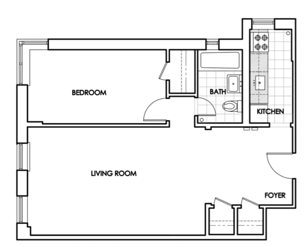
明るい最上階の大きなコーナー1ベッドルーム、フルサービスのウェストビレッジビル
9〜10ヶ月の契約が可能、更新オプションあり。
***現在の入居者は1ヶ月分を完全に無料で提供しています。実質価格は$5978。総価格は$6725です。
ウェストビレッジの中心にあるフルサービスのドアマンビル
アパートの特徴:
明るい最上階のユニットで、リビング兼ダイニングエリアの広いレイアウトを含む大きな空間があります。別の窓付きキッチンや、アパートの広い玄関にはホームオフィス用のスペースもあります。
広々としたキングサイズのベッドルームは、優れた自然光と開放的な市の景色を楽しめます。バスルームにも窓があり、さらに自然光が入ります。
現在の入居者は、家具をすべて含めて退去するか、貸し出さずに退去することも可能です。
ビルの設備:
24時間のドアマン&荷物室
フィットネスセンター
ランドリー設備
エレベーター
詳細:
フレキシブルな10月スタート日
9〜10ヶ月のリース期間で更新オプションあり。契約は10月中旬または末から2026年7月末までいつでも可能で、必要に応じて新たに12ヶ月のリースを更新するオプションがあります。
ワシントンスクエアパーク、ハドソンリバーグリーンウェイ、トップレストラン、カフェ、ブティックの近くにあるウェストビレッジの主要なロケーション
A/C/E、B/D/F/M、1の地下鉄へのアクセスが容易
$20の申請料
1ヶ月完全無料
契約時に1か月の家賃と1か月分の保証金が必要です。
詳細についてはご連絡ください。
Read the English version or choose another language
This information is not verified for authenticity or accuracy and is not guaranteed and may not reflect all real estate activity in the market. ©2025 The Real Estate Board of New York, Inc., All rights reserved.







