| ID # | RLS20052328 |
| 物件の詳細 | 2 寝室, 1 バスルーム, 内装: 1950 ft2, 181m2 (DOM): 85 days |
| 建築年 | 1915 |
| 管理費 | $899 |
| 税金(年間) | $13,560 |
| 地下鉄 | 3 分: 1 |
| 4 分: 2, 3 | |
| 6 分: A, C, E | |
| 8 分: R, W | |
| 10 分: 4, 5, 6, N, Q, J, Z | |
![]() |
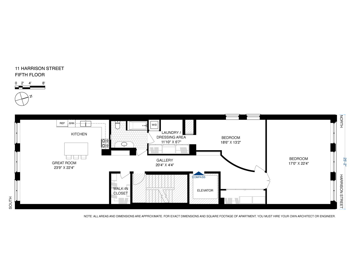
トライベッカの中心にあるフルフロアロフト
ハリソンストリート11のレジデンス5は、トライベッカのロフトライフの本質を体現する、広々とした1,950平方フィートの2ベッドルームです。この家は、プライベートエレベーターの入り口、広々とした部屋、剥き出しのレンガやベネチアン・プラスターの天井など、目を引くデザインの詳細を誇っています。大きなダイニングテーブルを置くための十分なスペースを含む広々としたグレートルームは、シート付きの大理石のアイランドとビルトインストレージが備えられたオープンシェフキッチンによって支えられています。カスタムの上部キャビネット、大理石のカウンタートップ、ストレージと機能性を高めるためのパントリーが設置されています。
約400平方フィートの主寝室は家の反対側にあり、幅は印象的な22フィートです。北向きの3つの特大窓があるこの日当たりの良い部屋には、剥き出しのレンガが使われており、キングサイズのベッド、2つのナイトスタンド、さらには追加の家具を置くのに十分なスペースがあります。第二の寝室は、静かな環境にあり、キングサイズのベッドと家具が収まるスペースがあり、ビルトインクローゼットを備えたドレッシングエリアがあります。
ハリソンストリート11は、トライベッカの古典的な石畳の通りに位置し、近隣の最高のレストランやショッピングに囲まれています。住民は、低コモンチャージや地下の追加ストレージユニット、バーチャルドアマンサービスを利用します。建物は、エレベーターシステムの改善プロジェクトを完了したばかりで、それはすでに全額支払われています。
Full Floor Loft in the Heart of Tribeca
Residence 5 at 11 Harrison Street is a sprawling, floor-through, 1,950 SF 2-bedroom epitomizing the essence of Tribeca loft living. This home boasts private elevator entry, grand rooms, and striking design details like exposed brick and venetian plaster ceilings throughout. The generously sized great room, which includes ample room for a large dining table, is anchored by an open chef's kitchen outfitted with a marble island with seating and built in storage; custom upper cabinetry; marble countertops; and a pantry for added storage and functionality.
The almost 400 SF primary bedroom is tucked away at the other end of the home and spans an impressive 22 feet wide. This sun-soaked room with a wall of three oversized, north-facing windows, features exposed brick and plenty of space for a king-sized bed, two nightstands, and additional furniture. The second bedroom is pin-drop quiet and fits a king sized bed, plus furniture, and includes a dressing area with a built out closet.
11 Harrison Street is situated on a classic cobblestone street in Tribeca and is surrounded by the neighborhood's best restaurants and shopping. Residents enjoy low common charges and additional storage units in the basement, as well as a virtual doorman service. The building just completed a capital improvement project upgrading the elevator system, which has already been paid for in full.
This information is not verified for authenticity or accuracy and is not guaranteed and may not reflect all real estate activity in the market. ©2025 The Real Estate Board of New York, Inc., All rights reserved.






