| ID # | RLS20052293 |
| 物件の詳細 | 1 寝室, 1 バスルーム, 1 ハーフバス, 洗濯機, 乾燥機, 内装: 1155 ft2, 107m2 (DOM): 181 days |
| 建築年 | 1904 |
| 管理費 | $579 |
| 税金(年間) | $10,836 |
| バス | 1 分: B67 |
| 4 分: B62 | |
| 5 分: B69 | |
| 6 分: B57 | |
| 7 分: B25 | |
| 10 分: B54 | |
| 地下鉄 | 3 分: F |
| 8 分: A, C | |
| LIRR | 1.4 マイル: "Atlantic Terminal" |
| 2.6 マイル: "Nostrand Avenue" | |
![]() |
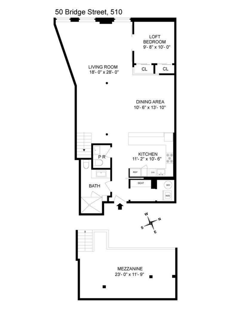
素晴らしい内装を改装したロフトは、1ベッドルーム、1.5バスルームのアパートメントとして構成され、追加の275平方フィートのメザニンスペースがあります。このロフトは、露出したレンガの壁や鋼の柱など、元の建築的な詳細を保つために細心の注意を払って、徹底した改装が行われました。
広々とした1155平方フィートのロフトは西向きで、11フィートの高い天井に完璧に合わせた3つの大きな二重窓を通して、NYCのスカイラインとイーストリバーの邪魔されない景色を楽しむことができます。全体に本物のホワイトオークのハードウッドフロアが施され、ベッドルームにはカスタムの再利用木材で作られたバームドアがあります。すべての新的な機械設備と電気が施されているだけでなく、ロフトはプロジェクターとスクリーンを利用できるように配線されています。
素晴らしいキッチンには超大型の朝食バーがあり、食器洗い機とワインクーラーを含むステンレス鋼の家電が完備されています。高級デザイナーの器具が備わった美しいフルバスルームには、広々としたスタンドアップシャワーがあり、雨だれシャワーヘッドと手で使うスプレーも完備されています。超現代的なデザイナーの器具が揃ったハーフバスルームは、エンターテイメントに最適に配置されています。両方のバスルームには放射熱床暖房があります。
エントリーヴェスチュールには、出発と到着を容易にするためのベンチ、棚、複数のコート・ハットフックがあります。隣接する場所には、機械設備があり、積み重ねて置ける洗濯機/乾燥機があるタイル貼りの泥ルームがあります。
50ブリッジストリートは、ウォーターとブリッジストリートの角にあるダンボの優れた場所にあります。1904年にカークマン&ソン石鹸会社によって建設され、当初は石鹸工場と倉庫でした。ダンボ歴史地区に位置するこの建物は、2004年にコンドミニアムに改装され、依然として多くの魅力的な産業時代の建築的特徴を示しています。
このビルは、住民に多くのアメニティを提供しており、パートタイムのドアマン(午前8時から午後8時)、ランドリー施設、マンハッタンのスカイラインの景色を楽しめる家具付きの屋上デッキがあります。また、地下にはレンタル可能な自転車ラックと収納ユニットもあります。
近年、ダンボは本当に進化を遂げ、多くの食事、ショッピング、文化的オプションがブルックリンブリッジパークの背景となる場所に数歩の距離で豊富にあります。また、F、A、Cの地下鉄路線とイーストリバーのフェリーも近くにあります。
この特別なロフトは実際に見て初めてその価値を理解できます。プライベートビューイングをご希望の方はお電話またはメールをください。
Exceptional gut renovated Loft configured as a one bedroom, one and half bathroom apartment with an additional 275 sf of mezzanine space. The loft has undergone a meticulous gut renovation with painstaking attention to preserving many of the original architectural details like the exposed brick walls and steel columns.
This expansive 1155 sq ft loft faces west with unobstructed views of the NYC skyline and East River thru three oversized new double-hung double pane windows in perfect portion to the 11ft high ceilings. There are genuine white oak hard wood floors throughout and custom reclaimed wood barn doors on the bedroom. In addition to all new mechanical and electric throughout, the loft has been wired to accommodate a projector and screen.
The exquisite Kitchen has a super-sized breakfast bar, fully equipped with stainless-steel appliances including a dishwasher and wine cooler. There is a beautiful full bathroom with high-end designer fixtures, spacious standup shower with rainfall shower head and hand sprayer. An Ultra-modern designer fixture half bathroom is situated perfectly for entertaining. Both bathrooms feature radiant heat flooring.
The entry vestibule has a bench, shelve and multiple coat/hat hooks to facilitate your departure and arrival. Directly adjacent is a tile clad mudroom with mechanicals and a stacked washer/dryer.
50 Bridge Street is in a prime Dumbo location at the Corner of Water and Bridge Street. Built in 1904 by the Kirkman & Son Soap Company it was originally a soap factory and warehouse. Situated in the DUMBO Historic District, the building was converted to condominiums in 2004 and still exhibits many of the coveted Industrial Era architectural characteristics.
The building offers residents numerous amenities including a part-time doorman (8 am to 8 pm), laundry facility and a furnished roof deck with Manhattan skyline views. There are also bike racks and storage units available for a rent in the basement.
In recent years DUMDO has really come a long way, there is now an abundance of dining, shopping and cultural options just steps away set against the backdrop of the Brooklyn Bridge Park. Also in close proximity is the F, A, & C subway lines, and the East River Ferry.
This special Loft must truly be seen to be appreciated, just call, just email us for a private viewing.
This information is not verified for authenticity or accuracy and is not guaranteed and may not reflect all real estate activity in the market. © 2026 The Real Estate Board of New York, Inc., All rights reserved.







