| ID # | RLS20052649 |
| 物件の詳細 | 8 寝室, 4 バスルーム, 内装: 3090 ft2, 287m2 |
| 建築年 | 1995 |
| 税金(年間) | $11,268 |
| バス | 1 分: B61 |
| 5 分: B63 | |
| 7 分: B57 | |
| LIRR | 1.3 マイル: "Atlantic Terminal" |
| 2.8 マイル: "Nostrand Avenue" | |
![]() |
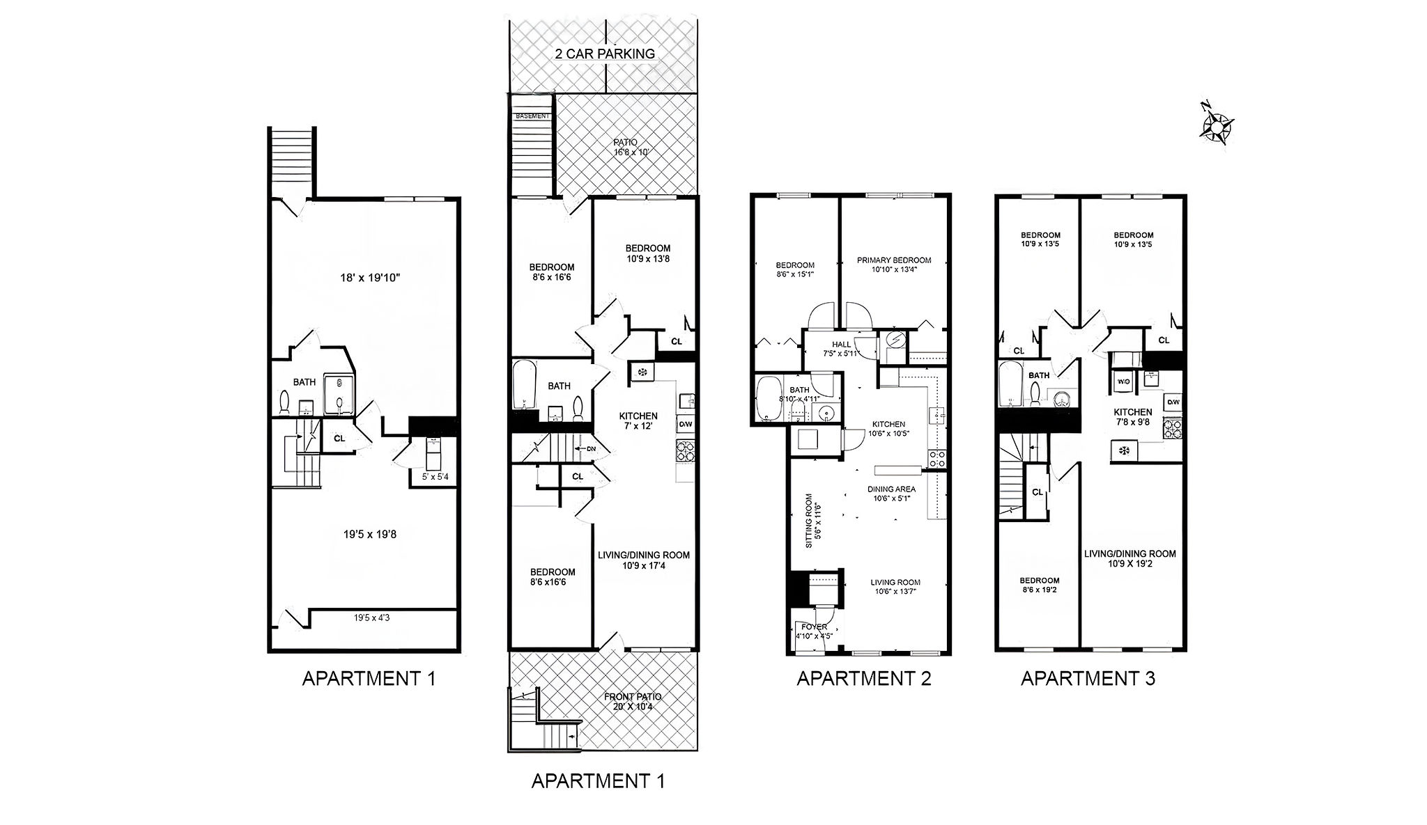
信じられない投資機会!コロンビアウォーターフロント地区の3ユニット多世帯住宅を提供します。この3階建てプラスフルベースメントの建物は状態がよく、堅実なテナントが完全に入居しており、現在はすべて月々の契約です。建物はテナントが入ったまま引き渡すことも、買主の希望に応じて空室の状態で引き渡すことも可能です。この建物には裏手に2台分の駐車スペースが付いています。残りのFARとR6Bのゾーニングも拡張の機会を提供します。この建物は追加の機会と上昇の可能性が十分にあり、簡単で価値のある投資を提供します。
Incredible Investment Opportunity! Offering a 3-unit multifamily building in Columbia Waterfront District. This three-story plus full basement is in great condition and fully occupied with solid tenants, currently all on a month-to-month basis. Building can be delivered with tenants in place or can be delivered vacant depending on buyer's preference. This building comes with two parking spaces in the rear of the building. Remaining FAR and R6B zoning also offer the opportunity to expand. This building offers an easy and worthwhile investment with plenty of additional opportunity and upside.
This information is not verified for authenticity or accuracy and is not guaranteed and may not reflect all real estate activity in the market. © 2026 The Real Estate Board of New York, Inc., All rights reserved.







