| ID # | 921193 |
| 建築年 | 1926 |
| 税金(年間) | $17,027 |
| 燃料の種類 | 天然ガス Gas |
| 暖房タイプ | 温風 Hot air |
| エアコン | セントラルエアコン Central Air |
![]() |
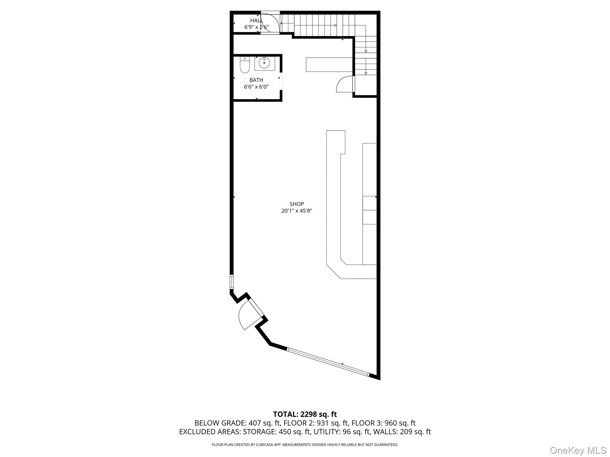
プライムロケーション!!エレベートバー&ラウンジへようこそ!コーナーブリックビルディング、特別なイベントを開催するためのケータリングホールビジネスに最適なスペース、2,000平方フィートと未完成の地下室に追加で1平方フィート。適正価格で建物の裏に駐車しているフードトラックも追加特典として。評判の良い会場です。このような非常に目立つ場所でこの建物とビジネスを所有する絶好の機会です。100人以上を収容できる2,000平方フィートのスペースを提供し、未完成の地下室スペースはさらに1,000平方フィートです。通りを挟んだ向かいに巨大で便利な駅の駐車場があり、NYCの通勤者にサービスを提供するのに最適な場所です。すべての主要高速道路へのアクセスも簡単で、メトロノースから数分、ショッピングハブにも近いです。
Prime Location!! Welcome to Elevate Bar & Lounge! Corner Brick Building, Great space for a catering hall business to host special events etc with 2,000 sqft with addition 1 Sqft in the unfinished basement. Food truck as an additional bonus at the right price stationed in the rear of the building and Bar Equipment. Well known venue. Great opportunity to own this building and business in such a highly visible location. Offering 2,000 sq ft to host over 100 guest, additional 1,000 sq ft of unfinished basement space. Huge convenient train station parking lot right across the street, great location to service NYC commuters. Easy access to all major parkways, minutes from the metro north, shopping Hubs. © 2025 OneKey™ MLS, LLC







