| ID # | RLS20053251 |
| 物件の詳細 | 1 寝室, 1 バスルーム, 洗濯機, 乾燥機, ガレージ, 内装: 719 ft2, 67m2 (DOM): 175 days |
| 建築年 | 2006 |
| 管理費 | $1,218 |
| 税金(年間) | $300 |
| バス | 1 分: B32, Q59 |
| 5 分: B62, B67 | |
| 8 分: B44, B44+ | |
| 9 分: B24, B39, B46, B60, Q54 | |
| LIRR | 1.9 マイル: "Atlantic Terminal" |
| 2.2 マイル: "Long Island City" | |
![]() |
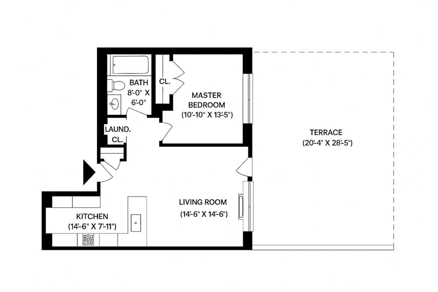
駐車場、ストレージ、2つの自転車ラックが含まれています。プライム・サウス・ウィリアムズバーグにある、珍しい日当たりの良い1ベッドルームのコンドミニアムにようこそ。この物件は、540平方フィートのプライベートテラス、権利付き駐車場、プライベートストレージを備えています。
最近、丁寧に改装され、住居は6インチ幅の幅広の木のフローリング、新しいカスタム照明、再仕上げされたキッチンキャビネットを誇ります。
オープンなシェフズキッチンは、クォーツ製の島に anchored され、ステンレス製の家電製品、カスタムビルトのパントリー、豊富なキャビネット収納を完備しており、料理やエンターテイメントに最適です。540平方フィートのプライベートテラスは、新しいタイル張りの床とラウンジ、ダイニング、ガーデニングのための十分なスペースを備えた比類のない屋外リビング体験を提供します。
住民はまた、新しくデザインされた共用屋上デッキにアクセスでき、バイキンググリル、エレガントな景観、屋外ラウンジエリア、マンハッタンの中心部とダンボのパノラマビューを楽しめる、ホスティングやリラックスに最適な場所です。
販売に含まれるものは:
権利付き駐車スペース
プライベートストレージケージ
ワインストレージ
2つの専用自転車ラック
住民ジム
ウィリアムズバーグのウォーターフロントとドミノパークからわずか数分の場所に位置し、屋外レクリエーション、文化、緑地へのアクセスが素晴らしいです。交通はNYCフェリーとJ/M/Zトレインが近くにありとても便利です。この地域には、ピーター・ルーガー、シー・ウルフ、レーザー・ウルフなど、都市の最も有名な飲食店やショッピングスポットもあります。
これは、ブルックリンで最も望ましい地域の1つにある、アウトドアスペース、駐車場、アメニティを備えたターンキー物件を所有するという本当に特別な機会です。
現在、月額560.52ドルの評価があります。
PARKING, STORAGE, TWO BIKE RACKS INCLUDED. Welcome home to this rarely available, sun-filled one-bedroom condominium featuring a private 540 sq ft terrace, deeded parking, and private storage in prime South Williamsburg.
Recently and thoughtfully renovated, the residence boasts 6-inch wide-plank wood flooring, new custom lighting, refinished kitchen cabinetry.
The open chef's kitchen is anchored by a quartz-topped island and equipped with stainless steel appliances, a custom-built pantry, and abundant cabinet storage-ideal for cooking and entertaining. The 540 sq ft private terrace offers an unparalleled outdoor living experience with newly retiled flooring and ample space for lounging, dining, and gardening.
Residents also enjoy access to a newly redesigned common roof deck, complete with a Viking grill, elegant landscaping, outdoor lounge areas, and panoramic views of Downtown Manhattan and DUMBO-a perfect setting for hosting and relaxing.
Included in the sale are:
Deeded parking space
Private storage cage
Wine storage
Two dedicated bike racks
Resident gym
Located just moments from the Williamsburg waterfront and Domino Park, the home offers unbeatable access to outdoor recreation, culture, and green space. Transportation is a breeze with the NYC Ferry and J/M/Z trains nearby. The neighborhood is also home to some of the city's most notable dining and shopping destinations, including Peter Luger, Sea Wolf, Laser Wolf, and many more.
This is a truly exceptional opportunity to own a turnkey home with outdoor space, parking, and amenities in one of Brooklyn's most desirable neighborhoods.
Currently there is an assessment of $560.52 monthly.
This information is not verified for authenticity or accuracy and is not guaranteed and may not reflect all real estate activity in the market. © 2026 The Real Estate Board of New York, Inc., All rights reserved.






