| ID # | 922646 |
| 建築年 | 1960 |
| 税金(年間) | $8,965 |
| 燃料の種類 | 天然ガス Gas |
| エアコン | セントラルエアコン Central Air |
![]() |
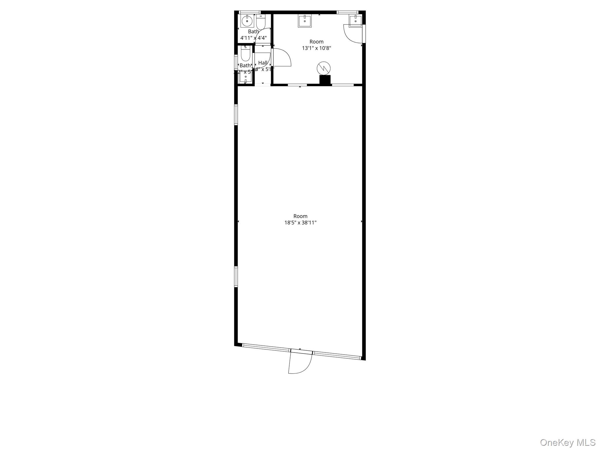
素晴らしい所有者占有のチャンス!ポキプシー町のフッカーアベニュー300番地にある小売店舗/レストランビルは、ヴァッサー大学の近くに位置し、新しいオーナーが仕上げを行えるように解体され部分的に更新されています。サイトには、公共の水道、下水道、天然ガス、そして高電力が整備されており、長年にわたり成功したピザ屋としての過去を示しています!ピザオーブン、商業用フード、ローボーイ冷蔵庫、ストレージラック(写真に見えるものすべて)などのいくつかのレストラン機器も購入可能です。売却価格設定されています!
AMAZING OWNER OCCUPIER OPPORTUNITY! 300 Hooker Avenue in the Town of Poughkeepsie is a retail storefront/restaurant building located near Vassar College that has been gutted and partially updated for the new owners to put their finishing touches on. The site features municipal water, sewer, natural gas and heavy power, given its past life as a successful pizzeria for many years! Several pieces of restaurant equipment could also be available for purchase, including a pizza oven, commercial hood, lowboy coolers, and storage racks (everything you see in pictures). PRICED TO SELL! © 2025 OneKey™ MLS, LLC







