| ID # | RLS20052691 |
| 物件の詳細 | 5 寝室, 7 バスルーム, 2 ハーフバス (DOM): 29 days |
| 建築年 | 1910 |
| 税金(年間) | $63,312 |
| 地下鉄 | 3 分: 6 |
| 5 分: F, Q | |
| 8 分: N, W, R, 4, 5 | |
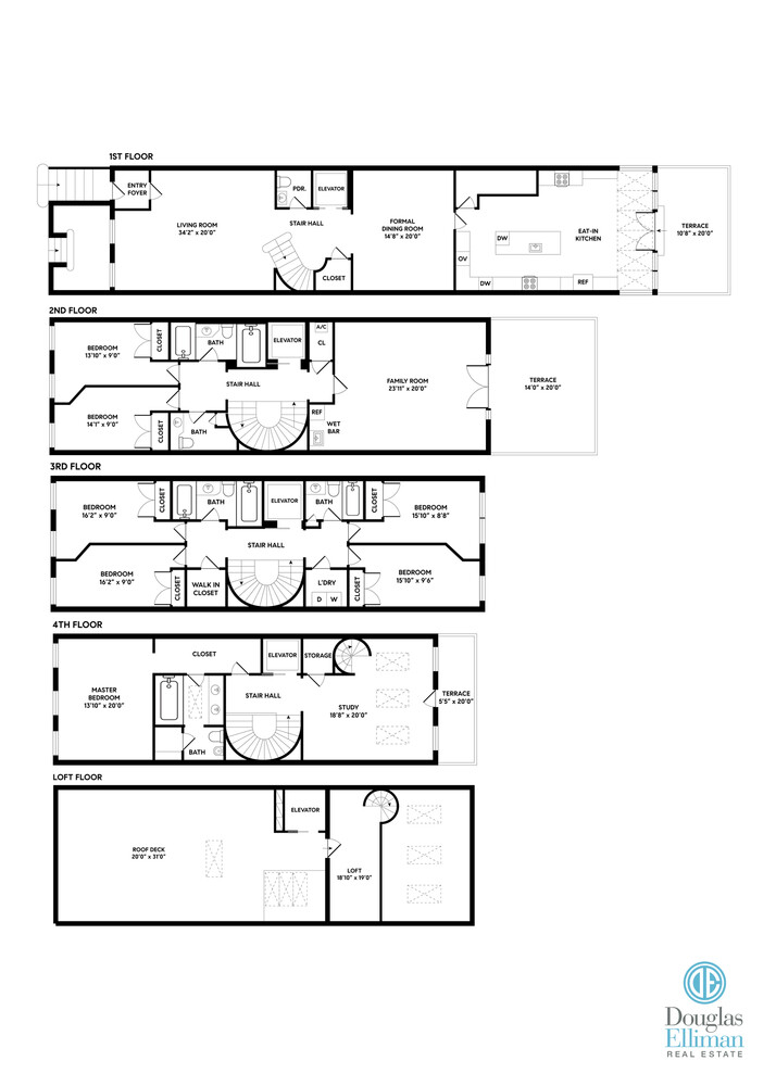
![]() |
歴史的な壮大さと現代的な洗練を兼ね備えたランドマーク住宅。
1879年に建てられたこの20フィート幅のネオ・グレック傑作は、時代建築の際立った例として存在し、迫力あるファサードと、マディソン・アベニューとパーク・アベニューの間、アッパー・イースト・サイドで最も人気のあるブロックの一つであるイースト67丁目の恵まれた立地で際立っています。セントラルパークからも短い散歩の距離にあり、歴史的な優雅さと現代の快適さを融合させた特別な住まいを提供しています。
5階建てとドラマチックなメザニンを含み、住宅は約8,270平方フィートの内部生活空間を占め、4つのプライベートテラスに広がる1,560平方フィートの屋外スペースによって思慮深く強化されています。さらに、天井の高さがある2,000平方フィートの掘り下げられた下層階は、レクリエーション、ウェルネス、またはワイン保管用に素晴らしい柔軟性を加えます。
現在は地下にプロフェッショナルスイートのある一戸建て住宅として配置されており、この家は卓越した適応性を提供します。プロフェッショナルスペースは独立したままにすることも、収益を生む要素として続けることも、メインの住宅にシームレスに統合して居住空間を拡大することも可能です。
インテリアは壮大さと住みやすさのバランスを保つようにデザインされています。パーラーフロアはロフトのような開放感を醸し出し、大きなプライベートテラスへの直接アクセスを持つショーピースなシェフズキッチンを中心に広々としたリビングとダイニングエリアがあります。7ベッドルームのレイアウトは、マーブルで装飾されたバスルームとうっそうとした収納、そしてプライベートテラスに屋根へのアクセスを持つ2階建てのライブラリー/スタディである主寝室によって頂点に達します。
追加の特徴が物件の質を際立たせています: sweeping central staircase、すべての階をサポートする新設の商業用グレードのエレベーター、輻射熱床、遮音されたメディアルーム、高度な機械システム、包括的なセキュリティシステム。
その希少なスケール、完璧なデザイン、そして貴重な立地を持つ51 East 67th Streetは、世界クラスのショッピング、上質なダイニング、博物館、文化的ランドマークに囲まれ、アッパーイーストサイドの偉大なプライベートハウスの一つを所有する機会を提供します。
A Landmark Residence with Historic Grandeur and Modern Refinement.
Built in 1879, this 20-foot-wide Neo-Grec masterpiece stands as a striking example of period architecture, distinguished by its commanding facade and its enviable placement on East 67th Street between Madison and Park Avenues-one of the Upper East Side's most sought-after blocks. Just a short stroll from Central Park, the home offers an extraordinary combination of historic elegance and modern comfort.
Spanning five stories plus a dramatic mezzanine, the residence encompasses approximately 8,270 square feet of interior living space, thoughtfully enhanced by 1,560 square feet of outdoor retreats spread across four private terraces. An additional 2,000-square-foot excavated lower level, complete with elevated ceiling heights, adds impressive versatility for recreation, wellness, or wine storage.
Currently configured as a single-family residence with a ground-floor professional suite, the home offers exceptional adaptability. The professional space can remain separate, continue as a revenue-producing element, or be seamlessly integrated into the main residence to expand the home's living quarters.
The interiors are designed to balance grandeur and livability. The parlor floor evokes a loft-like openness, featuring expansive living and dining areas anchored by a showpiece chef's kitchen with direct access to a large private terrace-ideal for entertaining on an intimate or grand scale. The seven-bedroom layout is crowned by a top-floor primary suite, boasting a marble-clad bathroom, abundant storage, and an adjoining double-height library/study that opens to a private terrace with roof access.
Additional features underscore the property's caliber: a sweeping central staircase, a newly installed commercial-grade elevator servicing every level, radiant heated floors, a soundproofed media room, advanced mechanical systems, and a comprehensive security system.
With its rare scale, impeccable design, and prized location, 51 East 67th Street offers an opportunity to own one of the Upper East Side's great private houses-surrounded by world-class shopping, fine dining, museums, and cultural landmarks.
This information is not verified for authenticity or accuracy and is not guaranteed and may not reflect all real estate activity in the market. ©2025 The Real Estate Board of New York, Inc., All rights reserved.







