| ID # | 924200 |
| 物件の詳細 | 4 寝室, 1 バスルーム, 2 ハーフバス, 食器洗い機, 洗濯機, 乾燥機, ガレージ, エアコン, 外装: 0.17 エーカー, 内装: 2500 ft2, 232m2 (DOM): 114 days |
| 建築年 | 2026 |
| 税金(年間) | $19,800 |
| 燃料の種類 | 電気 Electric |
| 暖房タイプ | 電気 Electric |
| エアコン | セントラルエアコン Central Air |
| 地下室 | 部分地下室 Partial |
| ガレージタイプ | ビルトイン Attached (2 car garage) |
![]() |
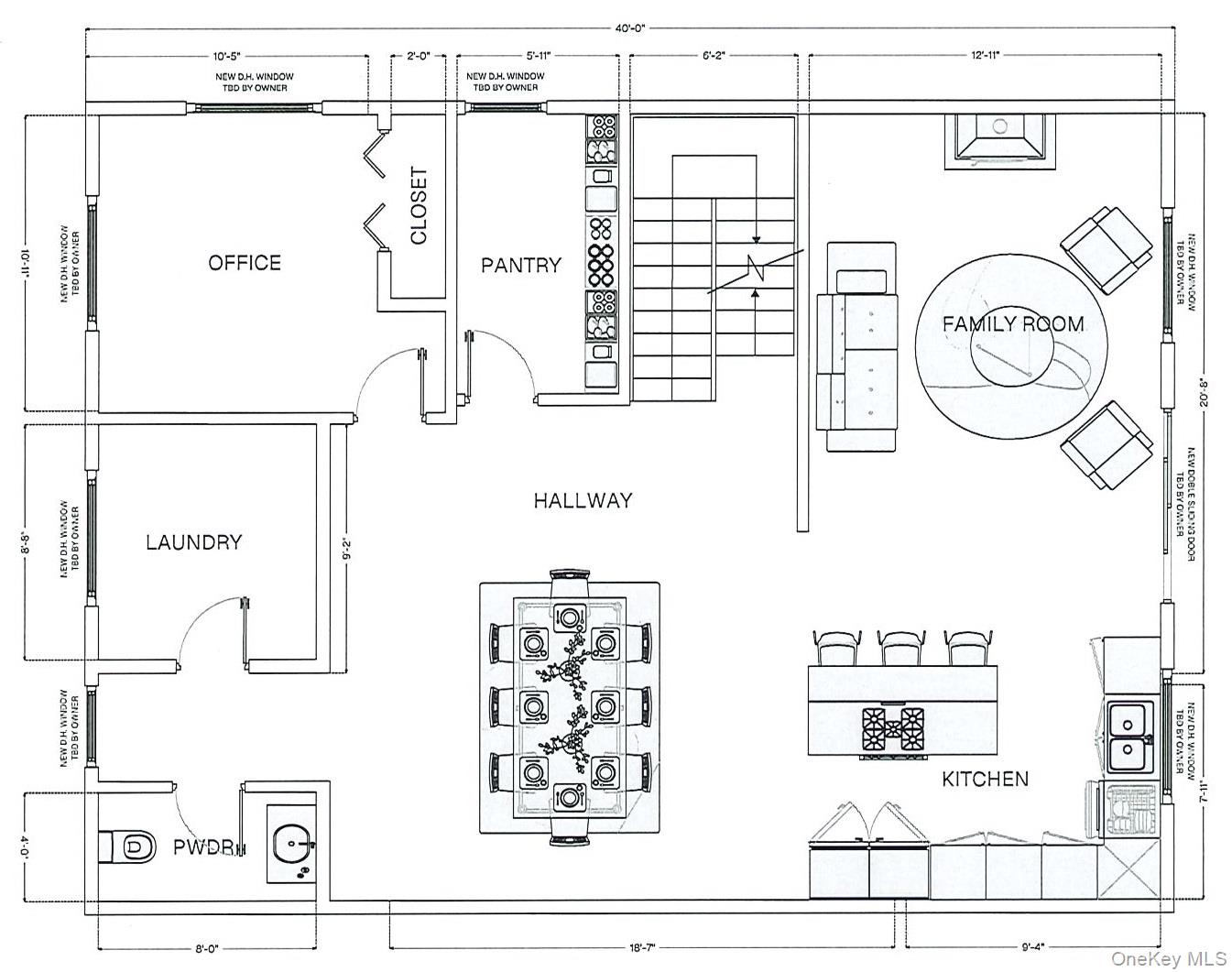
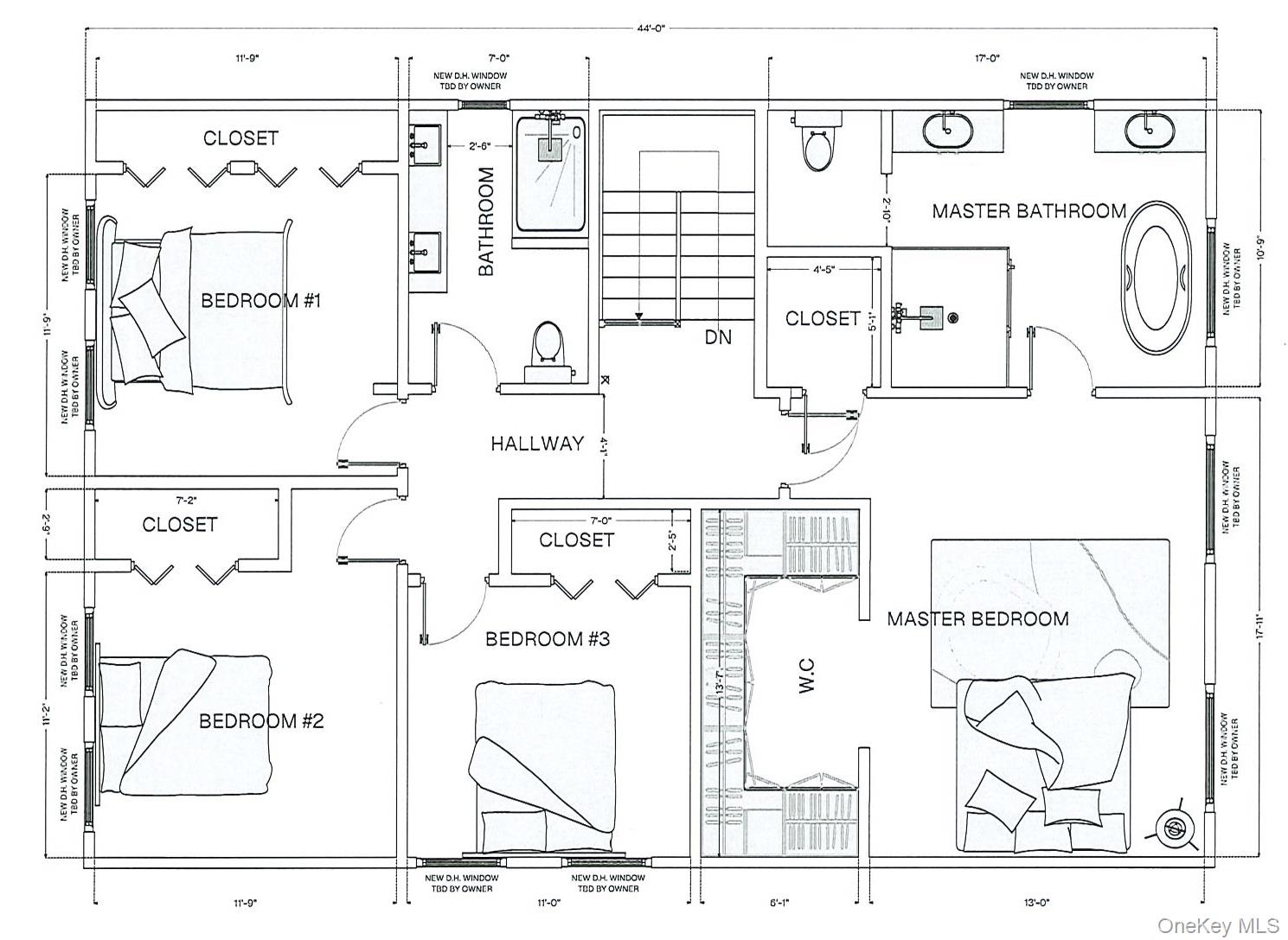
建築予定 - あなたの夢の家が待っています!全ての設備が整った新しい家に引っ越すことを想像してください。美しい土地に位置し、デピュー公園に隣接しています!これは、建設が完了する前に色や仕上げを選ぶことであなたの未来の家をパーソナライズするチャンスです。オープンフロアプランはエンターテイメントに最適です。メインレベルには、最新鋭のキッチンとスタイリッシュなステンレス製の家電、大きなウォークインパントリー、シーティング付きのセンターアイランド、そしてクォーツまたはグラナイトのカウンターがあります。また、心地よい暖炉のあるファミリールーム、リモートワークや遊びのための専用オフィス/デン、ダイニングエリア、パウダールームもあります。ハードウッドフロアまたはお好みの床材、LEDおよび埋め込み照明が装飾を完成させます。2階には、2つのウォークインクローゼットを備えたプライマリースイート、浸かれるバスタブ、文化大理石のカウンター、そしてウォークインシャワーを特徴とする豪華なバスルームがあります。また、広々とした3つのベッドルームと、ダブルシンクとシャワー付きのバスタブを備えたホールバスルームもあります。追加の特典には、引き下げ式階段の屋根裏部屋、部分的な地下室、そして屋外でのリラックスやエンターテイメントに最適な裏庭のパベパティオがあります。メトロノース、ハドソン川のウォーターフロント、活気あるピークスキルのすべてのショップ、レストラン、学校に近く、便利なロケーションです。現代的なアメニティと時を超えたスタイルを持つ郊外の生活のベストを楽しんでください!この物件内には音声録音装置はありません。
Read the English version or choose another language







