| MLS # | 925934 |
| 物件の詳細 | 4 寝室, 2 バスルーム, 1 ハーフバス, 食器洗い機, 洗濯機, ガレージ, エアコン, 外装: 0.34 エーカー, 内装: 2760 ft2, 256m2 (DOM): 15 days |
| 建築年 | 2025 |
| 燃料の種類 | 天然ガス Gas |
| 暖房タイプ | 温風 Hot air |
| エアコン | セントラルエアコン Central Air |
| LIRR | 6.2 マイル: "Port Jefferson" |
| 8.3 マイル: "Yaphank" | |
![]() |
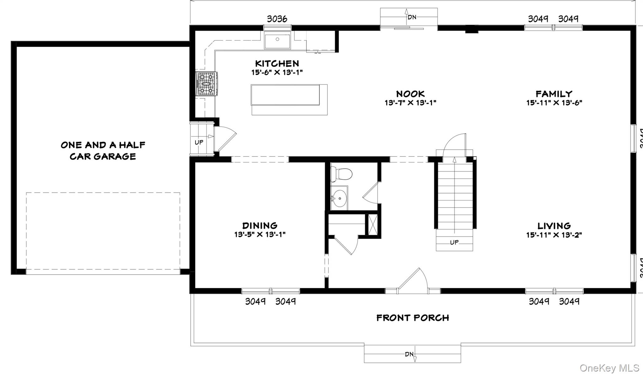
ロッキーポイントのエステートにあるセタウケットモデルは、ロングアイランドの北海岸に位置する特別な47区画の高級開発で、精巧に作られた新しい家々の優れたコレクションを提供します。各住宅は、時代を超えた建築デザインと現代のエレガンス、そして卓越した職人技を組み合わせており、一流のロングアイランドのビルダーによって細心の注意を払って建てられています。各住宅は、アンダーセンの二重櫛窓、GAFの建築用屋根シングル、ビニールの袖壁、ボードとバッテン、またはシェイクサイディングのいずれかをお選びいただけるように考慮されています。前庭のポーチ、複合デッキ、シームレスな雨樋、そして豊かな造園が、完璧な外観を創り出します。オプションのアップグレードには、金属製屋根のアクセント、黒い外装の窓、ベルギーブロックの車道縁石が含まれ、贅沢な外観を完成させます。内部には、オープンコンセプトのレイアウト、1階の9フィートの天井、カスタムトリムパッケージ、そして全体にわたるソリッドコアドアがあります。シェフのキッチンには、座席付きの大きなセンターアイランド、カスタムキャビネット(MDFやパーティクルボードは使用していません)、ソフトクローズ、そしてさまざまな仕上げが可能なクォーツのカウンタートップがあります。デザイナーの工夫としては、ペンダント照明、ステンレススチールの家電パッケージ、そしてマットブラック、ブラッシュドニッケル、ゴールド、またはクロームのいずれかのハードウェア仕上げをお選びいただけます。各住宅には広々としたグレートルーム、フォーマルまたはカジュアルなダイニングオプション、カスタム木製マントル付きのオプションのガスまたは電気の暖炉があります。主寝室にはウォークインクローゼットとスパをイメージしたバスルームがあり、ダブルバニティ、クォーツカウンタートップ、フリースタンディングバスタブまたはウォークインシャワーのオプションがあります。追加の寝室には、ゆったりとしたクローゼット、柔らかなカーペット、デザイナーの照明があります。住宅は快適さと性能のために、2ゾーンの暖房・冷房システム、ナビエンのコンビユニット、200アンペアの電気サービスを備えています。オプションの放熱床暖房や優れた壁システムは、効率性、断熱性、防音性を高めます。フルベースメントには、8フィートから9フィートの天井、避難窓、そしてロットの場所に応じたウォークアウトデザインのオプションがあります。ロッキーポイントのエステートは、贅沢、沿岸の生活、そして郊外の利便性の完璧な融合を提供し、ビーチ、公園、ダイニング、ショッピングからわずか数分の距離にあります。年中無休の居住地を求めている方も、週末の隠れ家を探している方も、このコミュニティはロングアイランドの生活の最高を提供します。
The Setauket Model at The Estates at Rocky Point, an exclusive 47-lot luxury development offering an exceptional collection of finely crafted new homes on the North Shore of Long Island. Every residence combines timeless architectural design with modern elegance and superior craftsmanship — built with meticulous attention to detail by a premier Long Island builder. Each home is thoughtfully designed with Andersen double-hung windows, GAF architectural roof shingles, and your choice of vinyl clapboard, board-and-batten, or shake siding. Front porches, composite decking, seamless gutters, and lush landscaping create a picture-perfect curb appeal. Optional upgrades include metal roofing accents, black exterior windows, and Belgian block driveway curbing to complete the luxury look. Inside, you’ll find open-concept layouts, 9’ ceilings on the first floor, custom trim packages, and solid core doors throughout. The chef’s kitchen features a large center island with seating, custom cabinetry (no MDF or particle board), soft-close, and quartz countertops available in a variety of finishes. Designer touches include pendant lighting, stainless steel appliance packages, and your choice of hardware finishes in matte black, brushed nickel, gold, or chrome. Each home offers a spacious great room, formal or casual dining options, and an optional gas or electric fireplace with a custom wood mantel. The primary suite includes a walk-in closet and spa-inspired bathroom with double vanities, quartz countertops, and an option for a freestanding tub or walk-in shower. Additional bedrooms feature generous closets, plush carpeting, and designer lighting. Homes are built for comfort and performance with 2-zone HVAC, Navien combi units, and 200-amp electrical service. Optional radiant floor heating and superior wall systems provide elevated efficiency, insulation, and soundproofing. Full basements include 8’–9’ ceilings, egress windows, and options for walk-out designs depending on lot location. The Estates at Rocky Point delivers the perfect blend of luxury, coastal living, and suburban convenience — just minutes from beaches, parks, dining, and shopping. Whether you’re seeking a year-round residence or a weekend retreat, this community offers the best of Long Island living. © 2025 OneKey™ MLS, LLC







