| MLS # | 927527 |
| 物件の詳細 | 6 寝室, 4 バスルーム, 2 ハーフバス, ガレージ, エアコン, 外装: 0.14 エーカー, 内装: 3503 ft2, 325m2 (DOM): 10 days |
| 建築年 | 1940 |
| 税金(年間) | $15,229 |
| 燃料の種類 | 天然ガス Gas |
| エアコン | セントラルエアコン Central Air |
| 地下室 | 全面地下室 Full basement |
| ガレージタイプ | ビルトイン Attached (2 car garage) |
| バス | 5 分: Q30, Q31 |
| 8 分: X68 | |
| 9 分: Q1, Q110, Q17, Q2, Q3, Q36, Q43, Q76, Q77 | |
| 地下鉄 | 9 分: F |
| LIRR | 1.1 マイル: "Hollis" |
| 1.8 マイル: "Jamaica" | |
![]() |
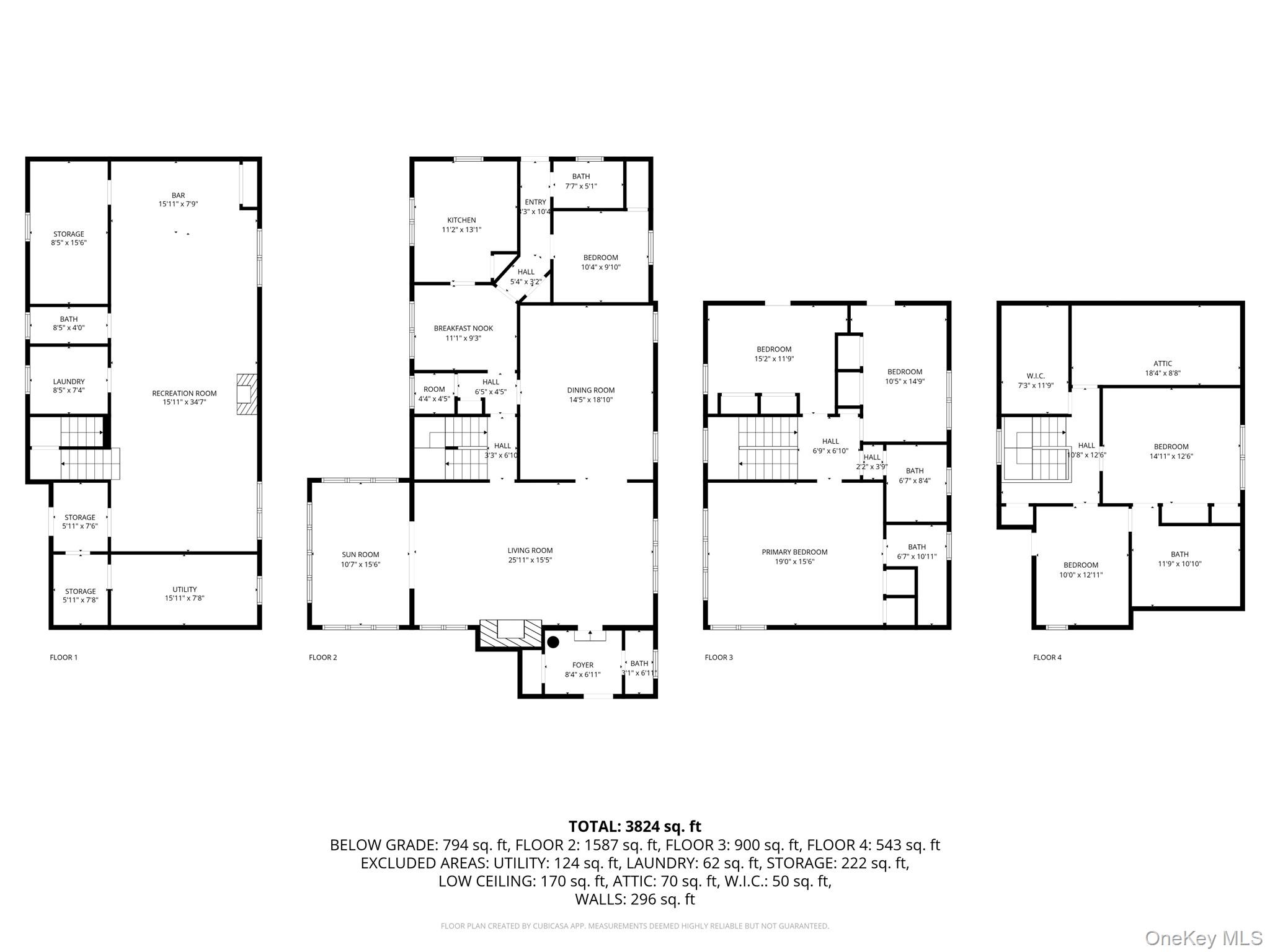
60 x 102の広大な敷地に位置するこのクラシックなチューダー様式の邸宅は、レンガと石のファサードで時代を超えた建築美を捉えています。内部には、目を引く石の暖炉、豊かな硬材の床、そして伝統的な特徴を引き立てるアーチ型のドアウェイを備えた上品なリビングルームが広がっています。壮大なフォーマルダイニングルームは、エンターテイメントに最適な設定を提供し、ファミリールームと朝食エリアを備えたキッチンがあります。完全なバスルームを備えた寝室とパウダールームが一階を完成させています。
2階には、プライベートバス付きの主寝室があり、さらに2つの追加の寝室ともう1つのフルバスルームがあります。3階には、ゲスト用またはオフィス用に最適な2つの寝室とフルバスルームがあります。
広々とした地下室には、ランドリーエリア、ウェットバー、ハーフバスがあり、便利さと柔軟性を加えています。2台分の車庫がついたこの魅力的な物件を完成させています。
Set on an expansive 60 x 102 lot, this classic Tudor-style residence captures timeless architectural beauty with its brick and stone facade.
Inside, the home welcomes you with a gracious living room featuring a striking stone fireplace, rich hardwood floors, and arched doorways that enhance its traditional character. The grand formal dining room offers the perfect setting for entertaining, a family room and kitchen with breakfast area. A bedroom with a full bath and a powder room complete the first floor.
Upstairs, the primary bedroom includes a private bath, joined by two additional bedrooms and another full bathroom. The third floor offers two more bedrooms and a full bath, ideal for guests or office use.
The spacious basement includes a laundry area, wet bar, and half bath, adding convenience and flexibility. A two-car attached garage completes this inviting property. © 2025 OneKey™ MLS, LLC







