| ID # | RLS20056166 |
| 物件の詳細 | 2 寝室, 2 バスルーム, 食器洗い機, 内装: 1875 ft2, 174m2 (DOM): 17 days |
| 建築年 | 1920 |
| 管理費 | $1,336 |
| 税金(年間) | $28,764 |
| 地下鉄 | 2 分: F, M |
| 3 分: 1, L | |
| 5 分: 2, 3 | |
| 6 分: A, C, E | |
| 8 分: R, W, N, Q | |
| 9 分: 4, 5, 6 | |
![]() |
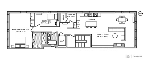
チェルシーの絵のような木々に囲まれた通りの中心に位置するこの広々としたフルフロアのロフトは、 painstakingly gut-renovated の過程を経て完成しました。プライベートな鍵付きエレベーターは、広々としたグレートルームに直接アクセスします。このルームは高い天井と居心地の良い薪の暖炉が特徴です。北と西を向いた6つの大きな窓から日光が差し込み、明るく風通しの良い雰囲気を一層引き立てます。
多様なオープンレイアウトは、専用のダイニングウィングやホームオフィスを含む複数の配置に対応しています。カスタムのポルセラノサキャビネットを備えた窓付きのオープンキッチンには、リーベッヒャーのデュアル冷凍庫付き冷蔵庫、5バーナーのバタッツォーニオーブン、アヴァンティのワインクーラーなど、最先端のアプライアンスが揃っています。オーバーハングのある広々としたクォーツ製のセンターアイランドは、追加のカウンタースペース、3人分の座席、収納を提供します。別のランドリールームにはLG製の洗濯機と乾燥機がキッチンの隣に配置されています。
広々としたプライマリースイートは南と西に面しており、大きな装備されたクローゼットと、デュアルバニティとオーバーサイズのウォークインシャワーを備えた豪華なエンスイートポルセラノサバスルームを含んでいます。西に面したセカンダリーベッドルームはクイーンサイズのベッドを収容することができ、バスタブ付きの2つ目のポルセラノサバスルームがあります。
このユニークなロフトの追加の魅力には、カスタムの埋め込み照明、中央空調、ベースボード暖房、そして新しいホワイトオークのフローリングが全体に施されています。プライベートなストレージルームが販売に付随します。
110 ウェスト 17丁目は、特に低い月額費用を持つブティックスタイルの6ユニットのプレウォーコンデミニアムです。チェルシー、フラットアイアン地区、ユニオンスクエア、グリニッジ村の間に完璧に位置しており、この場所は最高のダウンタウン生活を提供します。トップレストラン、ショップ、トランジット、文化的なアトラクションがすぐ近くにあります。F、M、1号線の電車はすべて一ブロック以内にあり、その他の路線も近距離にあります。
マンハッタンで最も活気に満ちた、人気のある地域の一つで、本当にターンキーの家を所有する素晴らしい機会です。
Nestled in the heart of Chelsea on a picturesque, tree-lined block, this sprawling full-floor loft has just been painstakingly gut-renovated. A private keyed elevator opens directly into an expansive great room featuring soaring ceilings and a cozy wood-burning fireplace. Sunlight floods the space through six large windows facing north and west, enhancing the bright and airy atmosphere.
The versatile open layout accommodates multiple configurations, including a dedicated dining wing and home office. The windowed, open kitchen with custom Porcelanosa cabinetry boasts top-of-the line appliances, including a Liebherr refrigerator with dual freezers, a 5-burner Bertazzoni oven, and an Avanti wine cooler. A generous quartz center island with overhang offers additional counter space, seating for 3 and storage. A separate laundry room with with LG washer and dryer is adjacent to the kitchen.
The expansive primary suite enjoys southern and western exposures and includes a large outfitted closet and a luxurious en-suite Porcelanosa bathroom with dual vanities and an oversized walk-in shower. The west facing secondary bedroom can accommodate a queen-sized bed and a there is a second Porcelanosa bathroom with tub.
Additional highlights of this one-of-a-kind loft include custom recessed lighting, central air conditioning and baseboard heating and new white oak floors throughout. A private storage room conveys with the sale.
110 West 17th Street is a boutique six-unit prewar condominium with exceptionally low monthly fees. Perfectly positioned between Chelsea, the Flatiron District, Union Square, and Greenwich Village, this location offers downtown living at its finest — with top restaurants, shops, transit, and cultural attractions just moments away. F, M and1 train are all within a block and others are a short distance.
An exceptional opportunity to own a truly turnkey home in one of Manhattan’s most vibrant and sought-after neighborhoods.
This information is not verified for authenticity or accuracy and is not guaranteed and may not reflect all real estate activity in the market. ©2025 The Real Estate Board of New York, Inc., All rights reserved.







