| ID # | RLS20056248 |
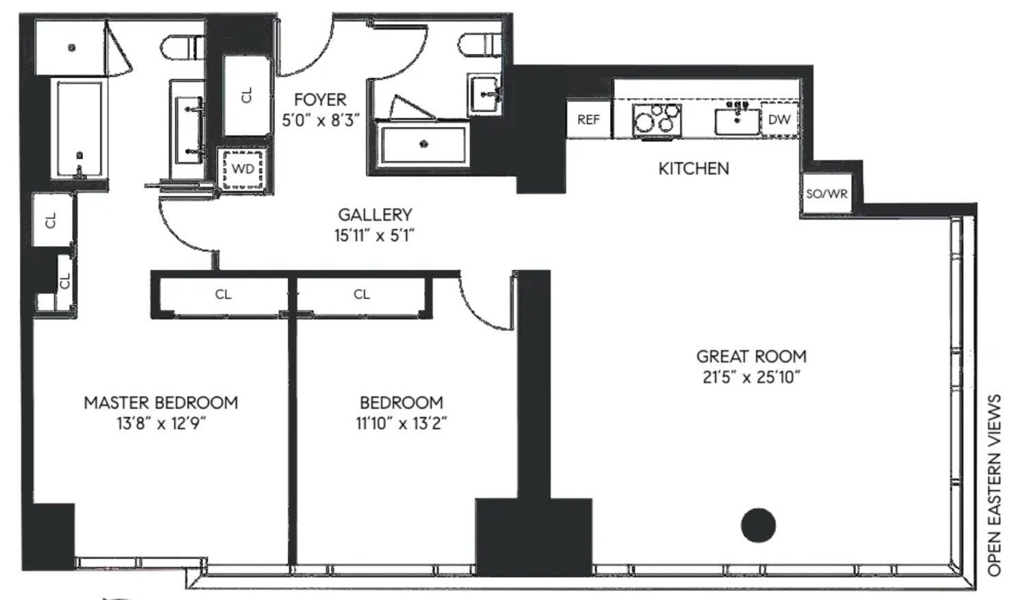
| 物件の詳細 | 2 寝室, 2 バスルーム, 内装: 1432 ft2, 133m2 (DOM): 9 days |
| 建築年 | 2016 |
| 地下鉄 | 1 分: B, D, E |
| 3 分: 1 | |
| 4 分: N, Q, R, W | |
| 5 分: F, M, C | |
| 9 分: A | |
| 10 分: S | |
![]() |
広々とした豪華なサービス付きコンドミニアムに新たに住むことになる、全く新しい2ベッドルーム/2バスルームの家へようこそ。
7フィートのクスノキ製のカスタム染色エントリードアを通って入ると、ホワイトオニキスで縁取られたエレガントな玄関が待っています。5インチ幅のリフトソーンホワイトオークの床に10フィートの天井高を誇ります。豪華なオープンシェフキッチンには、ミーレの家電とポリッシュニッケルのドーンブラフト製金具が備わっています。ダダイタリアンのクスノキとホワイトバックペイントガラスのキャビネットにはブロンズサテンミラーバacksplashが施され、カラカッタビジョン大理石のカウンタートップはどんなゲストも驚かせることでしょう。
このマスターバスルームのオアシスには、トム・ディクソン製の7インチ直径のハンドブローグラスのフラスクペンダントランプと、輸入イタリアのウォーターマーク金具を備えたシベリアンミンクのカスタムバニティが特徴です。壁はポリッシュされた大理石タイルのスタックと、ホーンドシベリアンホワイトタイルの床で仕上げられています。統合ミラーを備えたカスタム埋め込み式医療キャビネットもあります。このバスルームにはオーバーヘッドレインシャワーと、長い一日の後にリラックスできるディープソーキングバスタブも備わっています。さらに、床暖房とクイーンサイズのビューティーアイテムにぴったりのアンダーマウント引き出しも完備しています。
著名な建築家セトラ/ラディが設計した素晴らしい47階建ての建物には、照明デザイナーのティエリー・ドレイフスによるカスタム照明があります。ノワール・サン・ローレンのリソースストーンタイルの床が敷かれた35フィートの壮大なエントランスに足を踏み入れます。このコンドミニアムは、ラッププール、プライベートの男性用と女性用ロッカールーム、スチームとサウナ、マッサージルームを備えた12,000平方フィートのプライベート住民クラブを提供し、最新式のフィットネスセンターからは街の景色を一望できます。ヨガルーム、ゴルフシミュレーター、メディアルーム、そして家具付きテラスも完備されています。
135 W 52ndは、食料品店、レストラン、小売店に囲まれています。セントラルパークや最高級の5番街のショッピング、ロックフェラーセンター、タイムズスクエア、ブロードウェイ、カーネギーホール、ラジオシティ音楽堂の文化的な魅力に囲まれています。
これだけでは不十分かのように、マンハッタンの主要な地下鉄路線(B、D、E、1、N、Q、R)はまるで玄関のすぐ外にあるかのように感じられます。
建物への料金:
$65 - デジタル提出料金(テナント)
$75 - 初期料金(テナント)
$100/申請者 - クレジットレポート料金(返金不可、必須)(テナント)
$495 - 処理料金(返金不可)(テナント)
$500 - 入居料金(返金不可)(テナント)
$1,000 - 入居デポジット(テナント)
アプリ管理手数料 - 総額の5%
(デジタル提出および初期料金を除く)(テナント)
家主への料金:
初月家賃(テナント)
1か月の保証金(テナント)
Make way to your majestic, brand new never lived in two (2) bedroom / two (2) bathroom in a full-service luxury condo.
Enter through your custom stained 7' walnut entry door bordered in White Onyx with custom Inox polished nickel hardware. Step in to your elegant foyer with 5" wide plank rift sawn white oak floor and 10' ceiling height. The grand open chef's kitchen is fitted with Miele appliances and polished nickel Dornbracht fittings. The Dada Italian walnut and white back painted glass cabinetry and with bronze satin mirror backsplash. The Calacatta Vision marble countertops will be sure to impress any guest.
This master bath oasis has Tom Dixon 7" diameter hand-blown glass Flask pendant lamps and a one-of-a-kind custom Siberian Mink stone vanity with sinks featuring imported Italian and Watermark fixtures. The walls are polished marble stacked tile coupled with honed Siberian White tile flooring. There is a custom recessed medicine cabinet with integrated mirror. The bathroom also contains an overhead rain shower and a deep-soaking tub that allows you to lay back and relax after a long day. To top it all off, there radiant-heated floors and under-mount draws to fit even a queens beauty products.
Renowned architects Cetra/Ruddy have designed an amazing 47-story structure with custom lighting by expert lighting designer Thierry Dreyfus. Walk in to the 35' grand entrance with Noir St. Laurent limestone tile flooring. The condominium offers a 12,000 square foot private residents club featuring an incredible suite of luxury services and amenities such as; lap pool, private 's and women's locker rooms with steam and sauna and massage rooms, state-of-the-art fitness center over looking the city, yoga room, golf simulator, media room, and furnished terrace.
135 W 52nd is immersed in grocery stores, restaurants, and retailers. Surrounded by Central Park, the finest Fifth Avenue shopping, Rockefeller Center, Times Square and the cultural delights of Broadway, Carnegie Hall, and Radio City Music Hall.
As if this wasn't enough, Manhattan's major subway lines (B, D, E, 1, N, Q, R) feel like they are right outside the front door.
FEES TO BUILDING:
$65 - Digital submission fee (Tenant)
$75 - Initial fee (Tenant)
$100/per Applicant - Credit Report Fee (non-refundable, Required) (Tenant)
$495 - Processing Fee (Non-Refundable) (Tenant)
$500 - Move In Fee (Non-Refundable) (Tenant)
$1,000 - Move in Deposit (Tenant)
App admin fee - 5% of Total
(excluding Digital Submission & Initiation Fees) (Tenant)
FEES TO LANDLORD:
First Month Rent (Tenant)
One Month Security (Tenant)
This information is not verified for authenticity or accuracy and is not guaranteed and may not reflect all real estate activity in the market. ©2025 The Real Estate Board of New York, Inc., All rights reserved.







