| ID # | RLS20054801 |
| 物件の詳細 | 2 寝室, 1 バスルーム (DOM): 169 days |
| 建築年 | 1901 |
| バス | 1 分: B26, B48 |
| 2 分: B25 | |
| 3 分: B52 | |
| 4 分: B44, B49 | |
| 5 分: B44+ | |
| 7 分: B45, B65 | |
| 8 分: B38 | |
| 10 分: B69 | |
| 地下鉄 | 2 分: C |
| 4 分: S | |
| 9 分: G, A | |
| LIRR | 0.6 マイル: "Nostrand Avenue" |
| 0.9 マイル: "Atlantic Terminal" | |
![]() |
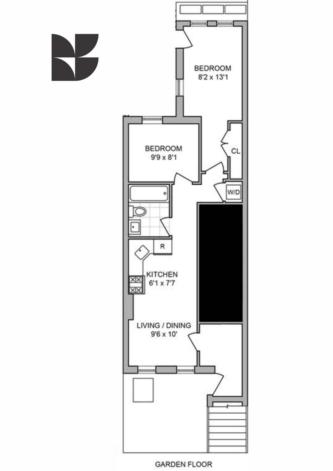
2ベッドルームとオフィス付き!新しく完全に改装された90 Putnam Ave、ユニット1へようこそ。クライントンヒルとベッドスタイの境界に位置する便利なエリアにある、一部屋とオフィスを備えた物件です。この素晴らしいアパートに最初に住むのはあなたです。
洗練されたモダンな家には、ステンレス製の家電、セントラルエア、カエサーストーンのカウンタートップ、そしてバターのように柔らかい新しい硬木の床があります。キッチンを出ると、広めのバスタブを備えたスタイリッシュなバスルームがあり、長い一日の後に理想的なリトリートを提供します。洗濯機と乾燥機は便利さを考慮して廊下のクローゼットに収納されています。どの部屋を寝室にし、どの部屋をホームオフィスにするか選ぶことができ、両方とも南向きです。
このアパートは、フランクリン駅からわずか2ブロックのところにあり、トレンディなレストラン、カフェ、賑やかなマーケットに囲まれており、必要なものがすぐに手に入ります。今すぐ入居可能です。ペットはケースバイケースで検討します。
TWO BEDROOM WITH OFFICE! Welcome to the brand new, fully renovated 90 Putnam Ave, unit 1. A one bedroom plus office located on the incredibly convenient Clinton Hill, Bed Stuy border. Be the first to live in this great apartment.
The sleek, modern home boasts stainless steel appliances, central air, and caeserstone countertops, and buttery soft new hardwood floors. Just off the kitchen, you'll find a stylish bathroom with a generous-sized tub, offering an ideal retreat after a long day. Washer and dryer are tucked in the hall closet for added convenience. Choose which room to sleep in and which to make your home office, both have southern exposures.
This apartment offers unbeatable convenience just two blocks from the Franklin stop, surrounded by trendy restaurants, cafes, and bustling marketplaces—everything you need is at your fingertips. Available now. Pets case by case.
This information is not verified for authenticity or accuracy and is not guaranteed and may not reflect all real estate activity in the market. © 2026 The Real Estate Board of New York, Inc., All rights reserved.





