| ID # | 929273 |
| 物件の詳細 | 2 寝室, 2 バスルーム, 食器洗い機, 洗濯機, エアコン, 内装: 1004 ft2, 93m2 (DOM): 156 days |
| 建築年 | 1953 |
| 管理費 | $862 |
| 税金(年間) | $3,578 |
| 燃料の種類 | オイル暖房 Oil |
| エアコン | 壁掛けエアコン Wall Unit AC |
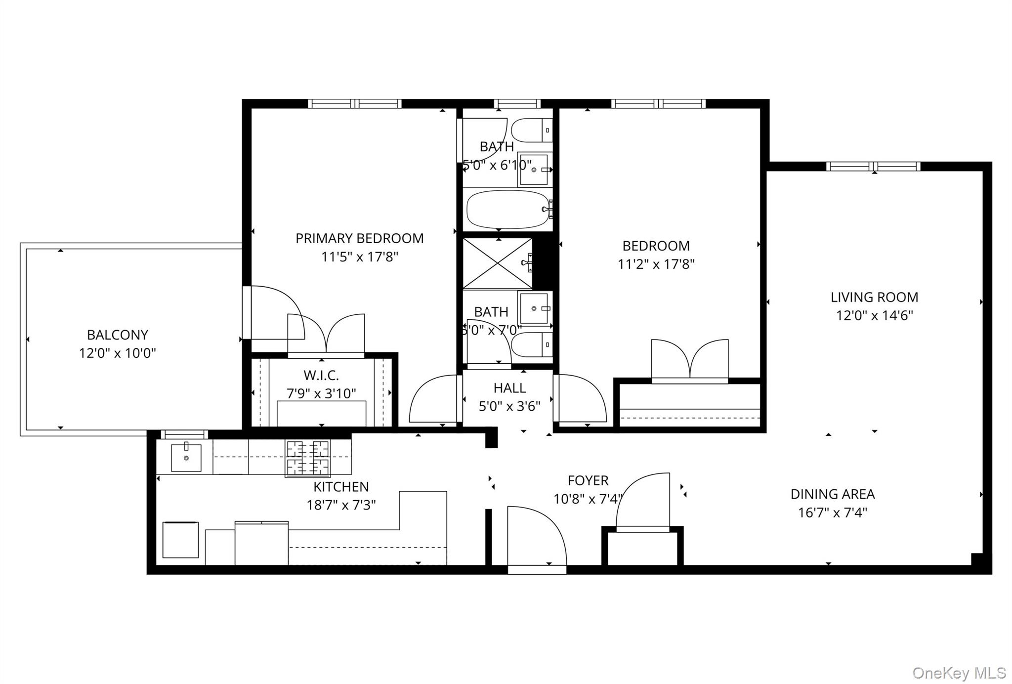
![]() |
ブロンクスビルP.O.のバルコニー付き最上階2ベッドルームコンドミニアム - ラグジュアリーでモダン、すぐに入居可能!毎日の快適さを備えた美しく改装された現代的デザインのラグジュアリーな空間へようこそ。エレガントなフロアリングからクォーツのカウンタートップ、ステンレス鋼の家電製品を備えた洗練された高級キッチン、大きなリビングルームまで、すべてのディテールが思慮深く作り込まれています。主寝室には広々とした専用クローゼットとバスルーム、朝のコーヒーや長い一日の後にリラックスするためのバルコニーが完備されています。一方、二つ目の寝室は十分なスペースと柔軟性を提供します。追加の収納が必要ですか?それとも専用のホームオフィスが欲しいですか?ライフスタイルに合わせて追加のスペースをカスタマイズする選択肢があります。このコンドミニアムには、ユニット内のランドリー、大容量のクローゼットスペース、月額82ドルでの即時指定の屋外駐車場も提供されています。犬に優しい建物では、住み込みの管理人が居て、さらに安心感を提供します。ブロンクスビル村とメトロノース駅(ブロンクスビルとフリートウッド)からわずか数分の完璧なロケーションで、NYCまでわずか25分です。近くにはリッジヒル、クロスカウンティセンター、セントラルパークアベニューのショッピング、素晴らしいレストラン、ジム、ヨンカーズカジノ、サラ・ローレンス大学、主要高速道路へのアクセスも容易です。STAR税額控除を利用すれば、年税額はさらに低くなる可能性があり、ブロンクスビルP.O.の優れたロケーションにあるこの驚くべきコンドミニアムは珍しい存在です。この入居可能な宝石を見逃さないでください!
Top Floor 2-Bedroom Condo with Balcony in Bronxville P.O. – Luxurious, Modern, and Move-In Ready! Step into luxury with this beautifully renovated modern design with everyday comfort. Every detail has been thoughtfully crafted—from the elegant flooring to the sleek, high-end kitchen featuring Quartz countertops, stainless steel appliances, Large Livingroom, The primary bedroom features a generous en-suite closet and a full bath and balcony perfect for morning coffee or unwinding after a long day. while the second bedroom offers plenty of space and flexibility. Need extra storage or a dedicated home office? You’ve got the option to customize the additional space to suit your lifestyle. This condo also offers the convenience of in-unit laundry, abundant closet space, and an immediate assigned outdoor parking spot for just $82/month. The dog-friendly building includes a live-in superintendent for added ease and peace of mind. Perfectly located just minutes from Bronxville Village and Metro-North stations (Bronxville and Fleetwood), you’re only 25 minutes from NYC. Nearby you’ll find Ridge Hill, Cross County Center, Central Park Avenue shopping, great restaurants, gyms, the Yonkers Casino, Sarah Lawrence College, and easy access to all major highways. With the STAR tax credit, your annual taxes could be even lower—making this stunning condo a rare find in a prime Bronxville P.O. location. Don’t miss out on this move-in ready gem!
This information is not verified for authenticity or accuracy and is not guaranteed and may not reflect all real estate activity in the market. Listing courtesy of At Home With Yara Realty © 2026







