| ID # | 929562 |
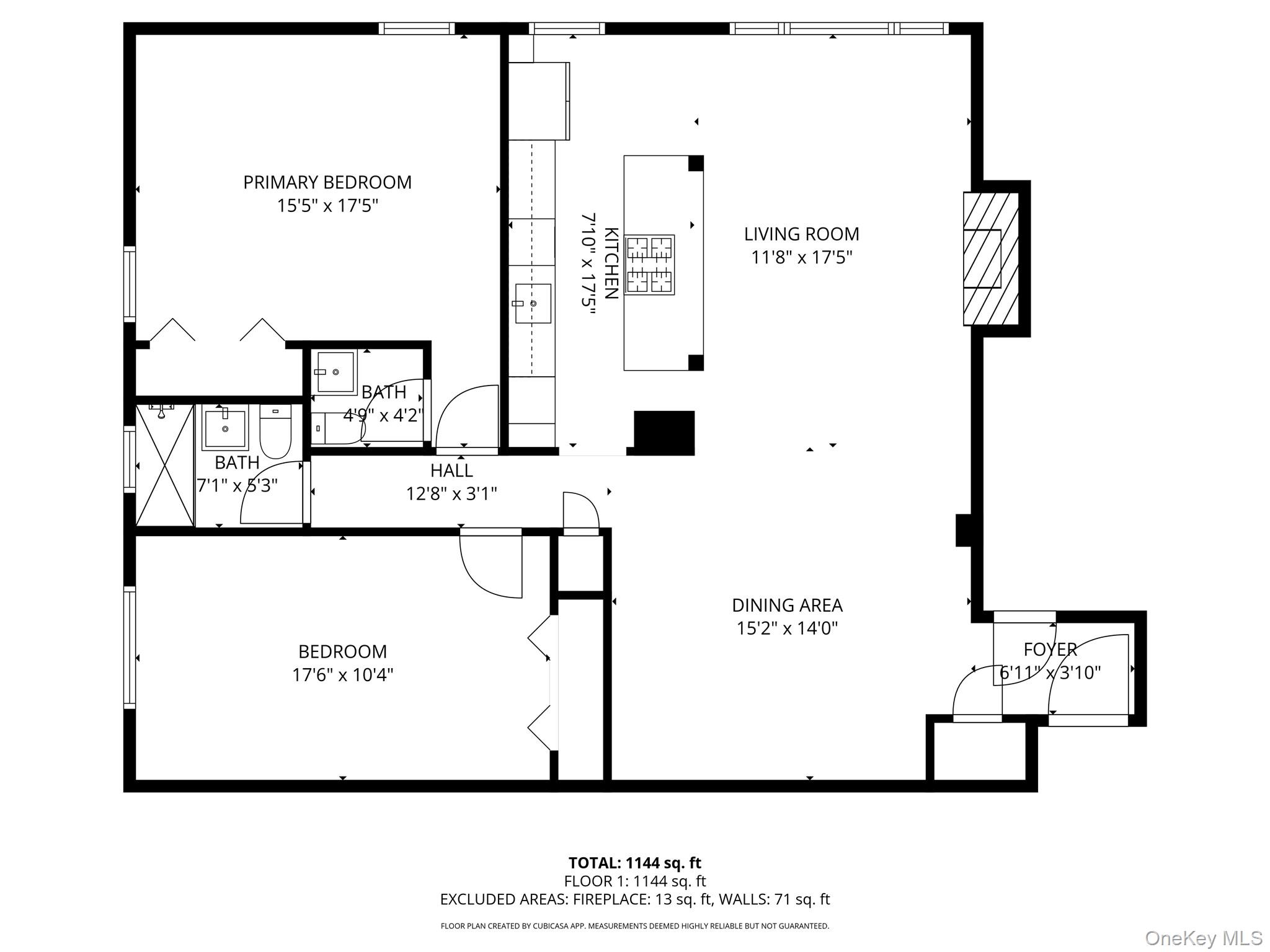
| 物件の詳細 | 2 寝室, 1 バスルーム, 1 ハーフバス, 食器洗い機, 洗濯機, エアコン, 内装: 1200 ft2, 111m2 (DOM): 2 days |
| 建築年 | 1965 |
| 管理費 | $1,026 |
| 暖房タイプ | 温水 Hot water |
| エアコン | 壁掛けエアコン Wall Unit AC |
![]() |
美しくリモデルされた2ベッドルーム、1.5バスのコ-opへようこそ。ヨンカーズで最も人気のあるプールコミュニティの一つ、Cresthaven複合施設に位置し、面積は1200平方フィートです。この明るく日当たりの良いアパートメントには、白いクォーツのカウンタートップとステンレス製の家電が備わった珍しいオープンコンセプトのキッチン、エンターテイニングに最適な広々としたダイニングとリビングエリア、新しく塗装された内部があります。両方のバスルームは現代的な仕上げにアップデートされています。主寝室はマスター suite のレイアウトで、セカンドベッドルームも非常に広々としています。専用駐車場が含まれています。季節ごとの屋外プール、美しく整備された敷地、グリルとピクニックエリア、パーティールーム、オンサイトランドリー、ストレージを備えた最高のコミュニティ生活をお楽しみください。この複合施設は、細心の注意を払った管理、アップデートされた廊下とロビー、専任の常駐スーパ意任者で知られています。医療オフィス、リテール、レストラン、屋外広場を備えた複合的な目的地であるボイス・トンプソンセンターの近くに位置し、Bee-Lineバスサービス、Metro-North Greystone駅、マニュハットンとウェストチェスターへの通勤を容易にするSaw Mill River Parkwayへの便利なアクセスがあります。
Welcome to this beautifully remodeled 2-bedroom, 1.5-bath co-op offering 1,200 sq ft in The Cresthaven complex, one of Yonkers’ most desirable pool communities. This bright and sunny apartment features a rare open concept kitchen with white quartz countertops + stainless steel appliances, spacious dining and living areas ideal for entertaining, and freshly painted interiors throughout. Both bathrooms have been updated with modern finishes. The primary bedroom features a master suite layout, while the second bedroom is very spacious. Assigned parking is included. Enjoy community living at its best with a seasonal outdoor pool, beautifully maintained grounds, grilling and picnic areas, a party room, on-site laundry, and storage. The complex is known for its meticulous upkeep, updated halls and lobby, and dedicated live-in superintendent. Located near The Boyce Thompson Center, a mixed-use destination with medical offices, retail, restaurants, and an outdoor plaza, with convenient access to the Bee-Line bus service, Metro-North Greystone Station, and the Saw Mill River Parkway for easy commuting to Manhattan and Westchester. © 2025 OneKey™ MLS, LLC







