| ID # | 928228 |
| 物件の詳細 | 外装: 0.38 エーカー (DOM): 3 days |
| 税金(年間) | $1,160 |
![]() |
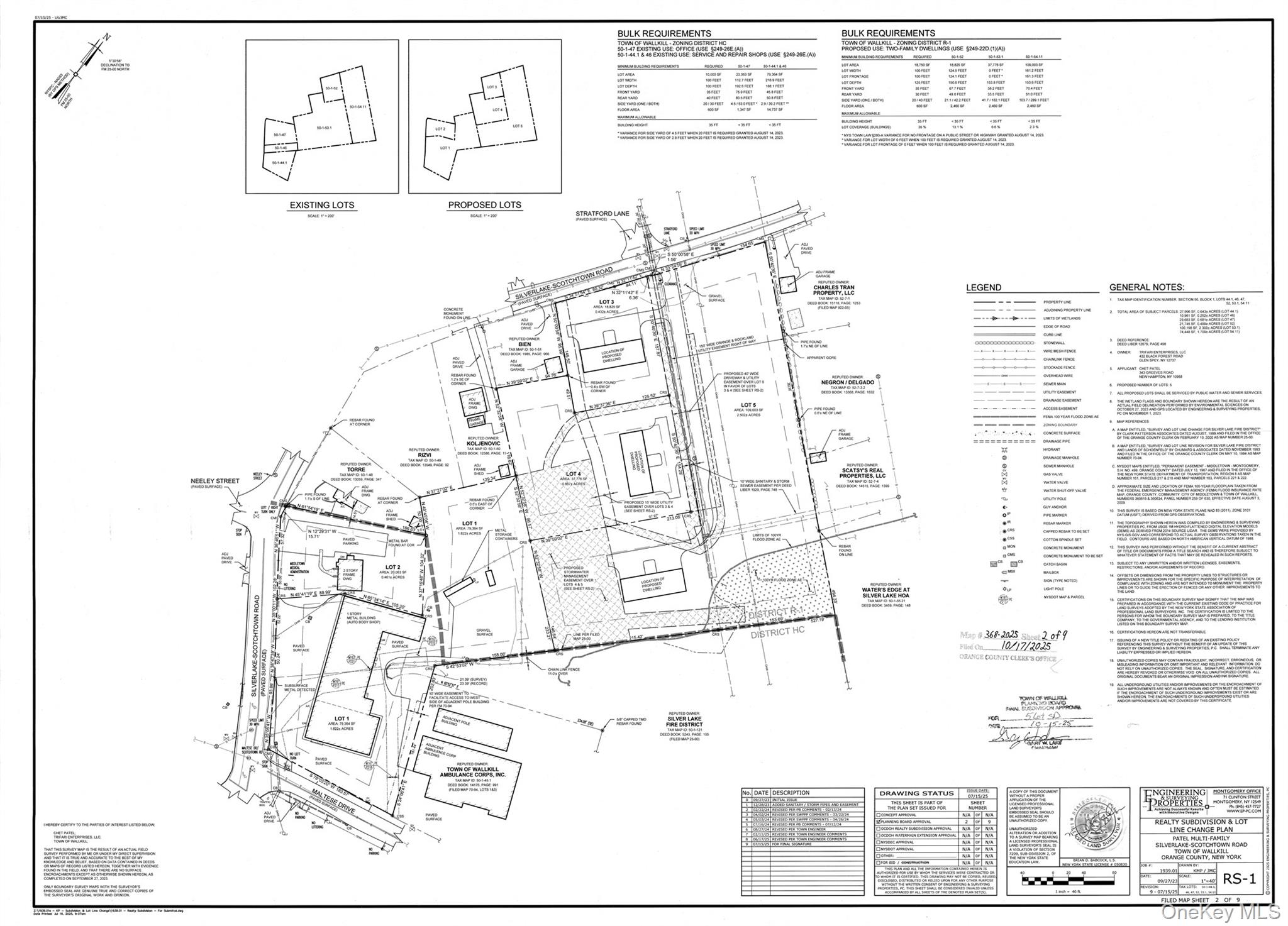
注意:建設者と開発者の皆様へ。ウォルキルタウンの魅力的なシルバー レイク スコッチタウン ロードにある、珍しい完全承認済みの3区画分譲地を紹介します。3棟の新しい二世帯住宅の建設に向けて準備が整っています。各区画は32x80フィートの構造を収容できるよう設計されており、各ユニットには3つの寝室、2つのバスルーム、1台分のガレージが含まれる広さがあります。このプロジェクトは全ての主要な障害をクリアした状態で、ショベルレディの状態です。パテルマルチファミリー不動産分譲の計画が計画委員会の承認を得ており、地図も正式に提出されているため、数ヶ月のリスクと保有コストが排除されています。インフラは整備済みで、地方自治体の水道、下水道、天然ガス(O&R)への接続が承認されています。この立地は優れた利便性を提供し、211号線からすぐの場所にあり、I-84や17号線/I-86などの主要高速道路に近接しており、メトロノース鉄道にもわずか数分の距離で、最終ユニットを非常に市場性の高いものにします。承認されたゾーニングにより、購入者は町へ独自の建築図面を提出する柔軟性を持ち、ユニットのサイズや仕上げを現在の市場に合わせて調整することができます。以前のデザインコンセプトは、広々とした3ベッドルーム、2バスルーム、1台車庫を備えた高収益デュープレックスタイプに焦点を当てていました。この販売には、区画3(約0.432エーカー)、区画4(約0.867エーカー)、区画5(約2.5エーカー)が含まれています。長期の管理を簡素化するために、共用のアプローチと共用利用および維持管理契約はすでに準備されており、整っています。これは、リスクを軽減したサイトで建設スケジュールと収益性を最大化しようとしている開発者にとってのプレミアムな機会です。掲載エージェントに今すぐご連絡いただき、提出された全てのサイトプランとエンジニアリングレポートを受け取ってください(提出された地図はドキュメントをご参照ください)。
Attention Builders and Developers: Presenting a rare, fully-approved 3-lot subdivision on Silverlake Scotchtown Road in the desirable Town of Wallkill, ready for the construction of three new two-family homes. Each lot is designed to accomodate a 32x80 structure which is large enough for each unit to include 3 bedrooms, 2 baths and a 1 car garage. This is a shovel-ready project as all major hurdles have been cleared: the plans for the Patel Multi-Family Realty Subdivision have been granted Planning Board approval and the map is officially filed, eliminating months of risk and carrying costs. The infrastructure is in place and approved for connection to Municipal Water, Municipal Sewer, and Natural Gas (O&R). The location offers superior convenience, situated just off Route 211 with excellent proximity to major highways like I-84 and Route 17/I-86, and only minutes from the Metro North train, making the final units highly marketable. The approved zoning allows the buyer significant flexibility to provide their own architectural drawings to the Town, enabling them to tailor the unit sizes and finishes to the current market. A previous design concept centered around high-yield duplexes featuring spacious 3-bedroom, 2-bathroom units with a 1-car garage. This offering includes Lot 3 (+/- 0.432 acres), Lot 4 (+/- 0.867 acres), and Lot 5 (+/- 2.5 acres). For streamlined long-term management, a common/shared driveway and a common use and maintenance agreement are already prepared and in place. This is a premium opportunity for a developer looking to maximize their construction timeline and profitability with a de-risked site. Contact the listing agent today to receive all filed site plans and engineering reports (See Documents for the Filed Map) © 2025 OneKey™ MLS, LLC







