| MLS # | 927823 |
| 物件の詳細 | 4 寝室, 3 バスルーム, エアコン, 外装: 0.14 エーカー, 内装: 1568 ft2, 146m2 (DOM): 2 days |
| 建築年 | 1958 |
| 税金(年間) | $11,503 |
| 暖房タイプ | 温風 Hot air |
| エアコン | セントラルエアコン Central Air |
| LIRR | 0.9 マイル: "Lindenhurst" |
| 2 マイル: "Babylon" | |
![]() |
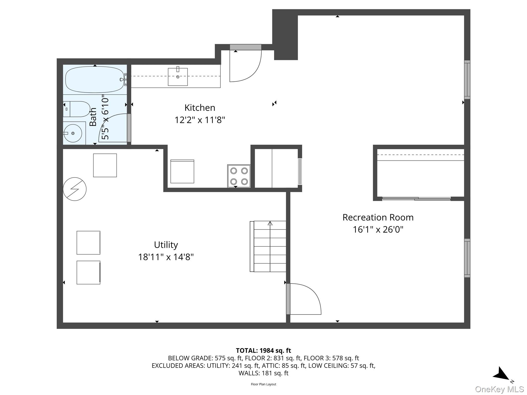
9リビエラ・パークウェイのご紹介 - ヴェネチアン・ショアーズの中心に位置するこの更新され拡張された4ベッドルーム、3バスのケープスタイルの家は、クラシックな魅力と現代の快適さを兼ね備えています。この美しく手入れされた家は、全体に硬木のフロアが施され、クラシックなレイアウトを持ち、時代を超えた特性を提供しています。メインフロアには、美しいベイウィンドウのある明るいリビングルームと、ステンレス製の器具、大容量のキャビネット、裏庭に通じるスライディングドアを備えた更新されたキッチンがあり、エンターテイニングに最適です。1階には2つのベッドルームとフルバスルームがあり、ゲストやホームオフィスに便利で柔軟性を提供します。2階には、広々としたクローゼットスペースを備えた2つの広いベッドルームと、フルハルバスがあります。完成したウォークアウトベースメントは追加の居住空間を提供し、大家族やレクリエーションエリアに最適です。リラックスやエンターテイニングにぴったりの美しい裏庭とパティオをお楽しみください。学校、公園、ショッピング、交通機関が近くにあり、便利です。また、物件は洪水ゾーンの外に位置しているため、洪水保険は必要ありません。素晴らしい住まいです!
Introducing 9 Riviera Parkway- This updated and expanded 4-bedroom, 3-bath Cape in the heart of Venetian Shores combines classic charm with modern comfort. This beautifully maintained home offers timeless character with hardwood floors throughout and a classic layout. The main level features a bright living room with a beautiful bay window and an updated kitchen with stainless steel appliances, abundant cabinetry, and sliding doors that lead to the backyard—perfect for entertaining. Two first-floor bedrooms and a full bath provide convenience and flexibility for guests or a home office. Upstairs, you’ll find two spacious bedrooms with generous closet space and a full hall bath. The finished walk-out basement offers additional living space—perfect for extended family or a recreation area. Enjoy a beautiful backyard and patio, perfect for relaxing or entertaining. Conveniently located near schools, parks, shopping, and transportation. And with the property located outside the flood zone, there’s no need for flood insurance. A wonderful place to call home! © 2025 OneKey™ MLS, LLC







